查看完整案例

收藏

下载

翻译
Architects:Vão
Area:30000m²
Year:2023
Photographs:Pedro Kok
Lead Architects:Anna Juni, Enk te Winkel e Gustavo Delonero
Collaborators:Luiza Souza (arquiteta), Gabriela Rochitte e Luisa Barone (estagiárias)
Curatorship:Diane Lima, Hélio Menezes, Grada Kilomba e Manuel Borja-Villel
Assistant Curators:Sylvia Monasterios,\ Tarcisio Almeida
Construction:Metro Cenografia
Lighting Design:Fernanda Carvalho Lighting
Program:Arquitetura e Expografia da 35a Bienal de São Paulo
City:São Paulo
Country:Brazil
Text description provided by the architects. Since the beginning of the design and graphic process of the 35th São Paulo Biennial, Choreographies of the Impossible, we were challenged to think about and through the Ciccillo Matarazzo Pavilion. Designed and built in the 1950s, the building is notoriously known as a work by Oscar Niemeyer; however, it is necessary to say, in collaboration with architects Eduardo Kneese de Mello, Hélio Uchoa, and Zenon Lotufo. The architecture of the Pavilion, marked by the symbolic and representative weight of an era, challenged us to temporarily inscribe a choreography of paths and spaces different, with the purpose of splitting, or at least cracking its monumental character.
The path that interested us was to blur the boundaries defined by historical times and authorial gestures. For this, we needed to learn to dance with the existing; without reenacting it, but also without superimposing on it a completely autonomous choreography. It should be a design posture that colludes and collapses with the symbolic references and aesthetic repertoires, a reflection very much instigated by the reading of the curatorial text. We decided, then, to invite the building to a contradance.
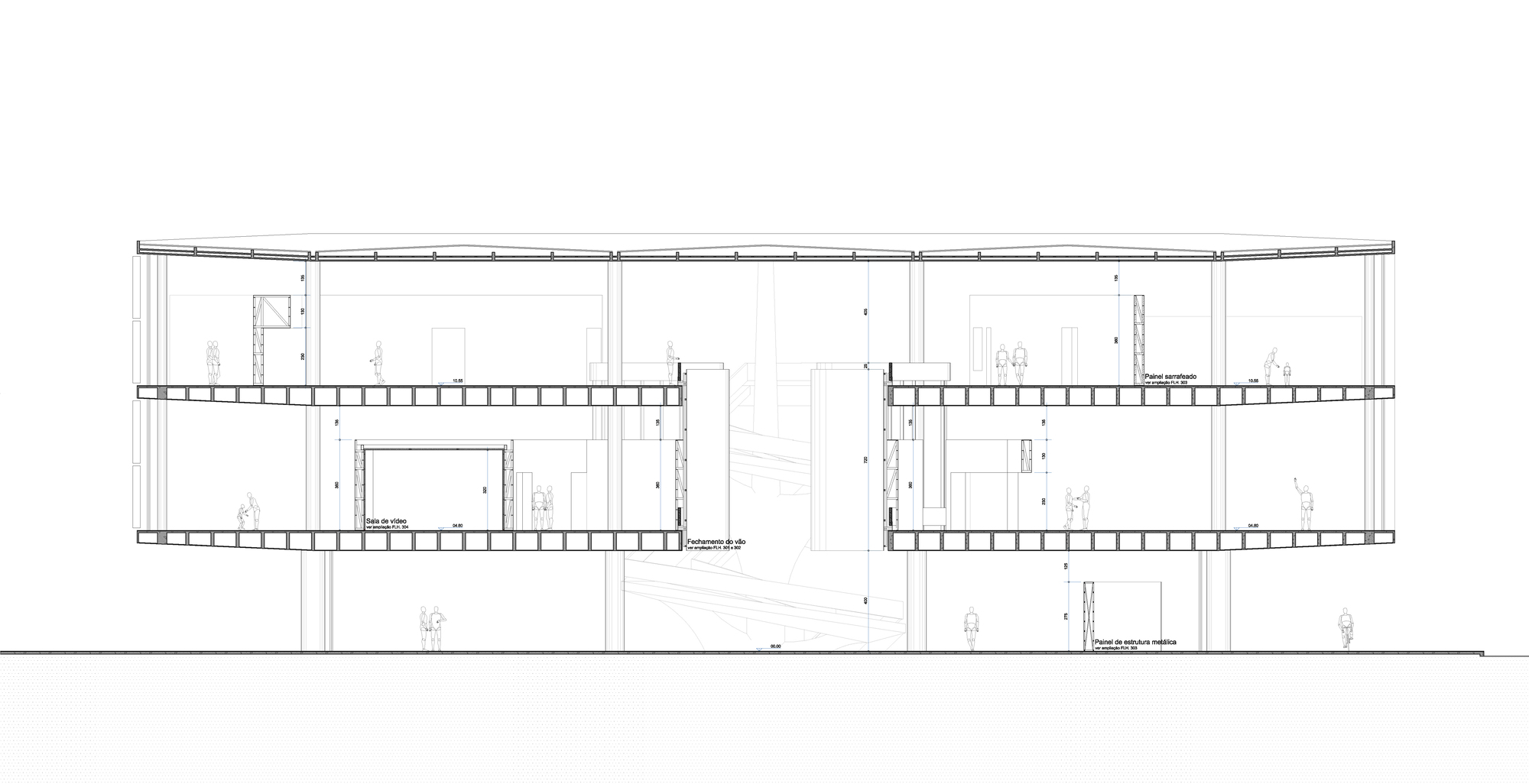
Inside the Pavilion, two sinuous drawings break the metric rigor of the extensive orthogonal planes (250 x 50m) modulated by a mesh of pillars: the mezzanine and the central span. Both represent moments when the authorial trace is most present, and it was in the reinterpretation of their geometric matrices that this proposal developed.
After many investigations of manipulation and deformation of the sinuous drawings, we arrived at the conformation of what we call the Body: the temporary constructions that organize the exhibition on its last two floors. The Body is the result of scaling the central span by two and a half times, added to the design of the mezzanine on a 1:1 scale. We can say that this is a drawing that was created, and therefore, it is neither new nor existing.
Despite the repeated appearance on two floors, the Body configures two completely distinct spatial experiences, where the relationship between solids (closed rooms) and "voids" (open spaces where works coexist) is inverted. This contrast suggests a movement of contraction and expansion of the Body, or even of inspiration and expiration.
On one of the floors, the Body of rooms is located amid the plan, phagocytizing the central span. This action causes the void between the slabs of the span to appear enveloped in all its height at a certain moment, altering the perception of this emblematic space since arriving on the first floor. The white and smooth materiality causes this action to merge with the building, causing eventual strangeness and confusing the memory between what is original and what is temporary. The same can happen on the ground floor, where the free space under the mezzanine was occupied by a volume, also white and merged, which concentrates the service areas.
The project proposes not only to dance with the existing but also with the available, as 73% of the straight panels used are remnants of old exhibitions, some even up to 30 years old. The entire project was designed from the best reuse of the material that came to define, including, the heights of this Body.
Throughout the process, the project also focused on an arrangement of sequences of movements that chain rhythms, alter speeds (accelerate, delay, pause), and articulate different scales beyond the monumental scale of the Pavilion. To subvert the sequential and hierarchical logic of the usual route (where bodies successively ascend, hit, and return the 250 meters of extension), we proposed an inversion between the 2nd and 3rd floors.
Project gallery
Project location
Address:Avenida Pedro Álvares Cabral, s/n | Parque do Ibirapuera | São Paulo – SP, Brazil
客服
消息
收藏
下载
最近


























































