查看完整案例

收藏

下载

翻译
Architects:Germán Samper
Area:12900m²
Year:1958
Talking about the Gold Museum means discussing an ambitious project resolved through simple design principles and sobriety. Inaugurated in 1968, this building, located on the eastern side of Santander Park, aims to establish itself as a humble capsule that intrigues visitors and takes them on a captivating journey through the world of Colombian artisanal skills.
The Gold Museum establishes an architectural parallelism with the Church of San Francisco de Asis (1567) located across the street, conveying the raw purity of the material in front of the city through the expression of its facades, ultimately leading to the radiant burst of light that emanates from the very heart of the volume.
Germán Samper himself describes the project as a chest that holds a precious treasure inside; it is precisely Samper who opts for purist white marble and decides to renounce any aesthetic gesture to give prominence to the shadows of the trees in Parque Santander.
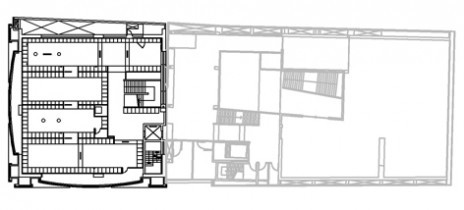
To contextualize the current state of the project, it is important to know that it was developed in two particularly significant stages in Germán Samper's life: the first stage of 6,600 square meters (1968) was carried out during his time at the Esguerra Sáenz y Samper firm, and the museum extension (2008) with GX Samper Arquitectos (a firm led by his own daughter) added an additional 6,300 square meters. Despite the age difference in the project's development, it is evident that the architect's spatial exploration remained consistent throughout the work.
Upon entering the museum, the glass-surrounded lobby presents the floating volume above our heads as a cosmogonic analogy to the conception of ancestral knowledge that resides over the visitor. This entrance serves as a reception area designed to invite the street and the park to step into the space. In fact, this is one of the constant concerns throughout the entire project: to find various means to incorporate the surrounding space into the volume and make it part of the exhibition, as if to emphasize that the present will, to some extent, become a relic in the future, disconnecting the viewer from any conscious temporality.
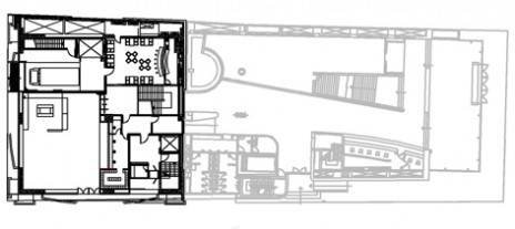
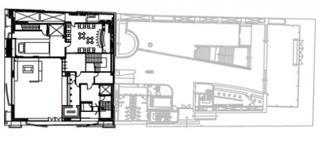
From this point onward, the museum branches off into different paths: continuing at the same level towards the restaurant, descending to visit the souvenir shop, or ascending the stairs to access the various exhibition rooms located throughout both the 1969 and 2008 buildings. Germán Samper makes a clear distinction between the administrative and museographic sections, even though they are in symbiosis within both volumes.
The inclined stairs are integrated with a connecting void that provides central light to the volume and disappears between each room, giving way to darkness. While in the original project, the circulation simply leads to the exhibition rooms, it is in the expansion where we see a preamble to each room created by a vestibule that frames the facades of the adjacent buildings. Additionally, there is furniture design that serves as an expression of the walls themselves, and an interior design effort evident in legends and historical paraphrases placed as finishes along the corridors.
We can understand the museum as a zigzag that utilizes the visitor as a needle, weaving through spaces and moving between the luminous voids to reach the darker chambers. From the first room, there is special care for lighting, and a labyrinth is resolved, even reaching the vast expanse of the eastern facade of the volume. This is how, hand in hand with museologist Efraín Riaño, each room is endowed with a character where, ironically, the space is defined by contemplation rather than materiality. The objects are arranged so that any physical boundary is completely blurred, immersing the viewer in an infinite cosmogony where light becomes the spatial conductor.
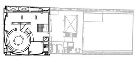
The last two rooms of the itinerary are particularly interesting and distinct from each other. The penultimate room, located in the extension of the museum, houses the so-called "Sala de las Ofrendas" (Hall of Offerings), a circular and theatrical space where a play of lights leads from total darkness to the unveiling of hundreds of carefully curated gold objects for exhibition. The final room, situated on the fourth and last floor of the original volume, is designed for temporary exhibitions and features a discreet patio that opens towards Santander Park and the neighboring buildings, including the Avianca Building, also designed by Germán Samper.
Interdisciplinarity is what gives birth to the final result of this work. It not only relies on architectural design to interact with the visitor but also draws upon the expertise of museographers and engineers to complement the architect's initial vision. The Gold Museum fulfills its programmatic objective of encapsulating a pre-Columbian treasure within its walls, while also showcasing a magnificent synergy between architecture and interior design.
Project gallery
Project location
Address:Carrera 7 No. 14-78, Bogotá, Colombia
客服
消息
收藏
下载
最近



























