查看完整案例

收藏

下载

翻译
Architects:Dharatal
Area:142m²
Year:2022
Photographs:Studio Nara,Dharatal,DFG
Manufacturers:Bajaj,Bellissimo Solutions,Dharatal,Lexda
Design And Conservation:Nishant Upadhyay
Design And Details:Viorel Acsinte
Structure Details:Anjaneya Sharma
Site Management:Angad Ankala
Contractor:Navdeep Sharma
Project Funding:ITRHD Belgium
City:Rajnagar
Country:India
Text description provided by the architects. Dharatal was commissioned by the Belgian Chapter of the Indian Trust for Rural Heritage and Development (ITRHD) in 2016 to design a Visitors’ Centre for Pateriya ka bagh, Rajnagar in a structure adjacent to an existing Shiva temple where an old kothi once stood. The Center acts as an interpretation center for the Royal Gardens of Rajnagar as well as a training center in organic farming for the local farmers, vocational training for women and youth, and a venue to host the organic seed bank run by the local community.
Pateriya ka Bagh is one of the fifteen royal produce gardens laid out in Rajnagar by the royal family of Chhatarpur, Madhya Pradesh between the 18th and 19th centuries across Bundelkhand. ITRHD funded the conservation of these royal gardens, formerly known as the Lost Gardens of Khajuraho. These gardens share a similar spatial typology - ranging from 3 to 6 acres; each is walled with an entrance gate, a Shiva temple, an outhouse/kothi, memorial platforms/samadhis with a draw-well, stepwell, and irrigation channels. The design intention was to create a contemporary architectural form with a Bundeli soul without creating a mere copy of the old kothi and incorporating traditional building techniques.
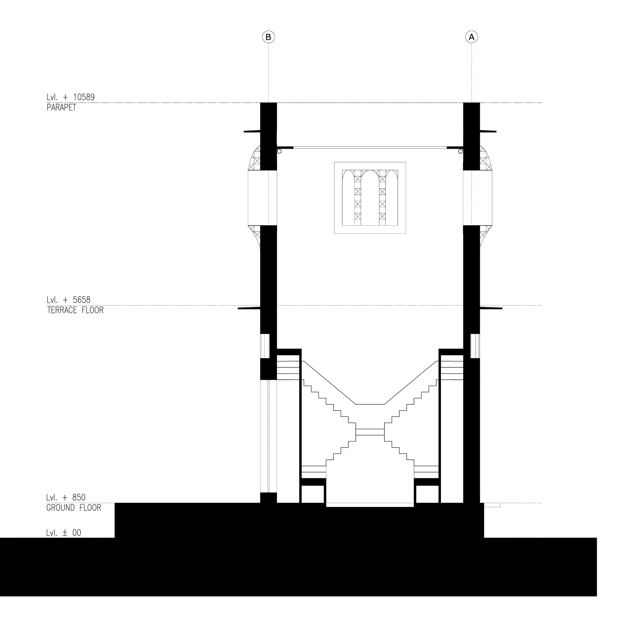
The kothi is a load-bearing structure, made primarily with lime, stone, and bricks. Following the original plan, the structure has one room with adjacent steps to access the roof. The design of the stairs was composed to invoke the feeling of a stepwell, typical of a Bundeli garden. The tall stairwell tower located in the south casts a shadow towards the north over the roof of the hall, keeping it cooler. The verandah in the front was extended as a venue for community events such as folk music concerts, community feasts during festivals, etc. The elevational proportions and projections of the kothi follow those of the adjacent temple and as seen in the other royal gardens.
The interiors are naturally lit with indirect lighting. The rectangular fenestrations have centrally pivoted arched wooden doors. Openings along the rear wall were avoided to follow the design of the original kothi and to cut the harsh west sun. This wall serves as an exhibition wall for the display of panels. A criss-cross pattern terracotta jaali has been provided below the slab level for cross ventilation. The pattern of the jaali is inspired by the windows in the historical structures found across Bundelkhand.
One of the unique architectural interventions is the three jharokhas (balconies) in the kothi. They are a contemporary expression, evolved and inspired by the traditional form of Bangaldar jharokhas. Each jharokha was crafted by assembling pieces of powder-coated Aluminium in situ. Comfortable ramps are incorporated into the design making the Visitors’ Center and the toilet block located at the rear, accessible to all. The roof slab of the kothi was made using locally available gneiss stone. The Visitors’ Center for the Royal Gardens of Rajnagar in Pateriya ka Bagh was inaugurated on 30th April 2022.
Project gallery
Project location
Address:Pateriya ka Bagh, Raneh Falls Rd, Rajnagar, Madhya Pradesh 471625, India
客服
消息
收藏
下载
最近































