查看完整案例

收藏

下载

翻译
Architects:11.29 studio
Area:144m²
Year:2023
Photographs:Beersingnoi
Manufacturers:COTTO,Ikea,Philips,Progidy
Lead Architects:Kantinan Na Nakorn, Chanon Pannayang, Thewaphon Phoonkamlang
Contractor:PP Dolos Company
Strcutural Engineers:PP Dolos Company
City:Rayong
Country:Thailand
11.29 studio bringing back the value of the unusable concrete spacer into 'Art studio' in Rayong. Furnish studio takes place in Rayong, Thailand. The studio was owned by a well-known- young Thais artist by the name of Bo Puntita. For some period of time, our team has been a part of her journey. The team gained experience and understood more and more not only about the artist but also about the space condition. Referring to an oil painting art studio, ventilation is the first thing to prioritize along with the site characteristics which inevitably influence the design.
The brief is to provide an adequate ventilated oil painting studio, which also escalated the working environment. In brief, the design planning first looked for a site opportunity, the pond, it was located northeast which brings a cold breeze to the area. Moreover, the site is surrounded by an agricultural area that does not commonly appear in an industrial estate province where mass construction and production of waste products is therefore unavoidable like Rayong. Since Rayong’s character is overly obvious, our team was inspired by the idea of creating usefulness from the unusable component. Therefore, consuming an unusable product and local materials is the main issue to reduce transportation energy as part of designing the studio. In terms of architecture, concrete spacers which are waste products from concrete testing, and bamboo battens were used as the building’s skin allowing flexibility of wind circulation and light filtration. It not only indicates specialty but also simplicity of construction.
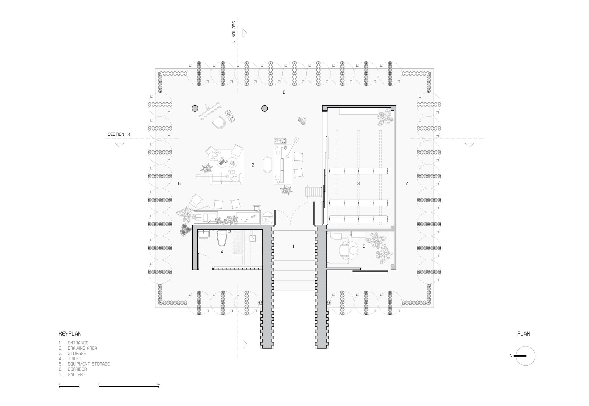
According to the oil painting studio, the requirement is narrowed down to prioritize mostly open spaces, which are not only for ventilation but also for creating multiple perspectives for an artist. 11.29 studio questioned how to make use of those industrial waste products. The team seeks beauty and usage from the unusable component that appears in Rayong which tries to answer what the material will be at its highest potential. Although it is already considered a waste product, do they still have the opportunity to be in other conditions and act in other roles? This led to the answer of consuming concrete spacers in the design.
As a tropical country, the temperature always rises along with global warming issues. People survive with air conditioning, which also affects global warming in the future, but what if we could survive without using air conditioning or reducing electricity consumption? It would be better for the world, isn’t it? Furnish studio was designed to support those ideas. The use of concrete spacers not only minimized industrial waste but also lowered the construction budget, which could be used on elevated interior space. Flexible bamboo battens were used to answer the idea of lowering electricity consumption, bamboo is a local material that is easily found and locally grown in Thailand. Circular swing bamboo battens allow the artist to adjust the opening angle and light density freely. This benefits both the owner and society.
Project gallery
Project location
Address:Rayong, Mueang Rayong District, Rayong, Thailand
客服
消息
收藏
下载
最近

























