查看完整案例

收藏

下载

翻译
Architects:Carvalho Araújo
Area:2800m²
Year:2022
Lead Architect:José Manuel Carvalho Araújo
Architect:Alexandre Branco, Ana Carolina Moura, Gonçalo Fernandes, Hélder Ferreira, João Lago, Joel Moniz, Margarida Araújo, Pedro Mendes, Tiago Almeida, Tomé Capa
Builder:Construtora Porto
Waterproofing:Engº Rui Leite Jr.
Installations:FIP Engenharia
Structure:MD Engenheiros associados
Landscape Architecture:Régis B. Tavares
Country:Brazil
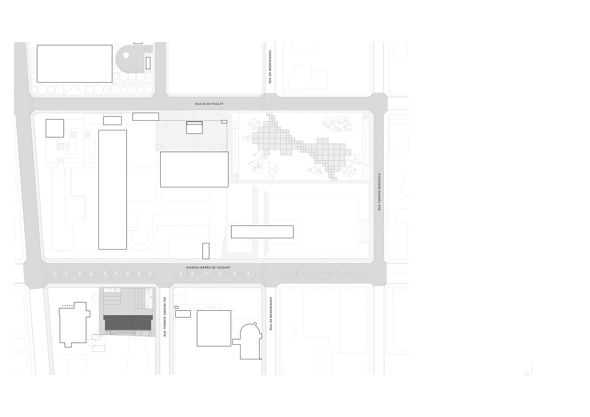
Text description provided by the architects. The new building of MIS - Museu da Imagem e do Som - is located in the environs of Palácio da Abolição, establishing with it a relation of respect, not only the scale but also the design of the new object and its relation with the urban space.
The location at the land’s boundary enables liberating the outer area of the urban front, allowing the definition of a frontal square that formally results like an extended carpet that rises to define a big vertical element and that establishes a continuous surface between “stage” and “screen”.
An outer covered space marks the separation between the horizontal and the vertical elements. This option allows creating of a kind of scenery for the urban space, bringing to us the image of the amphitheaters. It is the image of the building.
Project gallery
Project location
Address:Fortaleza - Ceará, Brazil
客服
消息
收藏
下载
最近

























