查看完整案例

收藏

下载

翻译
Architects:Mathew and Ghosh Architects
Area:4089m²
Year:2023
Photographs:Iwan Baan
Manufacturers:3M,dormakaba,ACO Drainage,Saint-Gobain,Alufit,Bottomline,Featherlite,Foley Designs,Gandhi Automations,Godrej,Grundfos,HARMAN,Haws Co.,Hikvision,Hydro Fabs,Jindal Steels,Kirloskar,Kohled,Kone,Panasonic, +6Socomec,Somany,Tata Elxsi,Thermodrain,Voltas,Xtreme-6
Lead Architects:Soumitro Ghosh, Nisha Mathew
Structural Consultants:Manjunath consultants,KPM Engineering, Manjunath & Co.
Lighting Consultant:Lirio Lopez
MEP Consultants:KPM Engineering,E-Sollutions
Project Management Consultants:Kris Cooper PMC Pvt. Ltd.
HVAC Consultans:Coldaire Inc.
Electrical Installations:Southern Electrical Co.
Project Architect:Saikat Ray
Design Team:Akshay Mahale, Rahul Pingale, BS Jyothsna, Prajna Karanth, Omar Faroque
Map Architecture Advisor:Rahul Mehrotra
General Contractor :Dan Constructions Pvt. Ltd
Facade Consultants:Meinhardt Facade Technology
Accessibility Consultant:DEOC
Aluminium Facade Cladding:Alufit International Pvt. Ltd.
Fire Consultants:FirePro
Phe Consultant:Jobis Engineering
Micropiling:Compendius Engineering Solutions
Branding Consultant:TSK Design
Technology Consultant:Opezee
Signage Consultant:MIPL Global
City:Bengaluru
Country:India
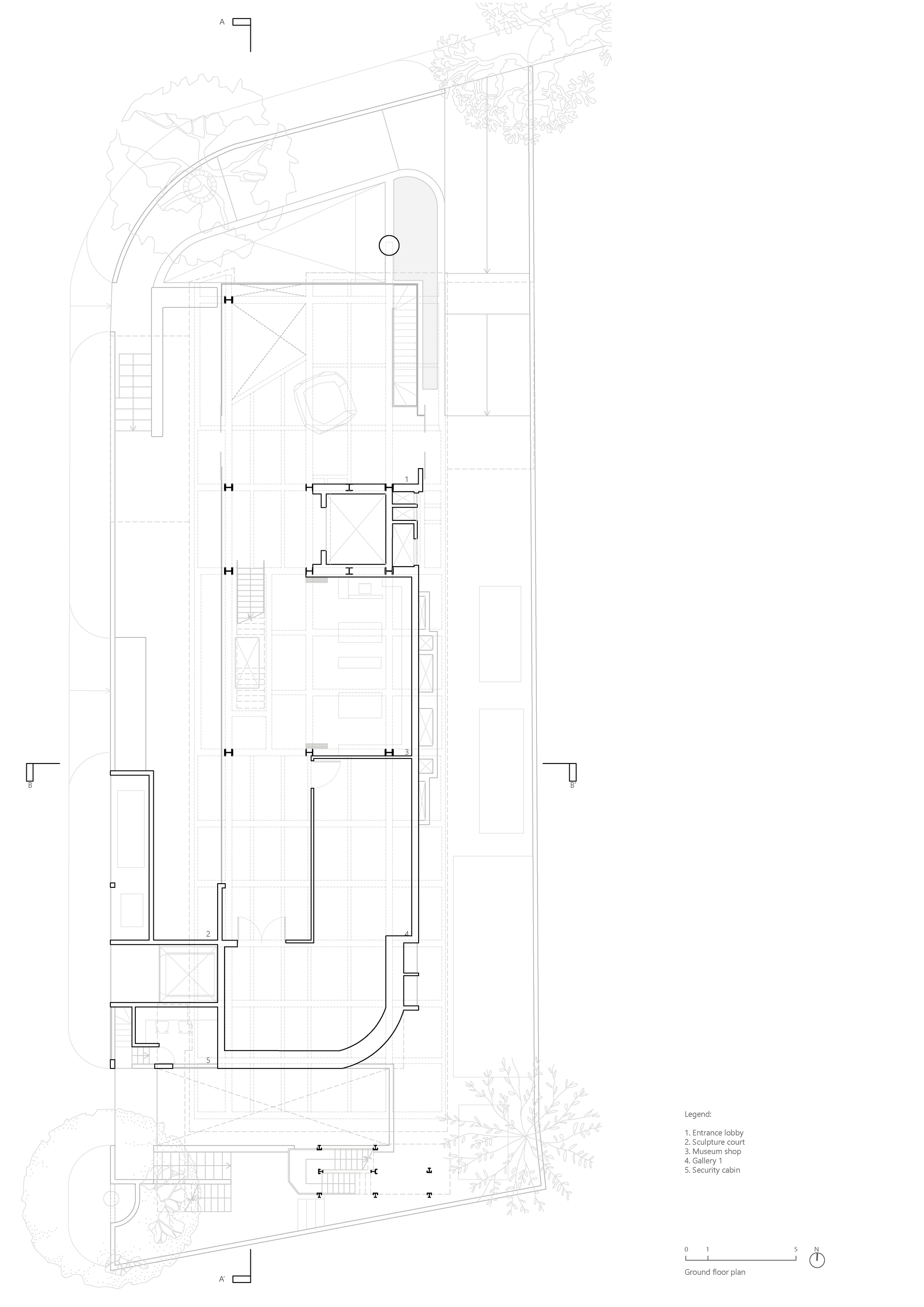
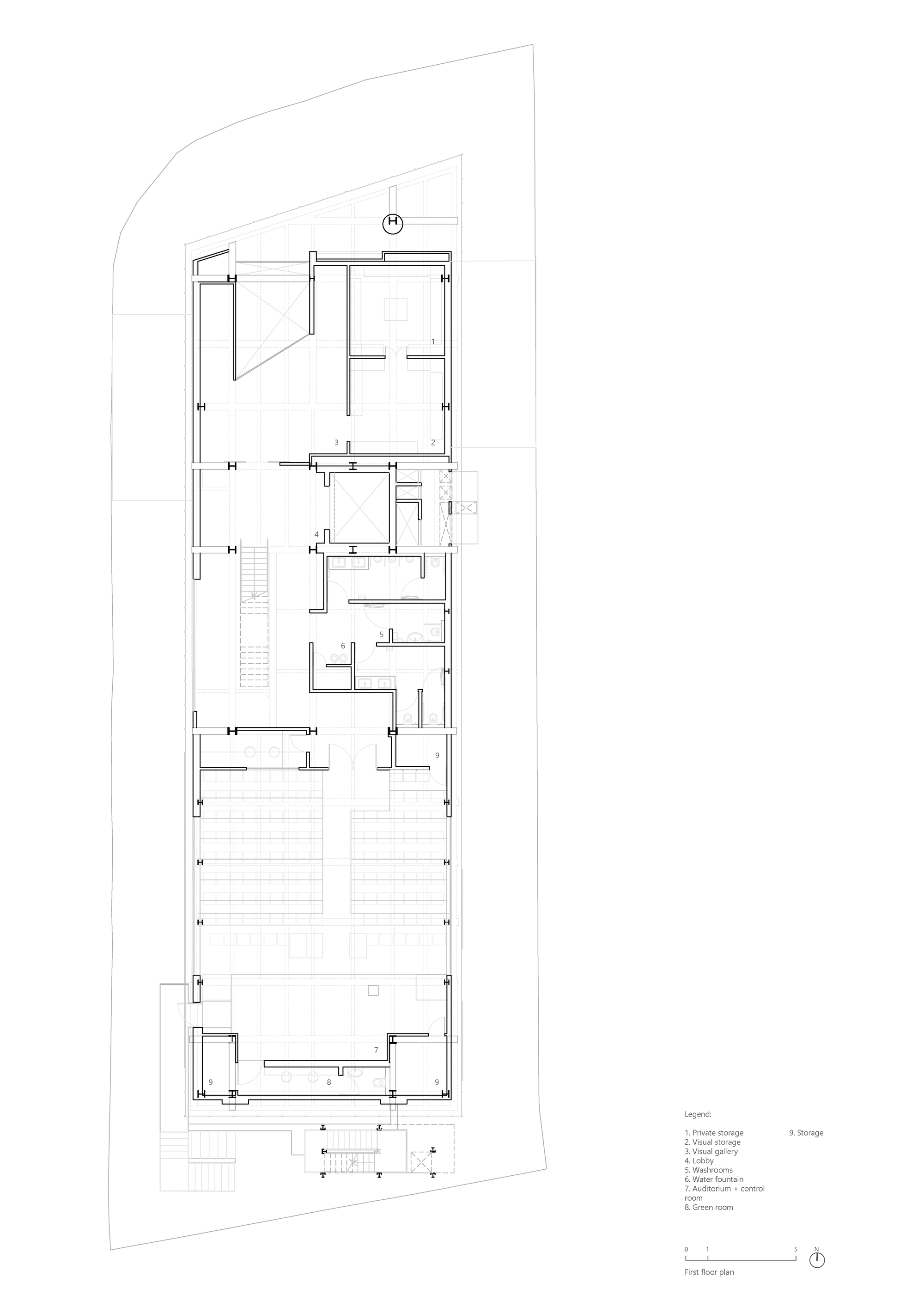
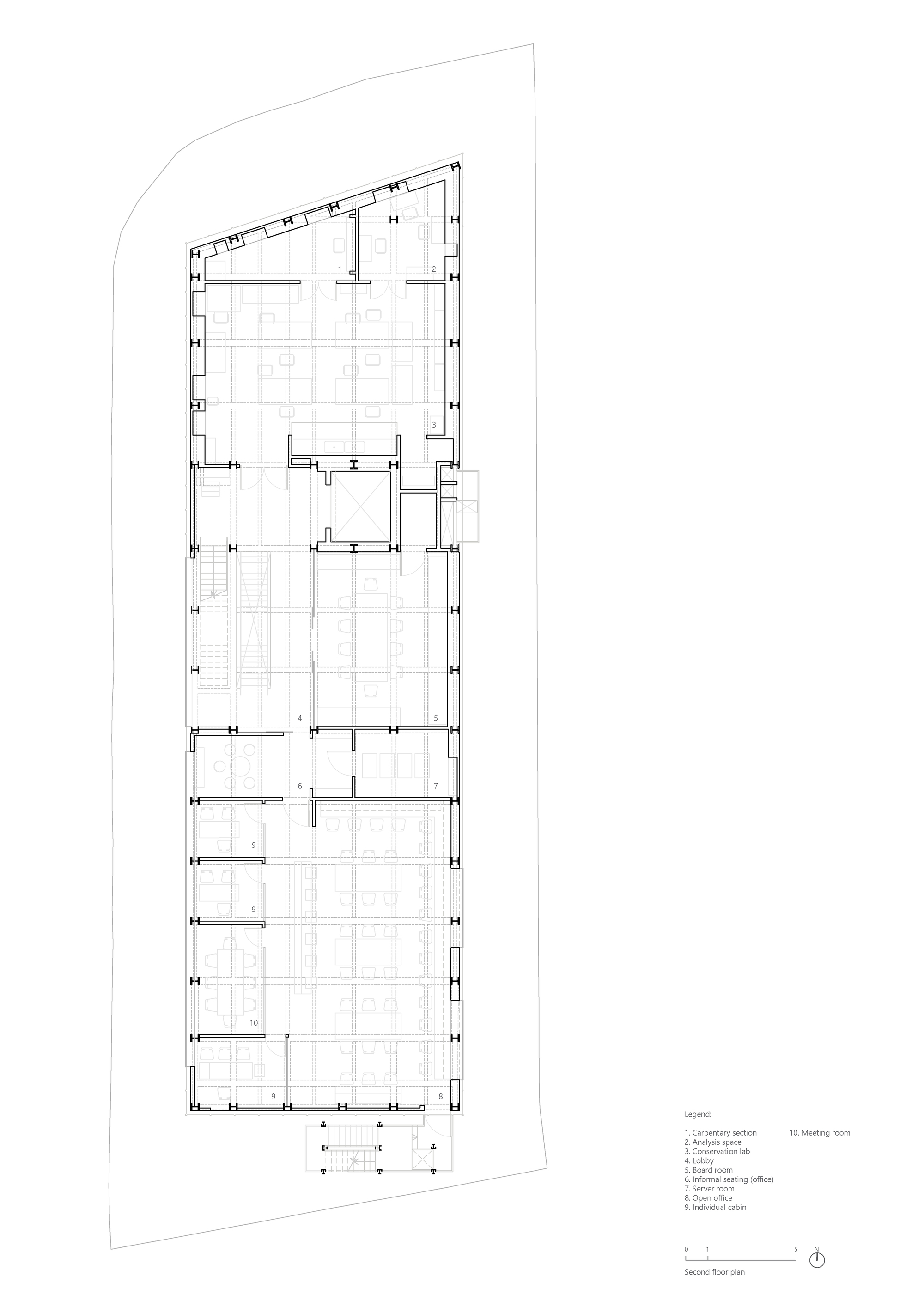
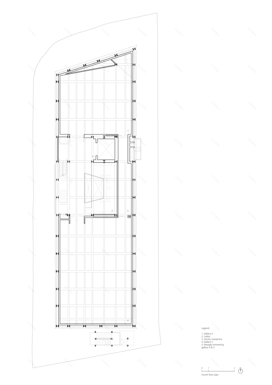
Text description provided by the architects. In a global unfolding post-colonial narrative, the ideas for a Museum in contemporary India hinged on excursions of mnemonic recall and equitability. The Museum of Art and Photography, Bangalore India, MAP plays on the tensions between the idea of collecting -collating, containing, and storing - which is the fodder for curatorship, and engagement with communities that embed the work as part of lived experience in the city of Bangalore, from the mundane to theatrical, and exotic to equal. The Museum design internally predicates art and its showcase over spatial dramatics to present generic gallery spaces, that insulate precious art and artifacts from ultraviolet light.
The hermetically sealed stainless steel imagery subverts the pristine iconic and exclusive by the election of material and motif that is mnemonically relatable to the idea of containment - the stainless steel post-industrial water tank: The mundane-accessible also referencing Art's (and Architecture's) capacity to create the thrust for reflection and change if need be. Perhaps one day it would just be recognized as the local 'tanki' (local water tank) for artistic nourishment!
The idea of the 'veranda - plinth' off the street is a significant marker of social discourse both at dwelling as well as institutional scale in this geography: Its role allows a dialogic space to negotiate visual visceral and emotional engagements. The 'plinth of negotiations' may thus weave threads of fragility and humility as one traverses the landscape of discovery of the 'other' versus art.
Project gallery
Project location
Address:22, Kasturba Rd, Shanthala Nagar, Ashok Nagar, Bengaluru, Karnataka 560001, India
客服
消息
收藏
下载
最近































