查看完整案例

收藏

下载

翻译
Architects:RPK Architects
Area:600m²
Year:2020
Photographs:Adam Borman,Katelyn Astair
Manufacturers:Altro Orchestra,Benjamin Moore,Formica,Ikea,Johnsonite,Roppe,Tarkett
Structural Engineering Company:Entuitive
Mechanical Engineering:MCW Hemisphere
Electrical Engineering:MCW Hemisphere
Design Architect:Jan Kroman
Intern Architect:Dania Atassi
Project Designers:Robert Maggay, Teagan MacNeil
Contract Administration:Dan Letourneau
Artistic Director:Quarter's Art
Project Sponsor:City of Edmonton
Project Manager / Contractor:Stantec
City:Edmonton
Country:Canada
Text description provided by the architects. Revitalizing a vacant building, on a prominent corner of the Quarters neighborhood in downtown Edmonton, Ociciwan Contemporary Art Collective (OCAC) will provide a physical home for local Indigenous Canadian modern art. The building’s new multifaceted mirrored façade is symbolic of the collective’s commitment to innovation and creativity; the ever-changing reflections are a commentary on how the building and the art within can lead to shifting contemporary dialogues around indigenous traditions, breaking normative expectations. A secondary reading implies a reinterpretation of Métis beadwork, the facade as tectonic adornment.
The City’s minimal capital investment saw immediate returns animating the street. The gallery has become a destination that brings visitors from beyond the city’s boundaries. Ociciwan’s hours of operation will lend themselves well to ensuring vibrancy beyond the typical 9 to 5 that can be seen in parts of downtown.
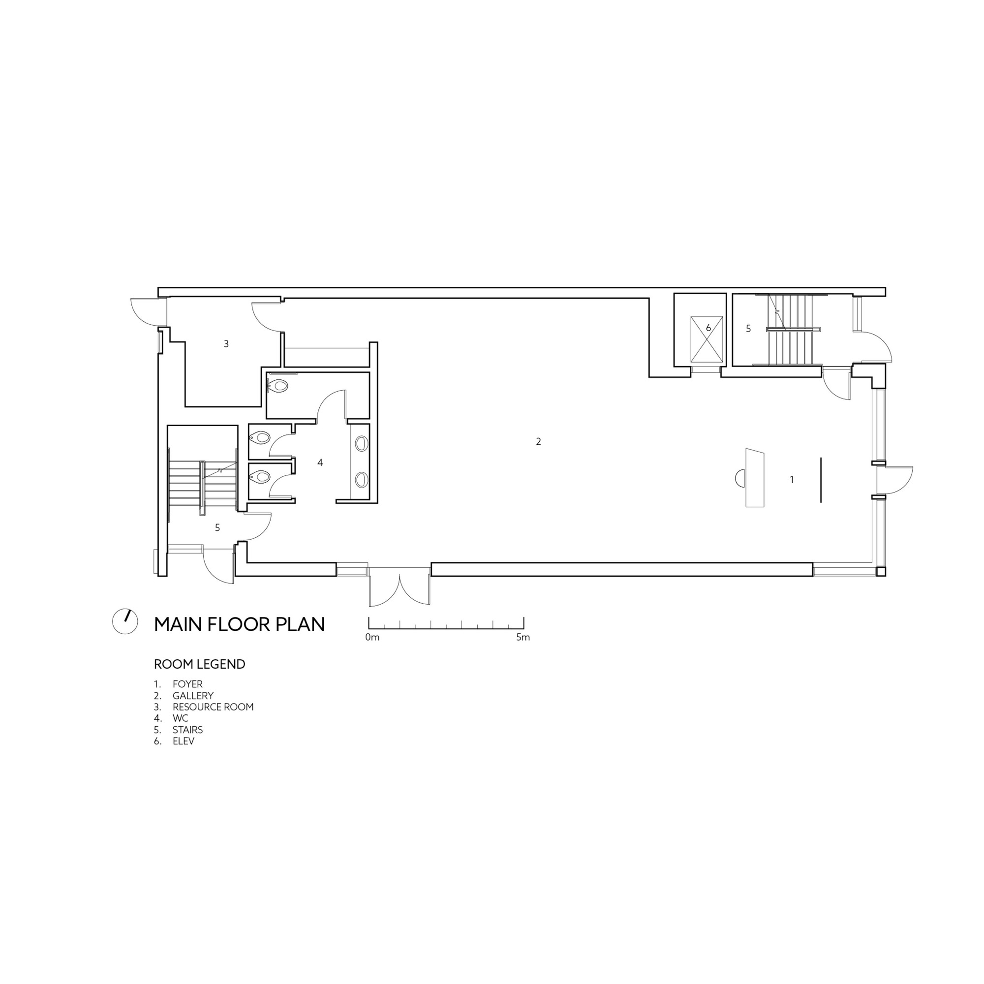
The OCAC is prominently located on the junction of a major downtown thoroughfare and a neighborhood main street, demonstrating that a finer grain of revitalization is possible in the community. From an urbanistic perspective, the focus of the project was on reactivating the building’s edges by aligning the largest and most vibrant programs along its perimeter, projecting the art outwards while drawing pedestrians in.
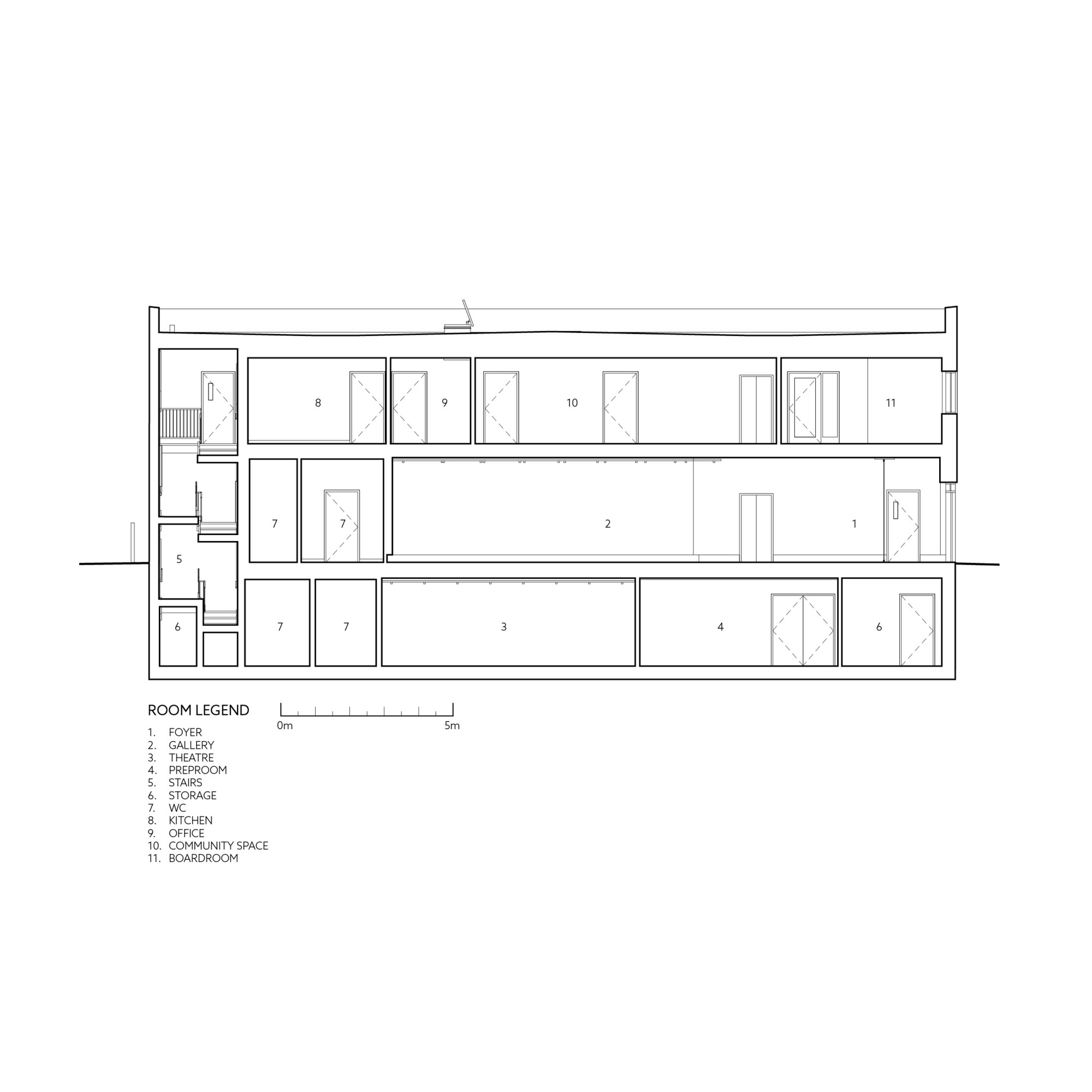
Interior alterations focused on creating flexible accessible spaces that can suit many types of art installations and programs. Where possible, natural raw materials echo a sense of authenticity with their simplicity and sophistication. Below grade, a black box type space is calibrated for audio-visual presentations and projected installations. Some existing graffiti in the stairwell has been retained, acknowledging the building’s past as a youth art center. All three floors were made accessible via limited use lift.
Crime prevention through environmental design (CPTED) was a consideration throughout the process with key interventions calibrated to maximize visibility and surveillance. Expanded glazing at grade improves the ambient glow emanating from the building at night. Existing exterior alcoves are illuminated with linear LED lights to eliminate dark entryways and remove blind spots both at street level and above. Linear LEDs have also been embedded into the reflective panel façade, creating a kinetic effect, appearing and disappearing as one moves past the building at night.
Ociciwan Contemporary Art Collective is a sympathetic adaption of an existing underwhelming structure. Through its current purpose and outward appearance, it breaks new ground while respecting history and context.
Project gallery
Project location
Address:Edmonton, AB, Canada
客服
消息
收藏
下载
最近


























