查看完整案例

收藏

下载

翻译
Architects:architecten|en|en
Area:135m²
Year:2022
Photographs:BASE Photography
Manufacturers:Finti,Gutex,H. Oude Hengel,Houthandel van Dal
Lead Architect:Joost Verbeek
Interior Design:Clip interieurarchitectuur
Structure Engineers:Vander Weide van Bragt
Main Contractor:De Vijfduimer Timmerwerken
Engineering & Construction Supervisor:Rob van den Broek
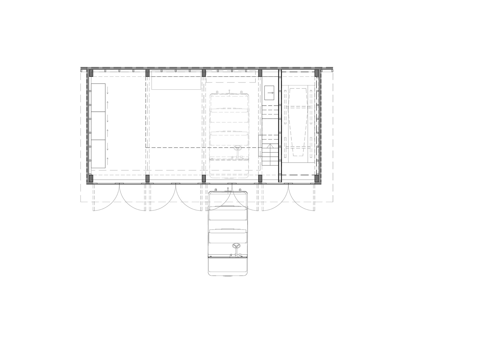
Field Barn Area:50 m2
Info Barn Area:65 m2
Washing Barn Area:20 m2
City:Lage Mierde
Country:The Netherlands
The Natural Step. 'De Utrecht' is a natural cemetery that is part of the 'De Utrecht' estate located just below Hilvarenbeek. It is an initiative of director Joyce Sengers. She is a landscape architect and discovered the phenomenon of natural burial in England over fifteen years ago. This appealed to her so much that, after working at British natural cemeteries, she also wanted to make this way of burial possible in the Netherlands. Burial in nature connects to the natural cycle of life. Anyone who is buried in a natural cemetery expresses this solidarity and contributes to the natural cycle of recycling.
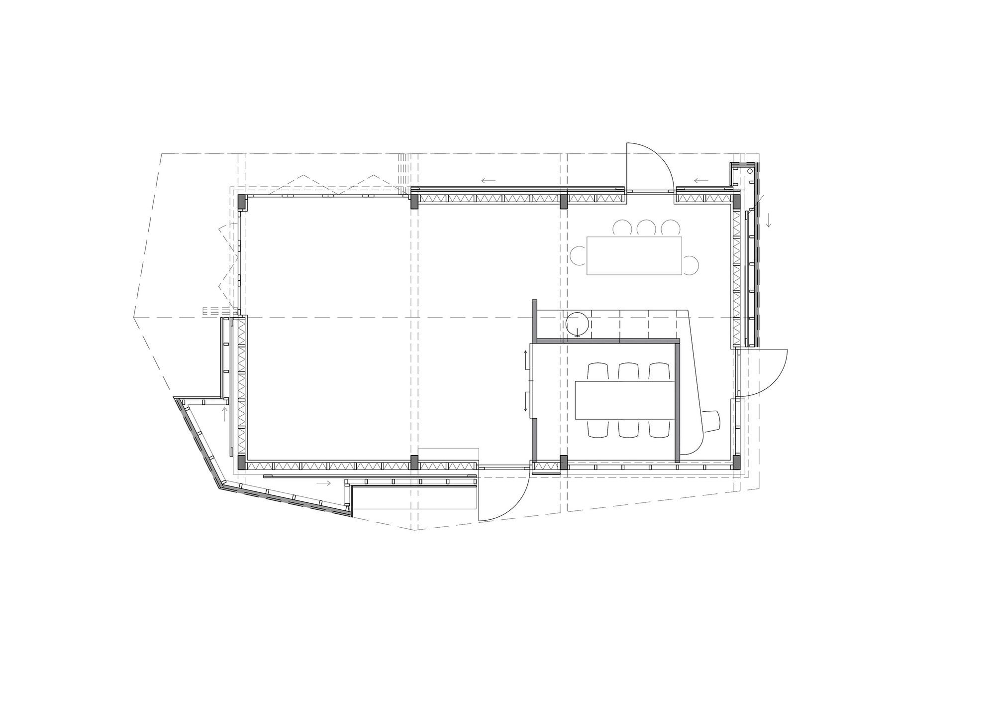
Little Village. Three pavilions have now been realized as an ensemble around a little square created on the Scheidijk path, directly on the border between the municipalities of Hilvarenbeek and Reusel-de Mierden. A mini village: warm, clear, and pleasant. A ‘field barn’ for storage and parking of various vehicles, a ‘washing barn’ with public toilets and a shower room for the employees; and the ‘information barn’ for information and explanations about natural burials and where relatives can meet. For the funeral ceremony, they can choose a big tarp on the cemetery itself or in one of the present open-air nature theaters.
Typical local barn architecture. The design of the buildings gives a friendly nod to the traditional agricultural world of the surrounding area. The barns have different signatures and all have a different asymmetrical roof construction. The buildings were immediately more or less accepted and taken in by nature. The living proof of this is the bats. In the first few months that the buildings were built, they already moved into the field barn.
January storm 2020. The pavilions are built with larch trees: conifers of the Utrecht that fell in the spring storm of 2020. Planks were sawn from the logs on location. They were planned with great patience by timber trade van Hal, located just around the corner. Local and circular, entirely in accordance with the philosophy of the natural cemetery.
The facades on the side of the little square are covered with vertical larch planks of different widths. The roof and rear facade, on the other hand, are completely clad with 2 meters long, halved round, roughly peeled, squared beams with a diameter of 80 mm, which are arranged in a random pattern, parallel to the ridge or roof baseline. Solar panels are tightly concealed in the roof between the beams.
Part of the inner walls of the washing shed and all inner walls of the information shed is provided with a layer of clay. The ceilings are clad in thuja wood, also sourced from the surrounding forest. If you look closely, you can see wool in between. This layer offers acoustic comfort by damping sound. A shepherd who tends the moors on the estate with his sheep has supplied the wool. It is, of course, fantastic to source your building materials locally as much as possible.”
Project gallery
Project location
Address:5094 Lage Mierde, The Netherlands
客服
消息
收藏
下载
最近




























