查看完整案例

收藏

下载

翻译
Architects:S-AR
Area:234m²
Year:2020
Photographs:Ana Cecilia Garza Villarreal
Manufacturers:Vitro®,Cemex,Maderería el Salto,Metall und Logistik
Lead Architects:César Guerrero, Ana Cecilia Garza
Collaborators:Carlos Morales, Marisol González
Structural Engineer:CM Ingeniería
Supervision:S-AR, Gonzalo Tamez
Builder:Gonzalo Tamez, Enrique López
City:Monterrey
Country:Mexico
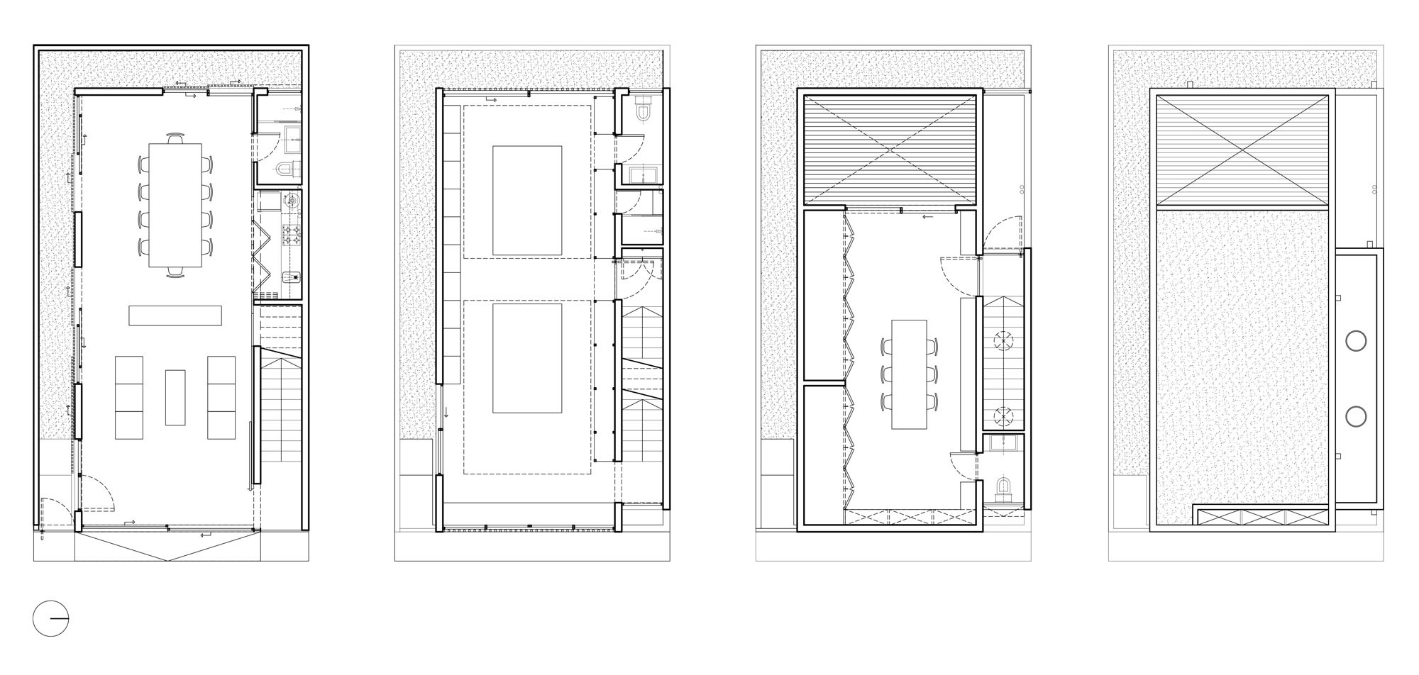
Text description provided by the architects. The aim of this project is to distribute the gallery spaces in a small three-story building. The first floor contains a public space for readings and lectures, as well as a kitchen to help prepare exhibition openings. At the rear of this level, a room was created for artist residencies, containing its own bathroom and a patio. This level employs a construction system based on unfinished cinder block walls and steel deck slabs on white-painted IPR beams. The enclosures are made specifically for this building from wood, aluminum, glass, and metal mesh.
The second level is the open-plan exhibition area intended to display a range of artworks and interventions. This level has walls finished in plaster, white paint, and a reticular reinforced concrete slab with coffered formwork that was left exposed.
On the third floor, a reading room also serves as an office and meeting room. This space is clad with strips of pine wood and a ceiling slab of exposed, bare concrete. The gallery is crowned with an open-air patio that also serves as a lookout point when the metal doors enclosing it are opened.
All these spaces are positioned at the center of the plot, leaving the vertical circulation routes on the side of the adjacent property boundary, while the other side forms a lateral patio letting light into the ground floor. This establishes a contrast with the dark ambiance of the circulation block, where the staircases form single flights: a concrete stair in the first section and a timber stair in the second.
The upper levels receive daylight from the short sides of the volume, through folding doors that can be adjusted to provide more or less light and privacy, and also form the front and rear façades. The south-facing lateral wall is clad with corrugated metal to provide a thermal barrier to solar gain. Combined with the polystyrene-filled blocks used in the walls, this helps to keep interiors fresh during the city’s warmest months.
Taken together, these construction, layout, and finishing elements serve as artifacts added to the basic structure to provide the building with specific advantages in terms of thermal comfort, light, and appearance.
Project gallery
Project location
Address:Monterrey, Nuevo Leon, Mexico
客服
消息
收藏
下载
最近























