查看完整案例

收藏

下载

翻译
Architects:Brasil Arquitetura
Area:6211ft²
Year:2021
Photographs:Brasil Arquitetura
Lead Architects:Francisco Fanucci e Marcelo Ferraz
Project Team:André Villas Boas, Anne Dieterich, Anselmo Turazzi, Cícero Ferraz Cruz, Gabriel Mendonça, Gustavo Otsuka, Harold S. Ramirez, Julio Tarragó, Laura Ferraz, Luciana Dornellas, Victor Gurgel e William Campos
Interns:Gabriel Carvalho, Giulia Lucente, Guilherme Tanaka, Juliana Ricci, Pedro Renault e Roberto Brotero
Model:Guilherme Tanaka
Structural Engineering:Diego Troian
Builder:Elito Lima dos Passos
Main Supplier:Cerâmica Fachinetto
Country:Brazil
Text description provided by the architects. The project for the Fachinetto Ceramic Museum is a realistic project in terms of costs and constructive solutions, without giving up the spatial and poetic richness that a museum like this must have.
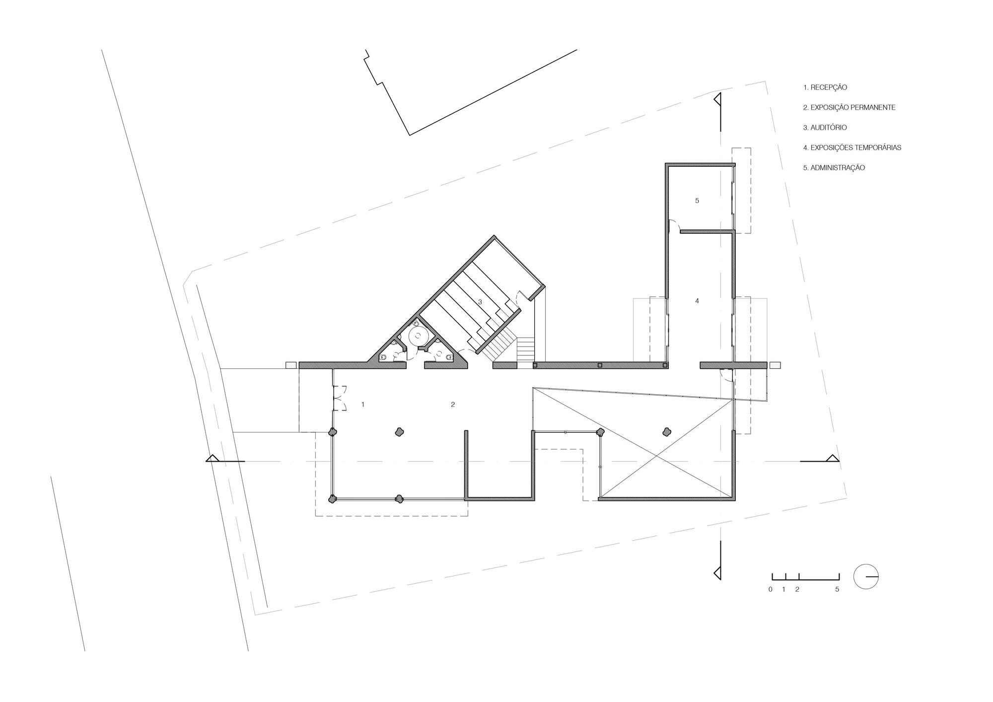
The museum has a built area of 530m², with 330m² on the upper floor and 200m² on the lower floor. Its location takes advantage of the terrain's topography, since there is a 3m gap between the highest part next to the street and the back part, almost naturally suggesting the adoption of single height ceilings in the front block and double heights at the back.
This same unevenness, accentuated in the region of the natural basalt rock, is evidenced in the project as a large cut – a fault – that crosses the terrain from side to side, passing through the interior of the building. The design intention was to place the building on the ground as it is, without major earth movements.
Fachinetto ceramic brick will be used as the basic material for the structure and walls of the entire project – structural walls and columns and sealing walls. Even if the brick is painted, therefore, it will be the hallmark of the museum's personality. Concrete should only be used in foundations, beams and slabs.
The columns must be made one by one in anomalous organic shapes of mixed bricks (whole and broken). They will be like large sculptures that will support the roof slab.
A large 45 cm thick brick wall guides the entire project and uses of the museum. This wall functions as a large backbone, 35 meters long, oriented exactly north/south. This wall should be entirely made of bricks laid with various types of rigging, showing the intrinsic richness of the ancient technique of masonry. It is an integral part of museography.
A sequence of uses accompany the development of this wall, accentuating its presence as a structuring element of the project. Starting with the reception and reception – where the old truck welcomes visitors – a permanent or long-term exhibition will be set up, which will tell the story of Cerâmica and the Fachinetto Family; following the wall, there will be a timeline with objects and panels that will show ceramics in the history of humanity (of course always emphasizing the use of brick and tile); there are two paths to follow, the mezzanine that reveals the entire lower floor and takes the visitor to the exhibitionsrooms and the balcony that overlooks the family's old house with its exuberant vegetation, or you can take the stairs that lead to the auditorium and the lower floor.
On the lower floor, the museum continues with more participatory and interactive spaces and activities, such as a library, research, ceramics workshop for courses, café and didactic and recreational activities. Groups can leave from this lower floor for a guided tour of Fachinetto Ceramics.
Next to the stairs, taking advantage of the unevenness of the terrain, a small multipurpose auditorium for 48 people will be implanted, giving more visibility and comfort to users.
A high-resistance flattened cement floor will be used throughout the building, with low maintenance and great efficiency in an environment with a large flow of people.
On the roof, there will be a garden slab as a thermal insulation solution that is also easy to maintain.
Project gallery
Project location
Address:Arvorezinha, Río Grande del Sur, 95995-000, Brazil
客服
消息
收藏
下载
最近






























