查看完整案例

收藏

下载

翻译
Architects:Allied Works Architecture
Area:19000m²
Year:2021
Photographs:Jeremy Bittermann, JSA
Manufacturers:Unika Vaev,Castle Bespoke,Kawneer,LumLEX Lighting Services
Civil Engineering:Devco
Structural Engineering:Devco
Principal Architect:Brad Cloepfil
Principal In Charge And Project Manager:Chelsea Grassinger
Managing Principal:Kyle Lommen
Project Architects:Daniel Toole, Chris Brown, Philip Balsiger
Exhibit Design:Project Renate
Mep/ Fp Engineers:Glumac
Lighting:Arup
Acoustics:Jaffe Holden
Building Envelope:Morrison Hershfield
Specifications:M.Thrailkill Architect
City:Corvallis
Country:United States
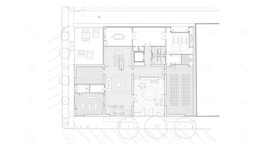
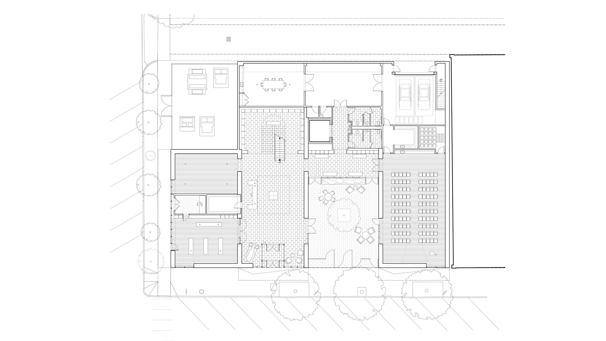
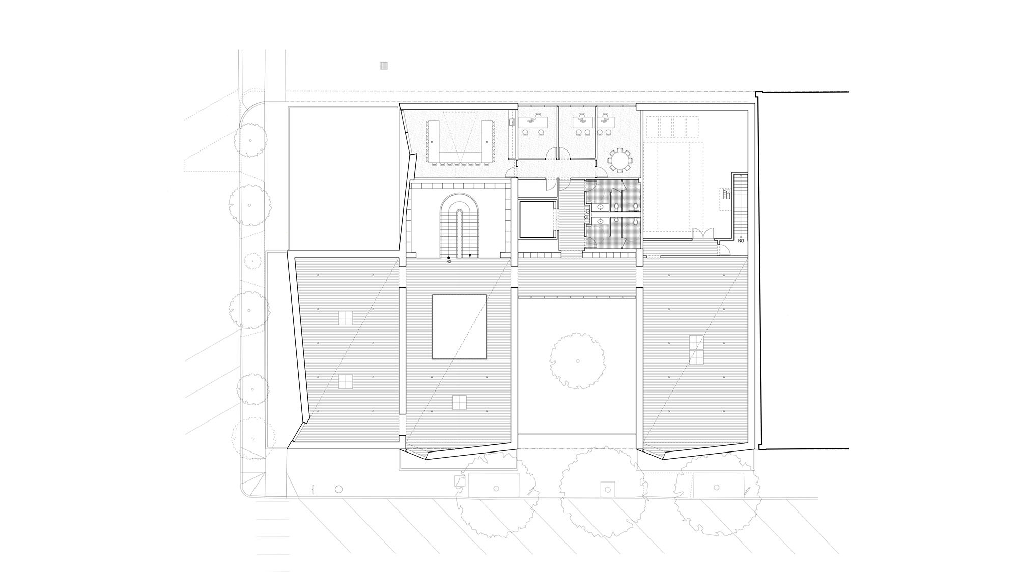
Text description provided by the architects. In 2009, Allied Works was selected to design a new museum for the Benton County Historical Society in Corvallis, Oregon. The Museum showcases a growing collection comprised of cultural artifacts, natural history specimens, and archives entrusted to them by Oregon State University. The BCHS aspired to elevate its visibility in the region by creating new galleries and interpretive spaces in the historic heart of the central Willamette Valley, and within a lively pedestrian district of Corvallis. The design creates new perspectives into the objects through a range of curatorial strategies, and its thoughtful programming brings new educational, social, and cultural opportunities to the community.
Located opposite a 125-year-old general store and the former territorial capital of Oregon, the new, 19,000 sq. ft. museum asserts a contemporary presence and complements these sites and a neighboring 1920’s post office through massing, material, and detail. Four parallel structural bays echo the scale and meter of the neighboring storefronts, while facades of ceramic tile re-interpret the masonry building traditions of the historic downtown core.
The building embraces the street, inviting the public into the lobby and orientation gallery, museum store, multipurpose classrooms, and courtyards at ground level. Upper floor gallery windows project over the sidewalk, allowing glimpses of the art and activity within, and framed views out to the surrounding district.
Within, visitors are guided up a grand staircase, lined with wood paneling, into a series of interconnected galleries. Above, the galleries occupy clear-span bays, bisected on the diagonal by clerestories that provide controlled natural daylight for viewing the varied nature of the collection. The new building will also serve as a home base for BCHS curatorial, programming, and community outreach staff.
Opening in 2021, the Benton County Historical Society Museum supports new engagement with the region’s art and history, and a new model for local and regional institutions throughout the country.
Project gallery
Project location
Address:Corvallis, OR, United States
客服
消息
收藏
下载
最近











