查看完整案例

收藏

下载

翻译
Architects:Helin & Co Architects
Area:520m²
Year:2020
Photographs:Business Finland/PA Asikainen
Manufacturers:Metsa Woods
Lead Architects:Pekka Helin, Ritva Mannersuo, Susanna Tolvanen, Totti Helin
Structural Engineer:A-Insinöörit
Interior Designer:Ulla Koskinen
Local Architect:Guest House Co. Ltd.
City:Tokyo
Country:Japan
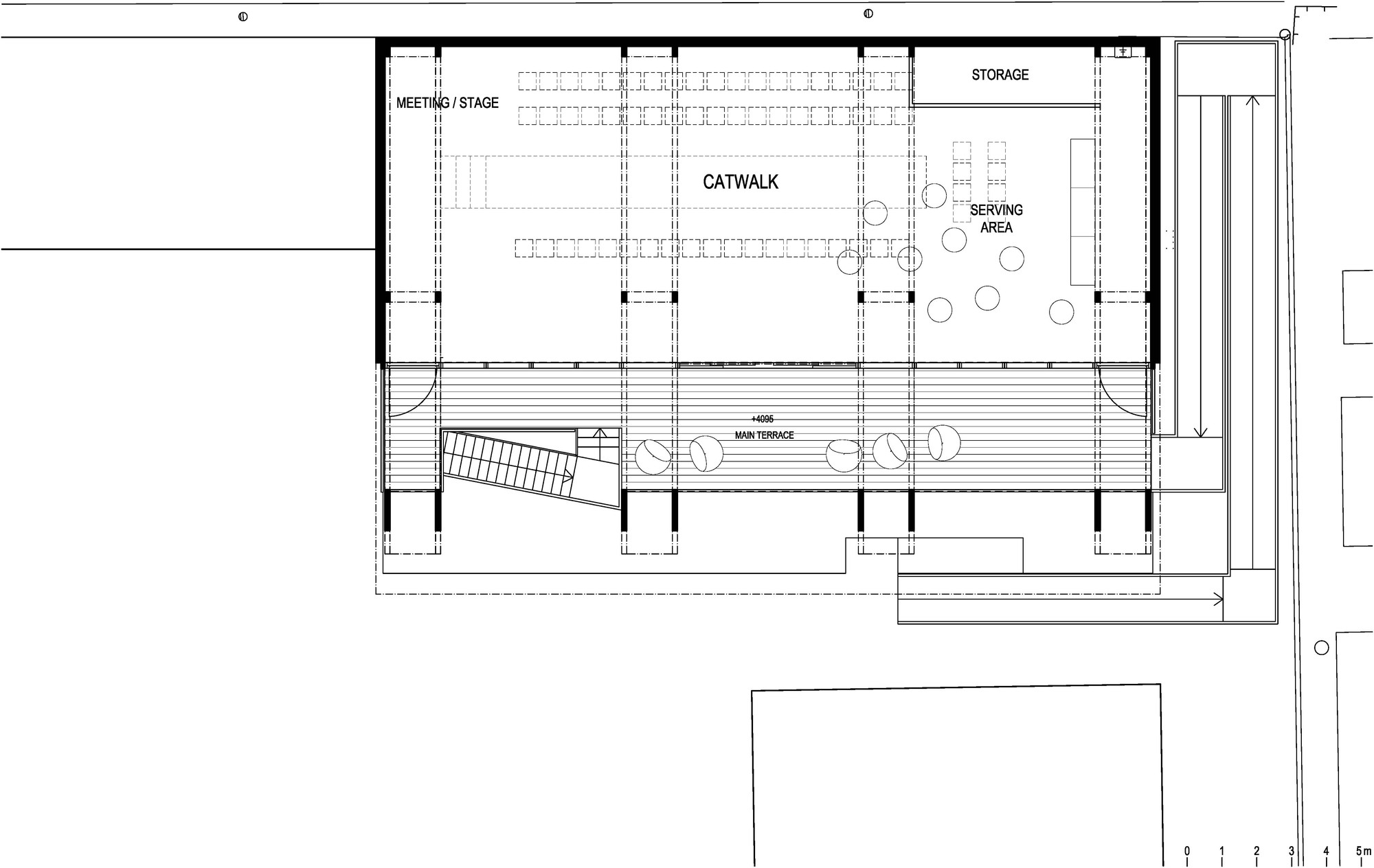
Text description provided by the architects. Centrally located in Tokyo on the site of the Finnish Embassy, the Metsä Pavilion showcases the opportunities of wooden element construction on challenging urban sites. Originally designed as event space for the 2020 Olympics that were canceled due to the COVID-19 pandemic, the pavilion currently provides spaces for various business and cultural events and will stay in Tokyo until the end of 2021.
In Metsä Pavilion, wood has been used as efficiently as possible. The purpose was to create a simple yet elegant building by using prefabricated wooden elements. The structure of the building highlights the importance of forests in Finnish culture and the Finnish know-how of using wood in construction. The pavilion is made entirely of Metsä Wood's Kerto Laminated Veneer Lumber elements. The main goals of the design process were to develop the process of prefabrication as well as to promote the use of wood also in multistorey construction.
The pavilion was built in Finland and assembled in Japan in less than two weeks. The production process of the materials and elements, like the quick and easy on-site assembly, generates very little waste. Once the building is no longer needed in its current location, it can be dismantled, shipped to a new destination, and rebuilt there. The elements fit into 17 sea containers which make the pavilion very easily movable and reusable.
The fact that Tokyo has a dense urban structure with tiny plots and narrow streets needed to be taken into consideration during the design process. The fact that Japan is a seismic country and the Tokyo area being extremely earthquake-prone affected the design solutions as well. The original idea was that the pavilion would be on ground level but due to the small size of the plot, the pavilion was designed partly on the top of the existing concrete garage building. With minor modifications, however, the pavilion is easily placed also on flat ground.
Sustainability was one of the main aspects of the design process. Certified wood is an environmentally friendly material, and the prefabrication is effective and ecological as the waste is minimized. Wood constructions provide also excellent opportunities for flexible modifications during the whole life cycle of the building.
The Metsä pavilion is a straightforward and uncomplicated industrial product that can be transformed fast and cost-efficiently into different constructions for many diverse purposes. The building is approachable and authentic while being stylish and of high quality at the same time. It is a fine example of an elegant building created from prefabricated wooden elements. Moreover, the pavilion, regardless of its geographical location, is in accordance with the goal of the Finnish Ministry of the Environment that in five years, almost half of the built public buildings will be made of wood.
Project gallery
Project location
Address:3-chōme-5-39 Minamiazabu, Minato City, Tokyo 106-8561, Japan
客服
消息
收藏
下载
最近




















