查看完整案例

收藏

下载

翻译
Architects:BDR Architekci
Area:450m²
Year:2020
Photographs:Konrad Basan,Marcin Czechowicz
Manufacturers:FAKRO,Franz Nüsing,G-U Group,PIUDESIGN,PSK Beton,Witraz okna
Landscape Architects:la.wa architektura krajobrazu
HVAC consultants:MJ Projekt
Electrical engineering:MLJ Projekt
Architecture:Konrad Basan, Paweł Dadok, Maria Roj, Michał Rogowski
City:Ostrow Mazowiecka
Country:Poland
Text description provided by the architects. The building is the first museum dedicated to the famous World War II hero Witold Pilecki and his family. It is one of the last places to commemorate him, as his family home near Lida was demolished after the war, and the traces of its surroundings were obliterated. The design is a result of balancing three elements: a historic house, a new pavilion, and a garden.
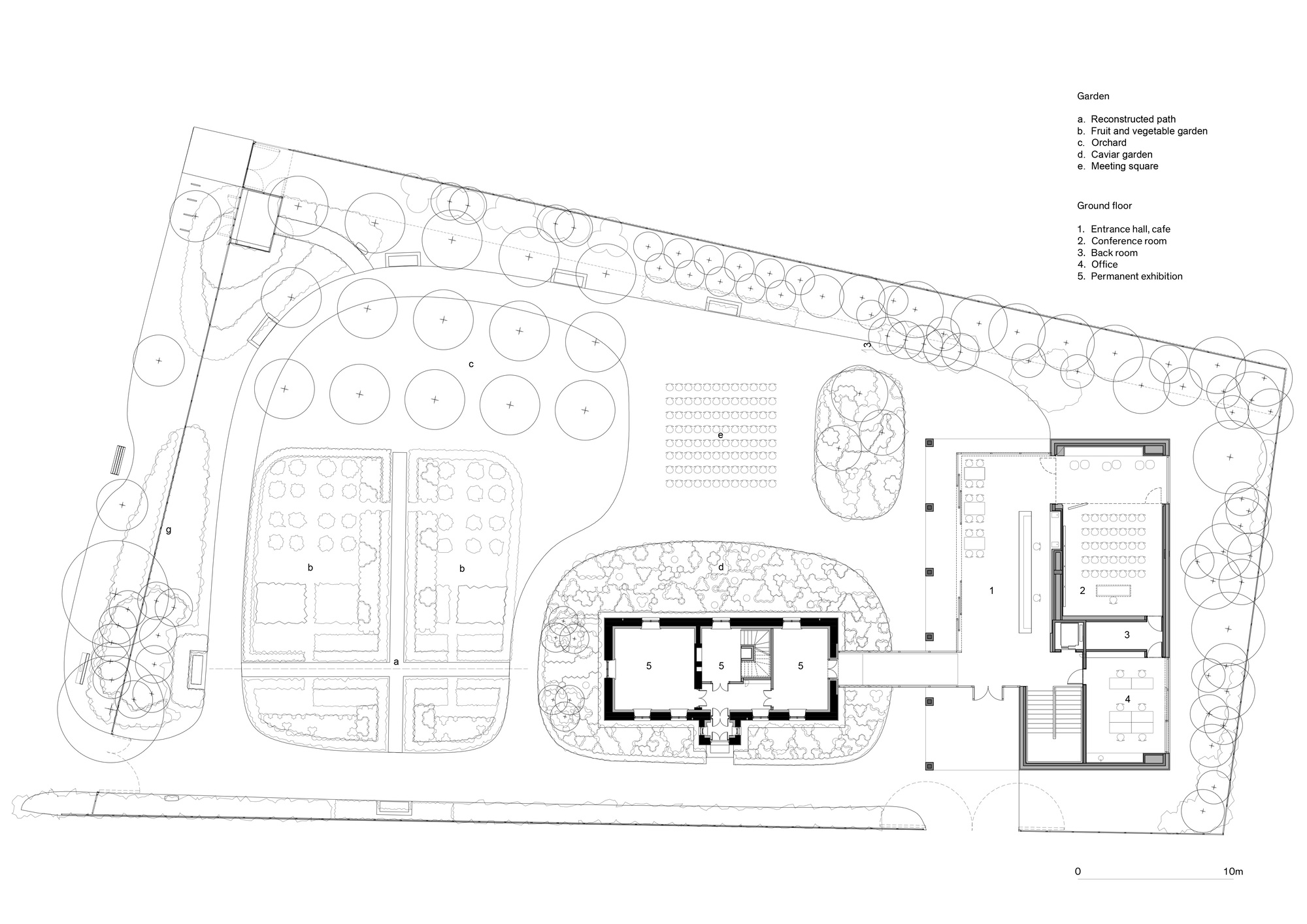
House. Pilecki's wife's family house, visited by our protagonist many times, is the central element of the museum. A thorough restoration and reconstruction brought back the simple and elegant form of the house. Based on archival photos, all details, cornices, and window frames have also been reconstructed. So as not to interfere with the external structure, wall insulation was added from the inside. The cellars were deepened and the attic was rebuilt. The entire house was dedicated to the permanent exhibition.
Pavilion. The new building accentuates the garden by placing the house in the foreground and being separated from it with a long glass connector. The pavilion’s form refers to the basic architectural elements such as material, rhythm, and the interpenetration of interior and exterior spaces. On the southern side, it is surrounded by a columned arcade. An entrance hall on the ground floor has a cafe open to the garden, a meeting room, and an office. Spacious stairs connect the story with the underground part, which hosts a technical area with a cloakroom and the first exhibition room, combined with the exhibition in the house basement. Introducing the new structure in a harmonious way was the main challenge of the design, achieved thanks to the glass connector and adjusting the pavilion height to the house cornice. The new building combines elements of monumental architecture with the advantages of a light park pavilion. It is also evident in the selected materials: concrete combined with oak wood.
Garden. Merging the historical house with the new pavilion required creating an environment combining features of a homely, small-town ornamental garden with forms corresponding to modern architecture. The regulated garden located in the front part resembles the kitchen and decorative garden preserved only in archival photos. It respects the division of crops into flowers, ornamental plants, and the kitchen part with fruit and vegetables.
The remaining space, framed by the garden facade of the house and the pavilion, forms an intimate interior surrounded by greenery, places to sit, and a centrally located square for outdoor events. We put special emphasis on ensuring that future museum events are accompanied by an atmosphere of harmony and openness. We also suggested going outside the plot and connected one of the paths from the adjacent park with the pavilion's door.
We wanted the garden, the renovated house, and the pavilion with its bright interiors to make a positive impression, devoid of a heavy museum narrative. It seems that thanks to the proposed solutions the difficult history of the Pilecki family presented at the exhibition will reverberate even stronger.
Project gallery
Project location
Address:Ostrow Mazowiecka, Poland
客服
消息
收藏
下载
最近






























