查看完整案例

收藏

下载

翻译
Architects:a9architects
Area:13000m²
Year:2021
Photographs:ARCH-EXIST
Lead Architects:Yuejiu Li
Design Team:Ale, Hao Zhu, Xinyi Shen
The Client:Yingjing County Culture&Tourism Development Co. Ltd
Structure Design:Architectural Design Institute of Chongqing University
Interior Design:Architectural Design Institute of Chongqing University
City:Ya'an
Country:China
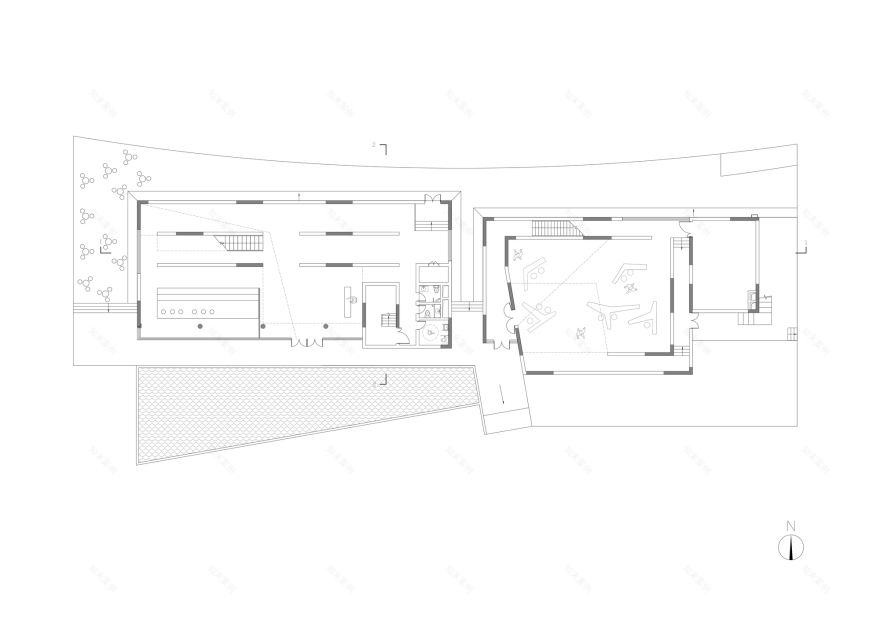
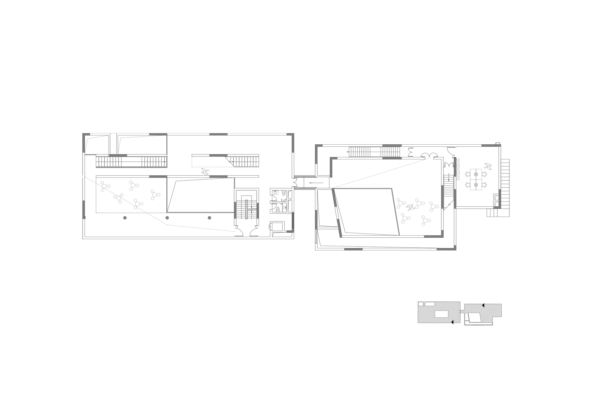
Text description provided by the architects. The black sandware art inherited for 2000 years, the art and wisdom of fire and earth were passed down in Yingjing. Yingjing County Silk Road Shadu Complex Project is a strategic measure to build a "National Eco-cultural Tourism Integration Development Pilot Zone and a National Comprehensive Tourism Demonstration Zone" in Ya'an City under the background of this new era. Surrounding the core resources of black sand intangible cultural heritage, the design built a unique cultural tourism brand in the region.
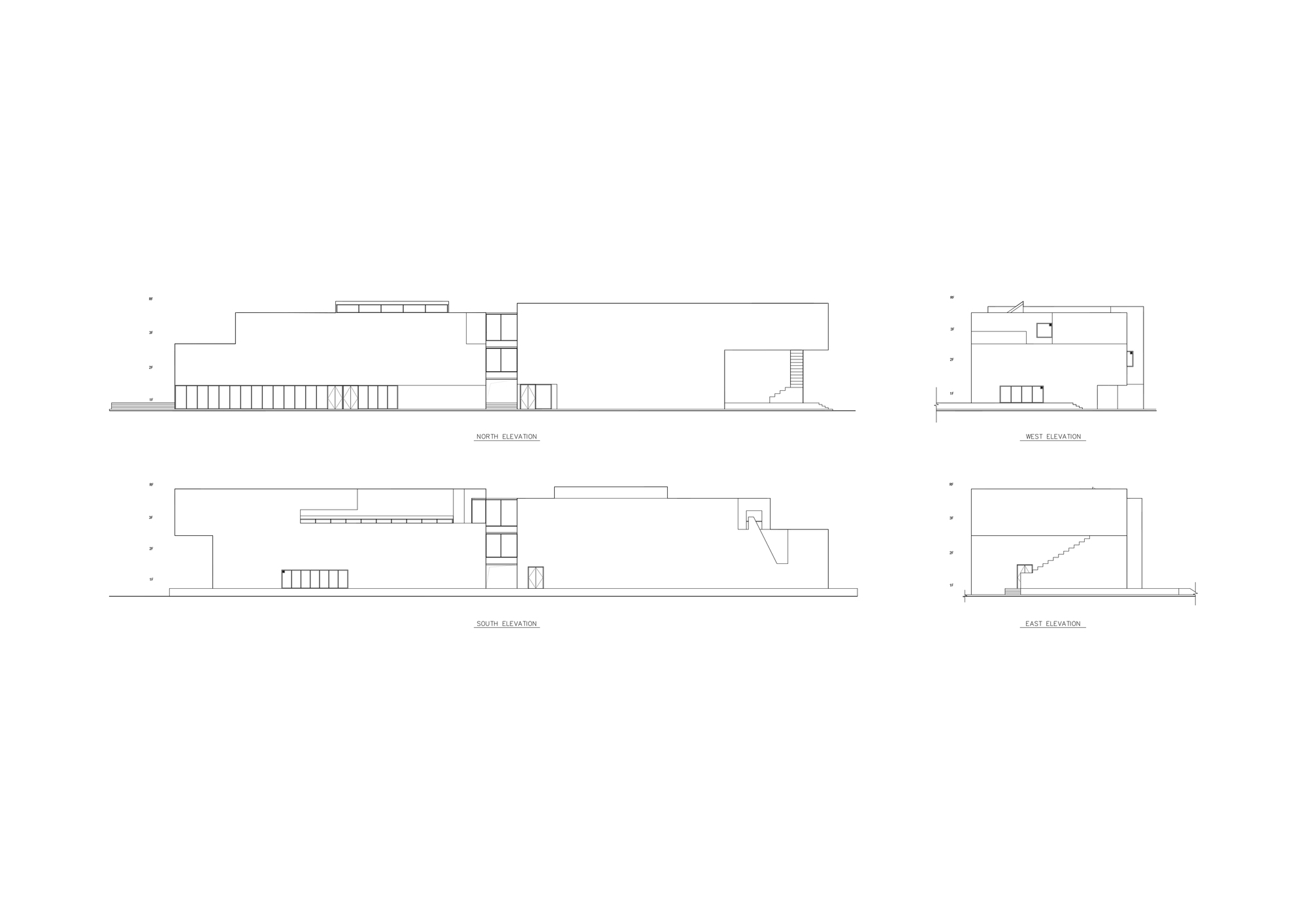
The overall design of the Sand Museum takes full advantage of Yingjing’s regional culture and landscape and ecological background, and is conceived with a concept that stands out from the entire ancient building area. The buildings use a large number of solid walls as the facade design to highlight the thickness of sandware. The sense of heaviness makes the main body of sandware the only focal point of cultural dialogue, and the building grows in a way that adapts to the terrain.
The materials of the entire plaza are made of local stone and pebbles. The open space becomes a communication stage for people to discuss sandware culture and study sandware craftsmanship. In the dialogue between indoor and outdoor spaces, the local waterscape of the site becomes a dialogue medium between the building and the earth. The building echoes each other through a naturally unfolding wall and the circular sacrificial kiln banquet building under the wall, creating a more shocking visual experience and space perception.
At the same time, using the method of framed scene composition, on the visual scale of pedestrians, the visual space is expanded to the distant landscape on a large scale, like an expanding drawing scroll. On the other side, facing the distant landscape, the outer skin of the grid and the large-area floor-to-ceiling windows are used to form a virtual and solid effect that is surrounded by mountains and rivers in the overall perception.
Project gallery
Project location
Address:Yingjing County, Ya'an, Sichuan, China
客服
消息
收藏
下载
最近

































































