查看完整案例

收藏

下载

翻译
Architects:IAPA PTY. LTD.
Area:2875m²
Year:2020
Photographs:TAN XIAO-STUDIO TEN
Manufacturers:Diaozhu industrial
Interior design:Yu Qiang & Parthers
City:Xi'an
Country:China
Text description provided by the architects. The Wangzhou and OCAT Xi’an Pavilion is located in Fengdong New District, Xi’an, Shaanxi Province. The project is surrounded by tourist attractions and natural sites, including Happy Valley, The Book of Songs, Fenghe Wetland Park, Fengdong Agricultural Expo Park, Kunming Pool, and the large-scale scenic spot on Gaojing Site. These locations together form a regional cultural tourism group.
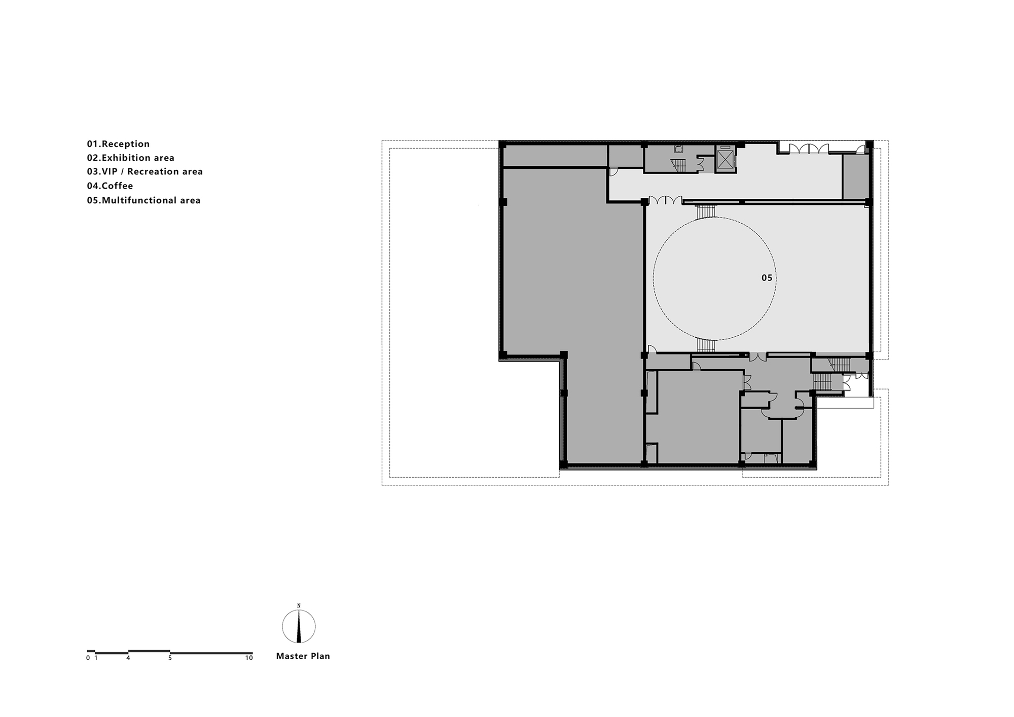
The main function of the Wangzhou and OCAT Xi’an Pavilion is to be a cultural exhibition center. The hall covers an area of 1632.5 square metres, 62.5 metres long from east to west, 42.5 metres wide from north to south, with a total construction area of 2875 square metres. The overall building height is 13.25 metres. The first floor is a multi-functional lecture hall and the second floor is an exhibition hall to display OCAT contemporary art.
In our design concept, Wangzhou and OCAT Xi’an Pavilion is not only a building that carries the history and culture of "Zhou" dynasty, but also a building that displays contemporary art and culture. The form of the building is square in shape, and it is a modern building with a concise facade. Through the interpretation of the Zhou Dynasty culture, we designed a building that sits on a sloped grassy hill which represents the concept of a historical monument or stele, which signifies the history and culture of the “Zhou" people.
The design has three access entrances, the main entrance is located at west. Approaching the building from the west, a set of gentle steps leads visitors to the main entrance, which consists of a gently upward sloping courtyard. The secondary entrance is north facing, which connects the inner commercial street to the multi-functional hall. The entrance towards the east is for logistics. The design connects and organises space through three natural courtyards. The exhibition hall and the courtyard permeate each other, blurring the spatial boundary between indoors and outdoors. Space provides an amazing experience for the visitor whether it’s for a scenic stroll or a moment of relaxation and meditation.
While the building remains still, the movement of the natural light and shadows expresses the character and dynamism of the building. The material choice of plain white Italian travertine, black slate, and hi-light glass emphasise how light affects the space and shape of the building. The large facade is not just a functional segmentation interface but carries with it an expression of architectural language. The minimalist facade that catches the light, reflects natural landscaping, and provides a canvas upon which natural beauty can express itself.
The design of the internal layout is open and flexible. It not only provides the capacity for hosting varies exhibitions, but also gives visitors a unique viewing experience. The Wangzhou and OCAT Xi’an Pavilion captures the cultural imprints of the Zhou dynasty. The splendid culture of Zhou is embedded within in the architectural language of lines, shades, and reflections, representing once again an ‘imprint’ of the splendid culture of the Zhou dynasty.
Project gallery
Project location
Address:Xi'an, Shaanxi, China
客服
消息
收藏
下载
最近

























