查看完整案例

收藏

下载

翻译
Architects:ES Arquitetura
Area:122m²
Year:2018
Lead Architecttects:Diego Justo do Espírito Santo
Design Team:Diego Justo do Espírito Santo, Valério Montes D'oca, Rodrigo Estrella
Clients:Sérgio Dagostin
Engineering:EZA Engenharia
Landscape:ES Arquitetura
City:Criciuma
Country:Brazil
Text description provided by the architects. The Dagostin Ballroom was designed to be a space for leisure and family gatherings attached to the residence.
The project is developed in a steel structure and with the reuse of materials, the new architecture connects visually with the residence, forming a space proposal designed according to the visual perspectives and bringing comfort and quality through ventilation and natural lighting strategies that guide the main concepts of the office.
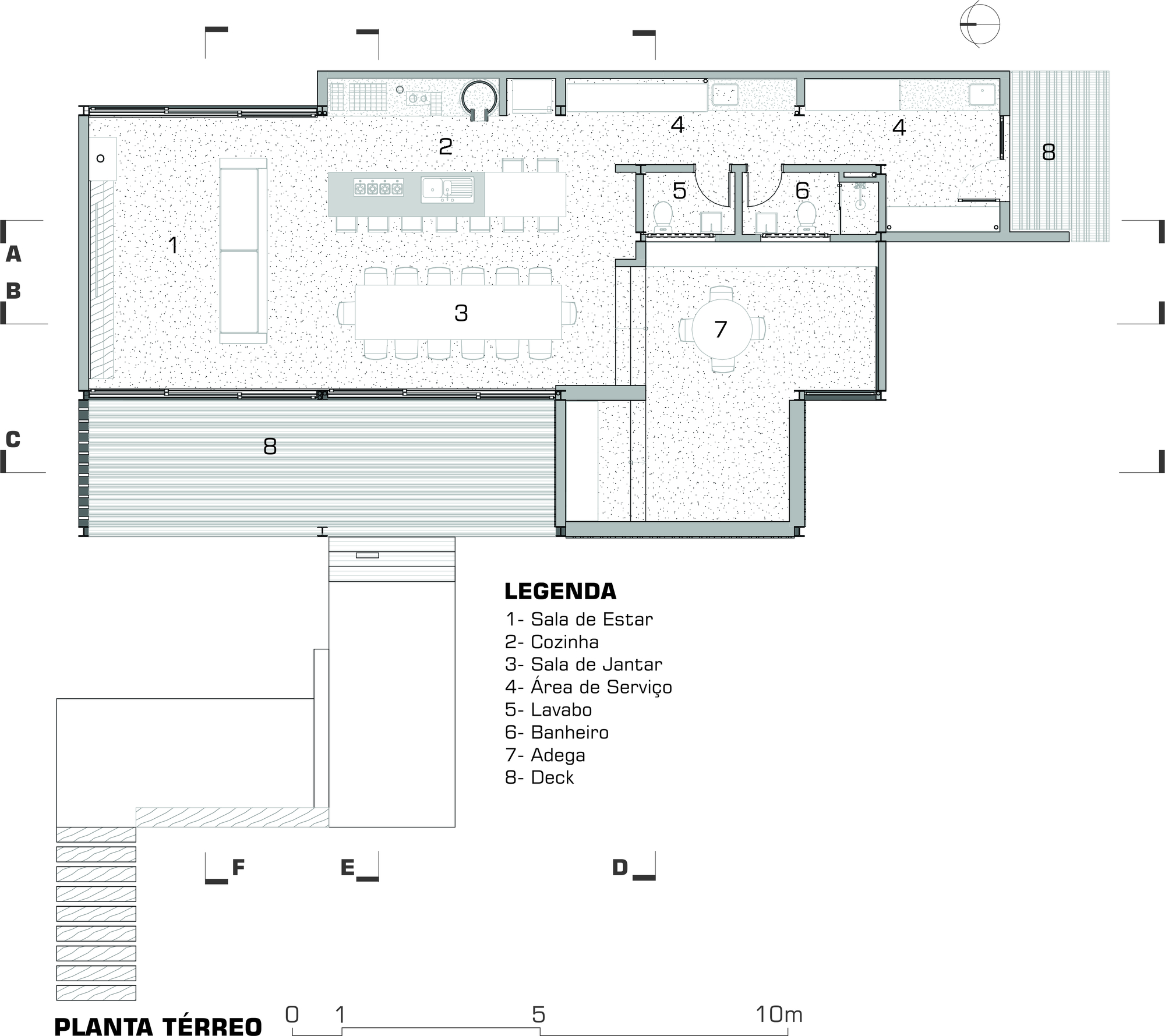
The main rooms are the living room, the kitchen, and the dining room with a capacity for 14 people sitting comfortably at the dining table, in addition to 9 seats on the service bench in front of the barbecue and the pizza oven. A service area, a bathroom, and a toilet support the services, a wine cellar, and a deck complete the atmosphere of tranquility and leisure of the proposal. The contrast between exposed bricks, wood cladding, exposed concrete, and metallic structure mark the composition of the reuse of materials and the references to the residence.
The orientation of the openings and glass panels were designed to favor cross ventilation and the visual integration of vegetation in the environment, the deck provides solar protection and forms a veranda with vertical gardens to receive guests.
Project gallery
Project location
Address:Criciuma, SC, Brazil
客服
消息
收藏
下载
最近






















