查看完整案例

收藏

下载

翻译
Architects:Uchida Shanghai
Area:850m²
Year:2020
Photographs:luz images
Construction:Shanghai Yongsheng Decoration & Engineering Limited
Architect In Charge:Mitsuhiro Shoji
Design Team:Masato Kaneko, Bin Jin, Luyu Shi
Client:Kingdom Holdings Limited
City:Jiaxing
Country:China
Text description provided by the architects. In zhejiang, china,mitsuhiro shoji of uchida shanghai has completed the renovation of this 1980s linen factory. The client – a linen thread producer – had an attachment to the former factory and therefore enlisted the help of shoji to transform the building into a contemporary gallery that exhibits the life of linen.
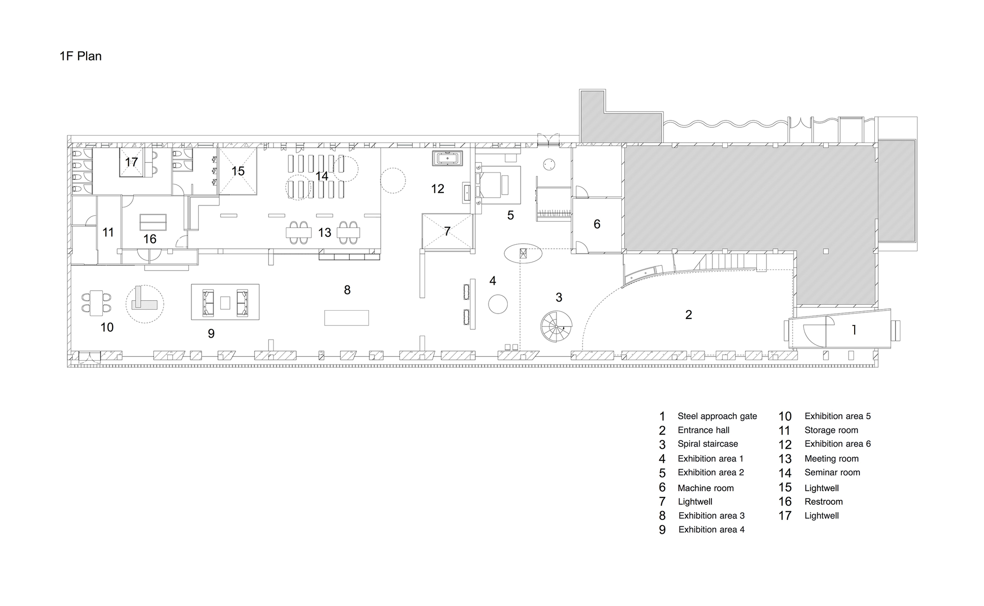
The main design concept of the project uses the change of light to express the passage of time. To create an architecture that focuses on spatial experiences,mitsuhiro shoji utilizes a limited material palette of concrete, iron, glass, bamboo and old tiles.
The south elevation has a double-skin façade with random openings and louvers made of compressed bamboo.depending on the time of day, a play of light and shadow subtly changes, creating a variety of spatial effects in the interior space throughout the day.
The roof is designed with four rooflights and three light gardens. This is an important aspect of the design as the openings help to show the changes in light. The top light is a cylindrical structure with a deep cross-sectional plan that provides a mysterious light inside through reflection, and the light garden emphasizes depth through the reflection of the surroundings by glass.
He purpose of the floor is to induce a change in consciousness within the same space by switching materials. The light from the courtyard will serve to integrate the layers of materials. The primary concept of the space is to use primitive materials to control light and to allow the visitor to experience the subtle changes in everyday life.
Project gallery
Project location
Address:HengGeng Town, HaiYan County, Zhejiang Province, China
客服
消息
收藏
下载
最近









































