查看完整案例

收藏

下载

翻译
Architects:Plan Architect
Area:5900m²
Year:2015
Photographs:Panoramic Studio
Manufacturers:Danpal,Bluescope,S&P NAKORNLUANG,TOA,WILLY
Architect In Charge:Plan Architect
Design Team:Sinn Phonghanyudh Wara Jithpratugs Anak Boonprasartsuk Chayothorn Songtirapunya, Sinn Phonghanyudh, Wara Jithpratugs, Anak Boonprasartsuk, Chayothorn Songtirapunya
Country:Thailand
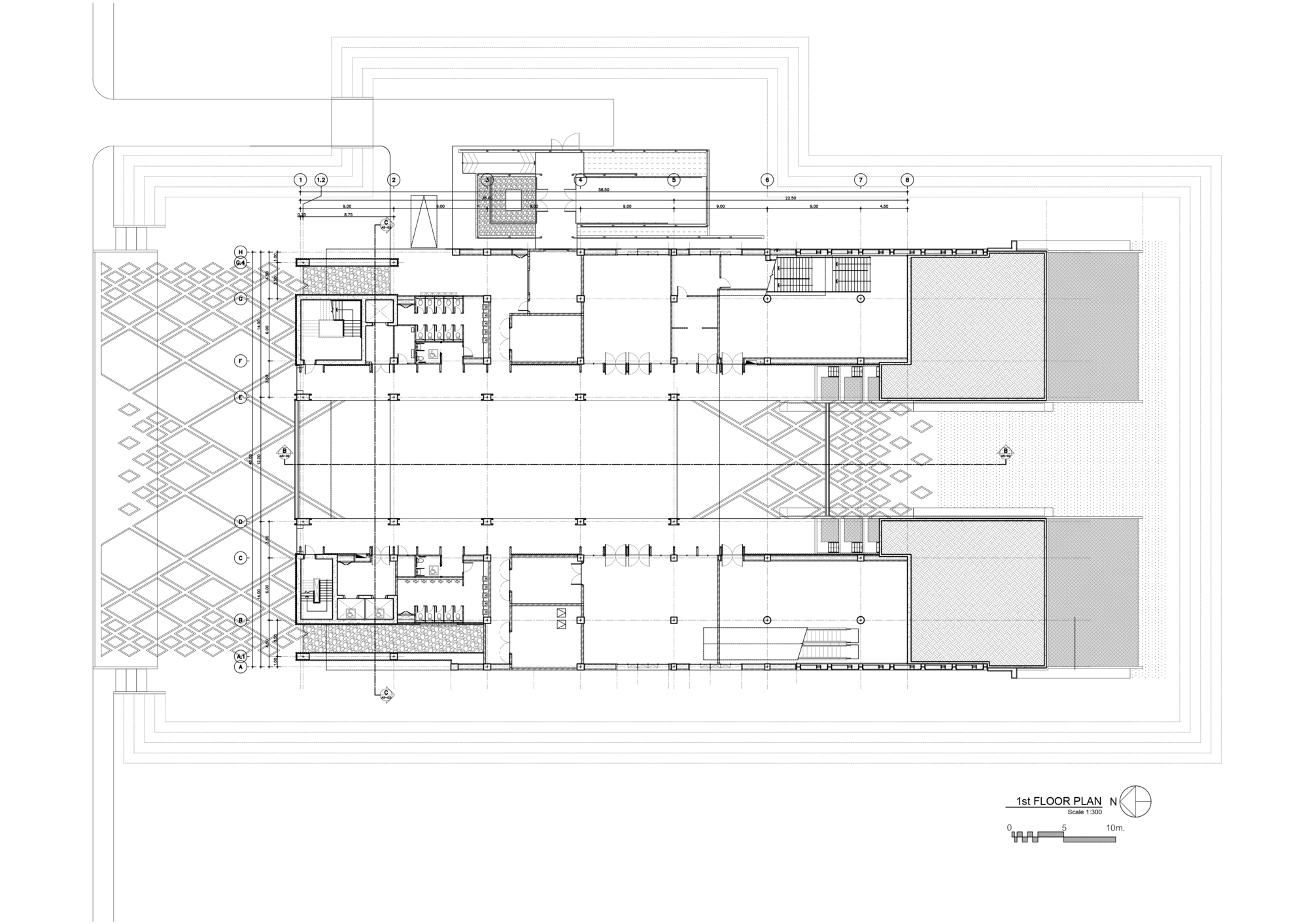
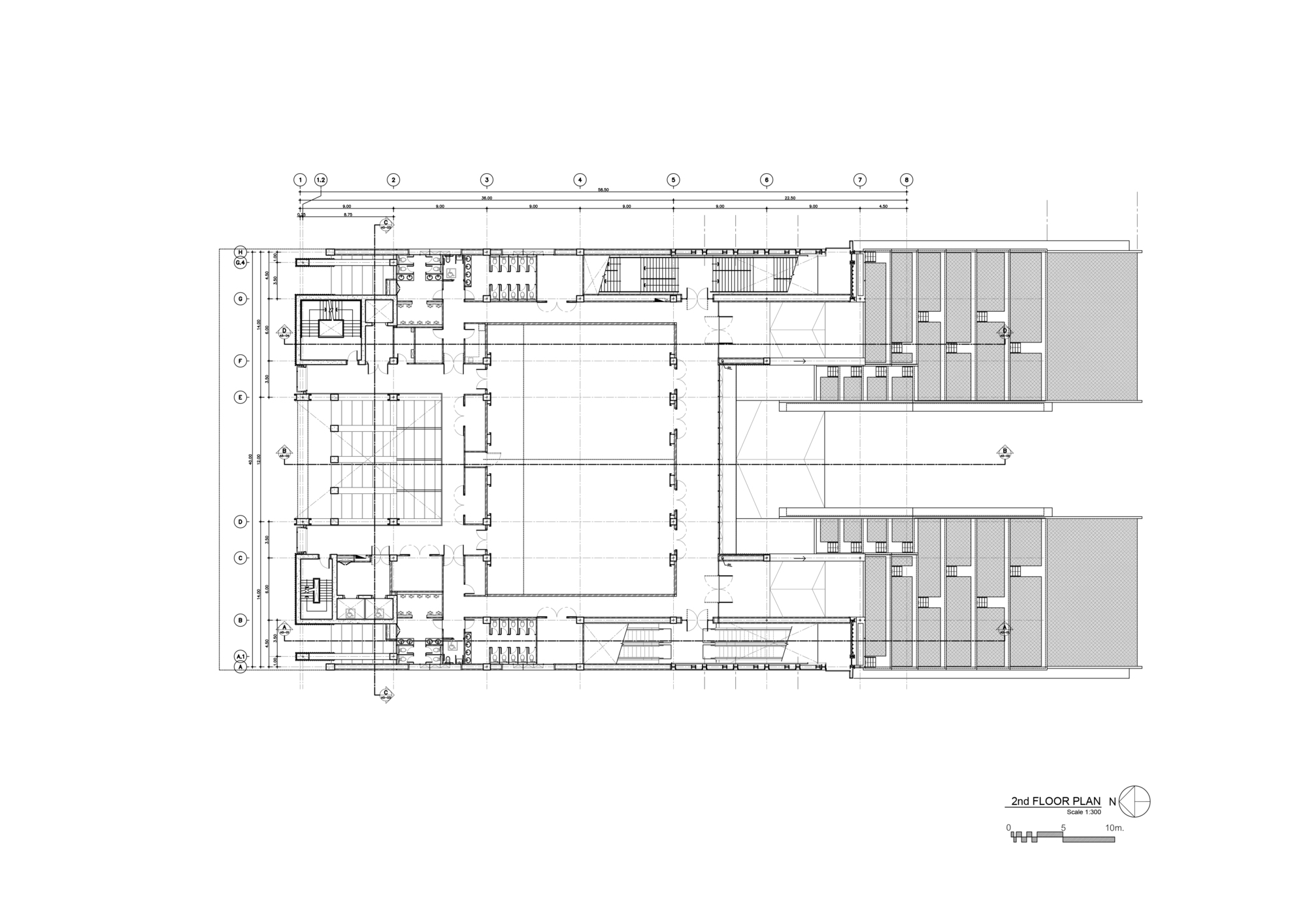
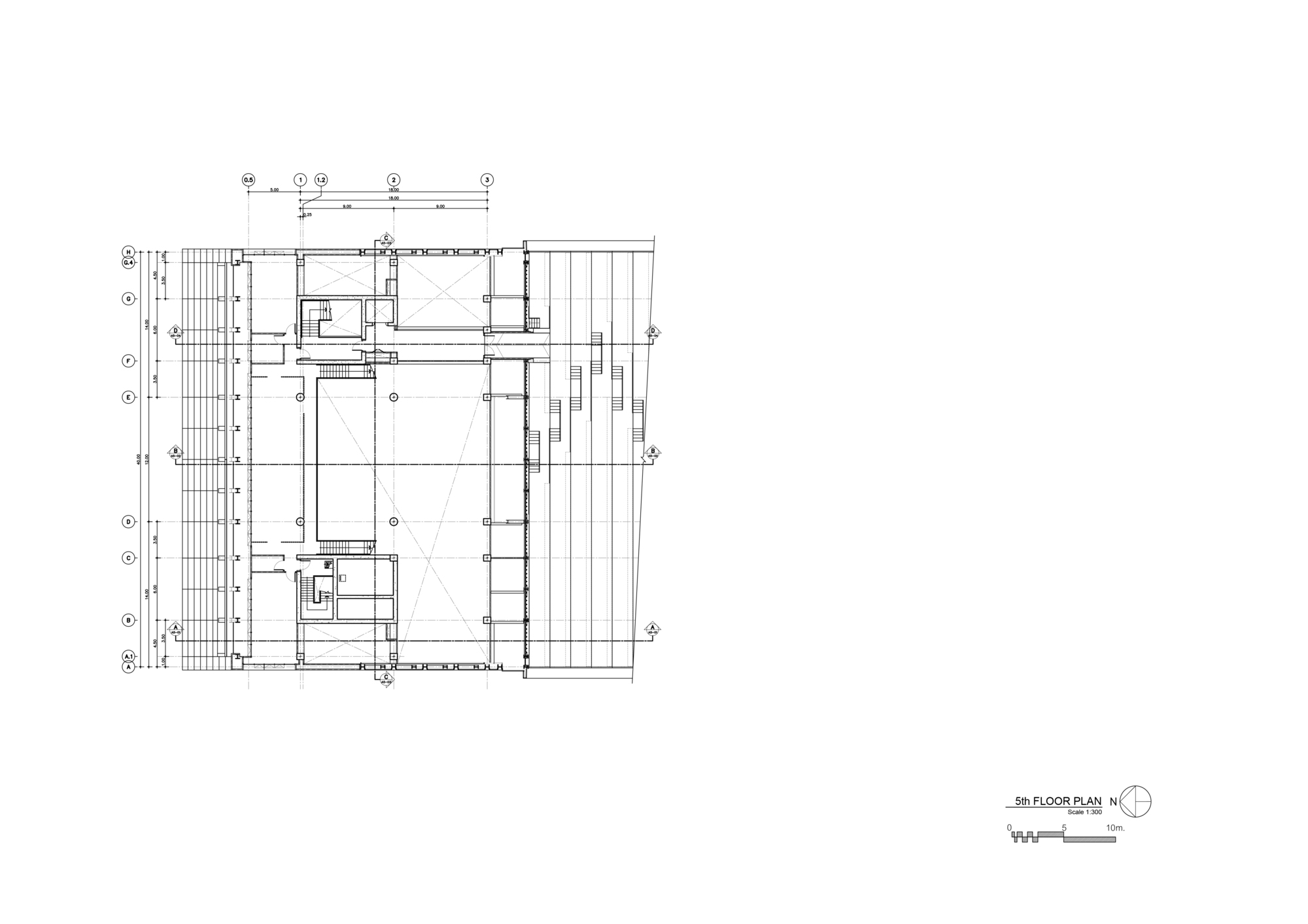
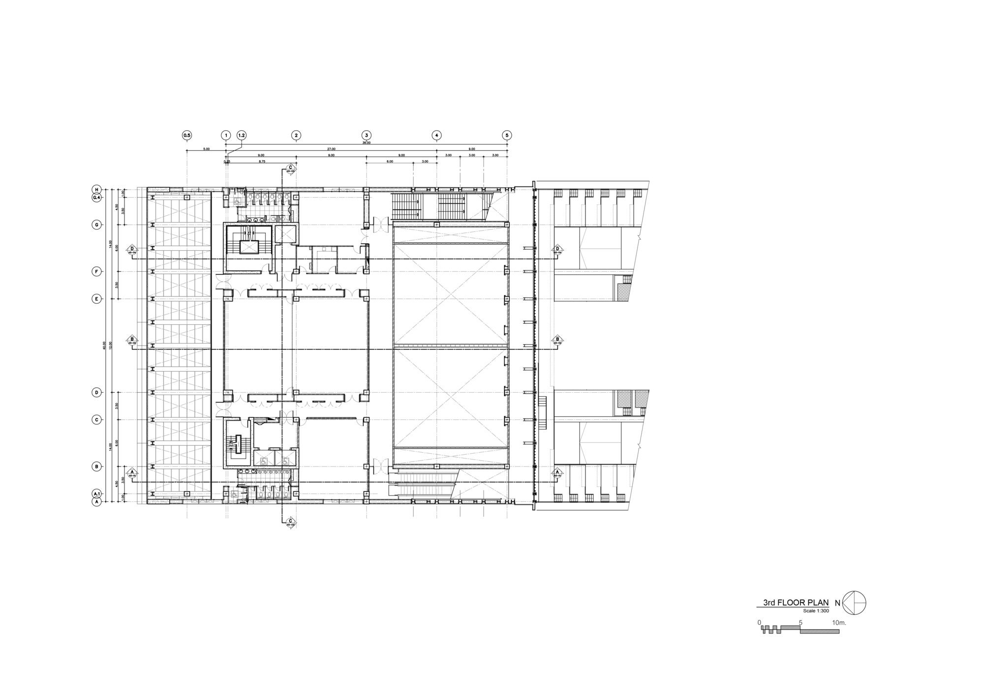
Text description provided by the architects. The Golden Jubilee Museum of Agriculture is well-known as a place that propagate knowledge about all kind of agriculture in Thailand. This new office is not just a normal office building, it also served as a welcoming space for all visitors who come to visit the museum.
Visitors will be placed here and will be introduced to the key objective of the institution before entering the main exhibition or any other parts. The function inside this 5,900 sqm. building includes a variety size of seminar room for a small group of 10 people up to a big group of 700 people. It also includes an exhibition space, museum shop, office, etc.
“Rise from the Earth” is the main concept of this museum office, the architecture itself rises up from the ground and the ground unified with the building. Trees are placed over the rooftop to link with landscape, to become one.
Project gallery
Project location
Address:Thanyaburi District, Pathum Thani, Thailand
客服
消息
收藏
下载
最近













































