查看完整案例

收藏

下载

翻译
Architects:Architecture & Engineers of Southeast University
Area:51236m²
Year:2017
Photographs:Bowen Hou
Architecture Design:Bing Xia, Jin Duan, Wei Yuan, Fengfeng Xue, Peng Chen, Qi Zhang, Yun Cai, Jieying Liu
Project Principals:Bing Xia, Wei Yuan
Structure Design:Weiwei Tang
Water Supply And Drainage:Haitao He, Jun Liu
Heavy Current Engineering:Jianqiu Qu
HVAC:Huiming Ding, Ling Wang
Intelligent Control And Electrical Engineering:Cheng Zhang, Sheng Zang
City:Fuyang
Country:China
Project backgroundFuyang Planning Exhibition Hall (including municipal archives, urban construction archives, land archives and real estate archives) is located in the center of Fuyang Southern New Area, with a total land area of 5.21 hectares (including 2.98 hectares for building construction and 2.23 hectares for public green space).
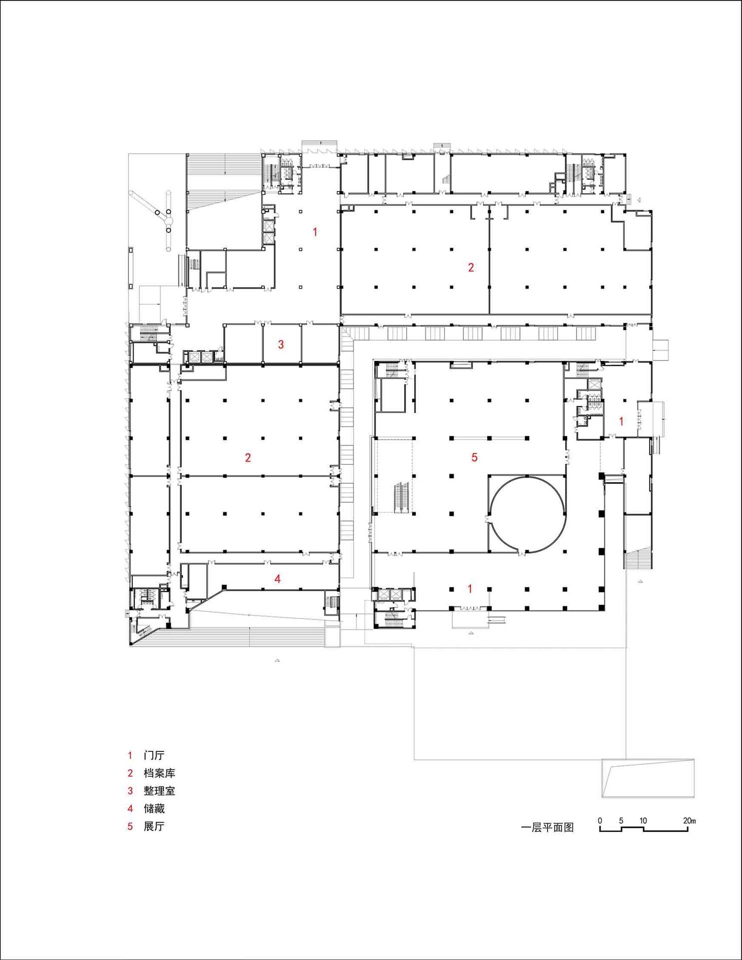
Design strategy Addition and Subtraction:The project involves two functional types: exhibition and education of planning achievements, and storage and reference of archives. The city planning exhibition hall, city archives, urban construction archives, land archives and real estate archives are five independent functional subjects, which are typical exhibition, service and office complex buildings. As a volume control strategy, the combined operation of addition and subtraction ensures the independence of each functional subject and at the same time, keeps the simplicity and integrity of the form.
Modular Design: The total height of the project is 23m, including 5 floors above the ground in the archive service area with 4600mm height, and 4 floors above the ground in the planning exhibition area with two heights of 4600mm and 6100mm. The two zones are connected on the 2nd and 4th floor respectively. 8700mm by 8700mm is selected as the standard column grid for the plan, and 1175mm and 1000mm are projected on the facade as modules, which helps the team to flexibly decide the appropriate ratio of windows according to the internal function.
Openness: Benefit from a series of public space, the project attracts people from all directions of the city, which shows the greatest inclusiveness and multi-dimensional openness. The design realizes the three-dimensional layout of the entrances and exits for different functional zones by raising the base level of the courtyard, and creates a rich sense of narration and a solemn sense of ceremony by the great steps.
Green Technology: The layout of the building draws on the courtyard concept from Chinese traditional style, and the project attaches great importance to the adjustment of local microclimate and the utilization of natural ventilation and lighting. The application of "passive" green building design concept in contemporary public building design is fully expressed by the control of volume, floor height, and the ratio of windows, as well as the triangular vertical metal sunshade system.
Project gallery
Project location
Address:Fuyang, Anhui, China
客服
消息
收藏
下载
最近









































