查看完整案例

收藏

下载

翻译
Architects:Rocco Design Architects Associates
Area:12900m²
Year:2019
Photographs:Arch Exist
Structural Engineer:Hua Yi Design Consultants Ltd.
Main Contractor:China Construction Second Engineering Bureau Ltd.
Mechanical & Electrical Consultant:Hua Yi Design Consultants Ltd.
Design Team:Rocco Yim, Derrick Tsang, William Tam, Alex Tang, William Lee, Yang Shi Pei, Thomas Cheng, Hoey Yip, Caitlin Xie, Jinghua Cai, Zhanling Huang, Leo Zhou, Huansheng Xian, Karen Lam
M & E Consultant:Hua Yi Design Consultants Ltd.
Developer:Shenzhen Manjinghua Investment Group
City:Shenzhen
Country:China
Text description provided by the architects. iADC Design Museum is situated at the heart of the Shapu Art District in Baoan, Shenzhen. The art district took an experimental urban planning approach to utilize art and culture as the main driver of the development of the city. The museum positions itself as one of the major cultural establishments in attempt to weave layers of identities into a new man-made district.
Starting from a pure embryonic box structure, the massing of the museum is transformed via simple folding of the façade planes to break down the rigidity and confinement of its platonic state. The folding creates various articulations of the façade to respond to different street conditions, giving out a vibrant and free-spirited ambience to the building.
The intervention is a method of creating innovative yet pragmatic features, such as shading and canopy from its primitive form. On a more intellectual level, it is also an expression of openness that signifies an unleashing of creative energy from its status quo – an aspiration that marks the establishment of the new urban planning methodology.
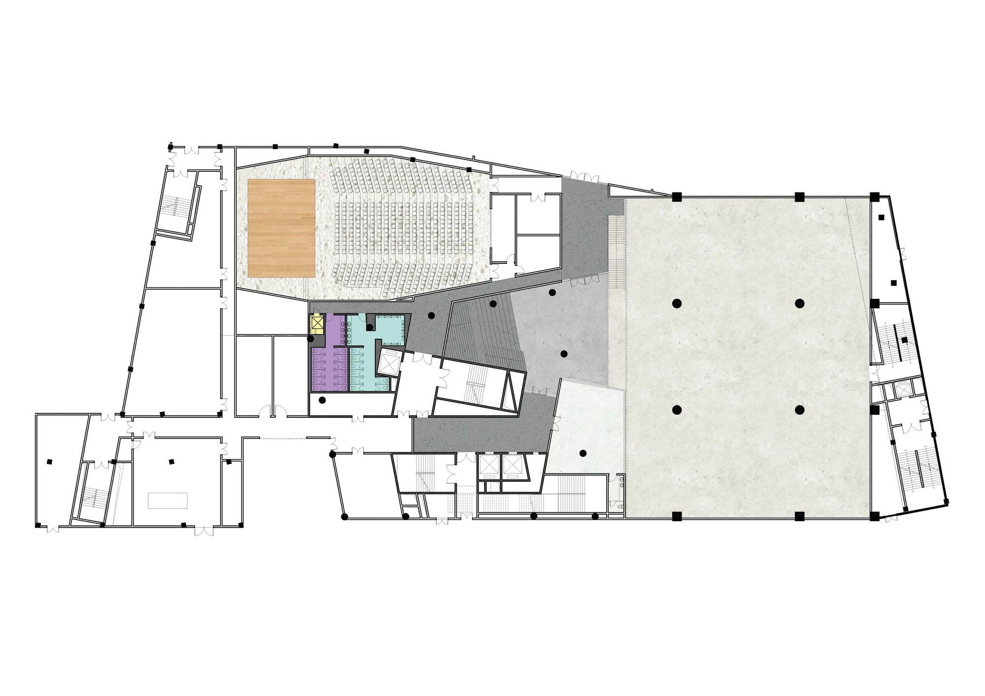
Inside the museum, the galleries are spatially arranged around a central courtyard which admits daylight into the space. The folded façade further enhances the experience by filtering natural light in between the gaps; at the same time reduces the need for artificial lighting and minimizes energy consumption.
The floating volume also creates a series of shaded urban space- a ceremonial staircase that leads up to the museum reception, a sunken courtyard connecting the auditorium and exhibition hall at the basement, and a plaza that connects to the Art town Main street with a reflective pool, to enhance the thermal comfort under the subtropical climate of Shenzhen.
Project gallery
Project location
Address:Shapu, Bao’an District, Shenzhen, China
客服
消息
收藏
下载
最近









































