查看完整案例

收藏

下载

翻译
Architects:WallaceLiu
Area:7500m²
Year:2019
Photographs:Etienne Clement
Consultants:Chongqing Construction Engineering Industry Co., Ltd. AND Southwest Aluminium (Group) Co.Ltd.
Engineering:CMCU Engineering Co.Ltd
Clients:YuFu Group
Landscape:WallaceLiu
City:Chongqing
Country:China
Text description provided by the architects. Emerging design practice WallaceLiu has completed the Chongqing Industrial Museum, which has been created amongst the remaining structures of a former steel factory. The new 7,500 sqm museum is part of a larger redevelopment of the old factory site and was designed to recognise the national significance of the steelworks cultural, social and industrial history.
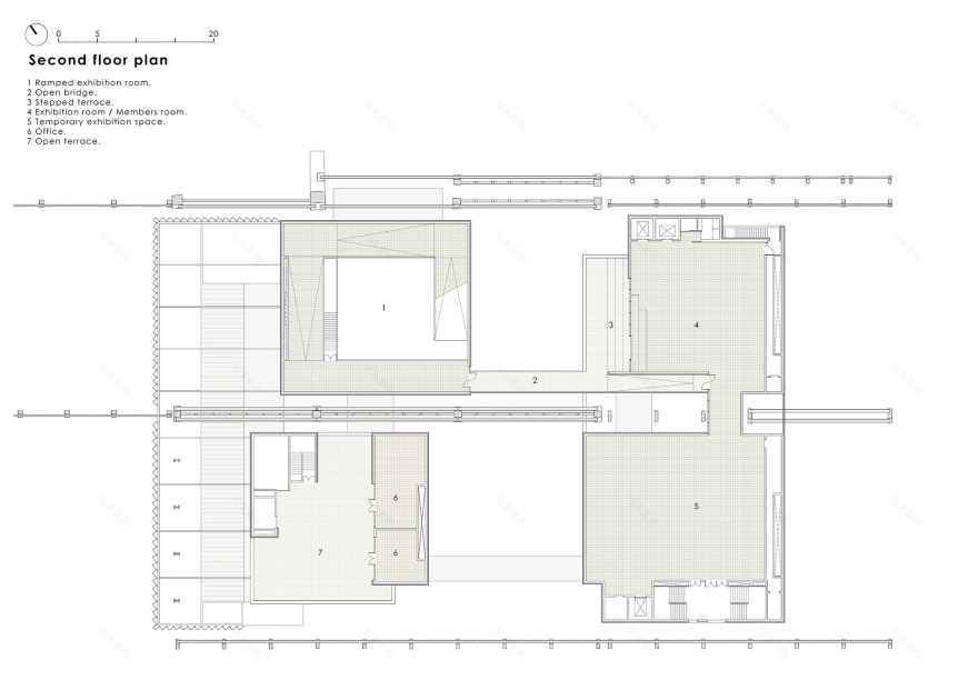
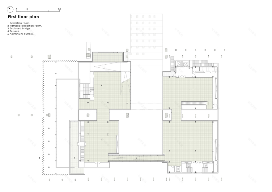
The new museum building is constructed from a lightweight steel frame structure which allowed building volumes to be inserted in between the old structures, celebrating both its past and a new public role. Inspired by the long, complex and layered views through the original factory site, WallaceLiu decided to lift the metal boxes that contain the enclosed exhibition spaces off the ground to create a complex, permeable and open ground-floor experience.
These raised volumes are linked by bridges at different levels and frame an open lower ground-floor hall. As visitors cross from one box to the other they are temporally removed from the museum environment and reconnected to the most important artefact, the old factory itself; through their proximity to old beams, columns and trusses and the views across the open lower ground floor hall.
The central hall has been created within the foundation pit that was once used to cool large pieces of steel and is entered through a series of concrete structures that would have once supported industrial machinery. This space will act as a place to gather, as well as hosting temporary events and exhibitions. The cantilevered exhibition volumes are most visible in the hall and they frame the long view through the museum.
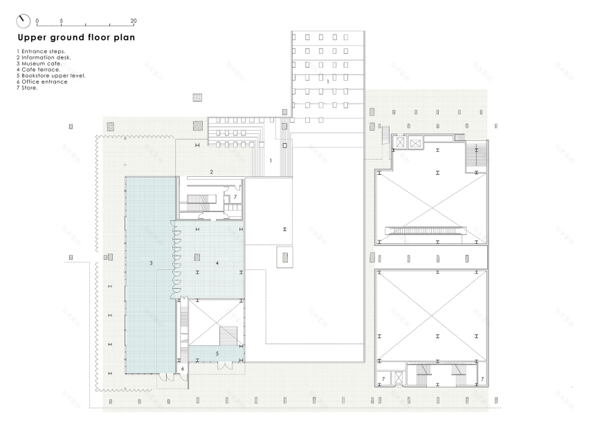
This large space is covered but not entirely enclosed to create a comfortable environment with minimal need for mechanical heating, cooling or ventilation. Cloakrooms, toilet facilities, bookshop, projection room, and the atrium hall of the museum exhibition are organized on both sides. At the front of the museum, the historic factory columns are now wrapped in a pleated metal curtain that hangs down from new trusses and raised off the floor,to create a layer of transitional space between interior and exterior.
The perforated, powder-coated aluminium panels become like a veil that shrouds the museum with a sharp serrated edge along the bottom. This lightness is distinctly contrasted with the heaviness of the original concrete columns. Sometimes the relationship between the new and the old is overlapped, abstractly intertwined and changes with different light in different hours of the day through the play of shadows cast by the curtain.
Behind the raised curtain is the museum cafe and restaurant that faces a new public square. Grand sliding doors make large openings possible to draw people in. The intention was to create a fluid, open and airy edge along this facade to balance the scale and grandeur of its image when viewed from afar. Semi-enclosed, it is part of both landscape and architecture.
By working with adaptive re-use the design is about rearranging and reframing what is there, accentuating the visual and spatial experience to purposefully make it more dramatic and more complex. Breaking down the exhibition journey into a series of spaces that travel through the existing structures and around the open public foundation hall invites visitors to explore and observe the existing features whilst completing their composed exhibition narrative.
Project gallery
Project location
Address:Chongqing, China
客服
消息
收藏
下载
最近










































