查看完整案例

收藏

下载

翻译
建筑师:InnerMongolia Grand Architectural Design Co.Ltd.
Area:8481m²
Year:2013
Photographer:Courtesy of Inner Mongolia University Of Technology
Lead Architect:Pengju Zhang
Project Team:Yanqing Liu, Zhixun Zhao, Yan Guo
City:Hohhot
Country:China
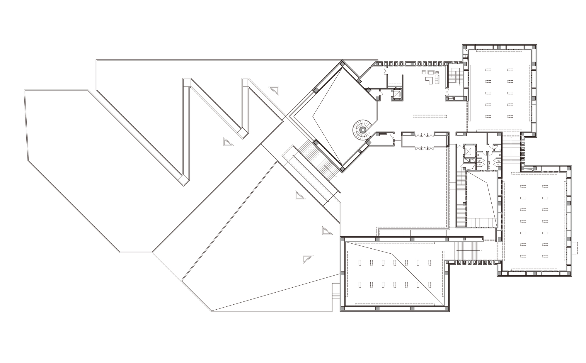
Text description provided by the architects. She is a loner by nature.Designed by zhang pengju, professor of Inner Mongolia university of technology, the Scentana art museum is located in the east of Ruyi river, a north-south river in the east of Hohhot. Its grey-black appearance and "peculiar" shape do not attract many busy pedestrians and urban guests. It seems that she has always existed out of sight, in an invisible ideal kingdom. Loneliness seems to have been her destiny since her birth. However, as a witness of the city, she is poised to look at the city, watching this restless, restless world.
Building into the environment with a relatively gentle attitude is a law that is different from the surrounding building type design. In terms of materials, it applies the composed and introverted gray-black granite, and sets the sloping lawn by covering the parking lot, so that the architectural form will not appear too abrupt and conspicuous in the view point along the road. After eliminating the uncertainty and tension brought by architecture to the city, the viewer's attention is focused on the positive space created by the external environment of the building.
Building outdoor entrance through as the viewer to streamline the advanced increased the enclosing walls, produce close move of the ramp and stair a purifying the space of the inner experience, which is different from the general from the first floor into the practice of building, the building in an implicit way experience through the elevation difference from the sprawling city streets through atmosphere rendering, the change of space to experience into a pure introspection. In addition, based on this peaceful way of unfolding, the "separation" between the building and the external environment makes the building have a meditative atmosphere of moving from place to place. At the same time, the experience of strong sense of ritual endows the viewer with inner motivation of moving from spirit to quietness.
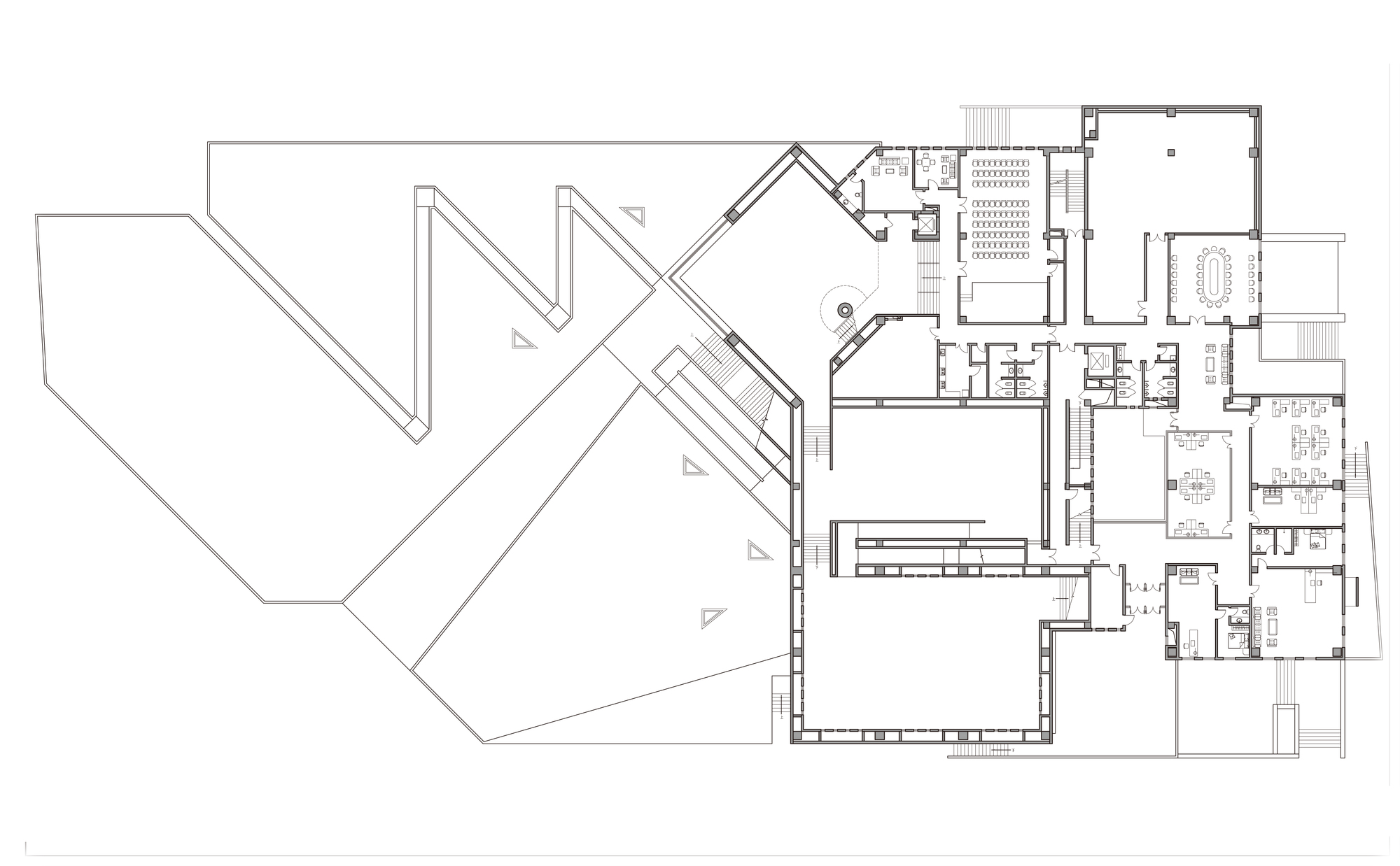
At the same time, the building's interior and exterior, the bright and the dark, the closed and the open contrast dramatically, causing the viewer on the emotion and experience changes, agreed with introspection to build on this change as a specific subject by reading makes object in a cognitive process, that is, from itself to the outside world, and then back to its own cycle process from the outside world. Experience is the basis of space design, while introspection is the result. The communication between the building and the viewer becomes an important factor influencing the viewer's understanding.
The architectural form and shape design, by refining the architectural function and purifying the external space of the building, strengthens the architectural scale visually and makes it more memorial and ritual in the external space different from the surrounding buildings. The pure form also provides material basis for purifying the viewer's thoughts.
The change of the spatial height difference of the exhibition hall makes the interior of the architectural space not only keep changing, but also ensure the internal identity of the space, so that the audience can achieve the combination of spirit and space while moving with the sequence of the exhibition hall. In the four exhibition halls connected with each other, the height difference is used to echo the change and express the change uniformly. At the same time, the inner feelings of the audience, along with the change in the height difference of the exhibition hall, return to the end of the four seasons hall in a way similar to rebirth. The construction of the space reaches its climax here.
On the processing of the courtyard, the western garden processing is different from the traditional courtyard outlined courtyard surrounded by walls and houses, surround a space of the form of two layer connects tall courtyard not architectural space redundancy, or just without the top part of the building, but will be introduced to the outer space building interior, maintain the echo of logic and order of the inside and outside of the building, and enriched the content construction, to enhance the cognition of the architectural space. The contrast between the unexpected, closed and open, impetuous and quiet space experience reveals the leisurely and comfortable mood of "thousands of miles of wind to send the autumn geese, which can intoxicate the tall buildings", which has the same effect as tao yuanming's unexpected joy when the lost people find the paradise.
Project gallery
Project location
Address:Hohhot, China
客服
消息
收藏
下载
最近




















