查看完整案例

收藏

下载

翻译
Architects:A N Design Studio
Area:233m²
Year:2023
Photographs:Pigments Imagery
Lead Architect:Anavadya
Project Architect:Rose M Joyce
Technical Assistant:Athira
City:Thiruvananthapuram
Country:India
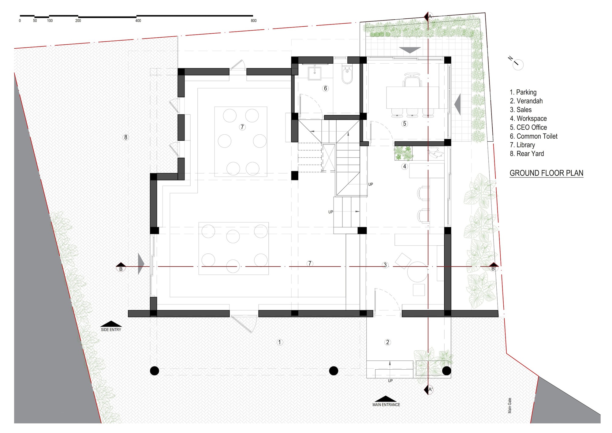
Text description provided by the architects. The Reading Room" is more than just a space; it's a profound celebration of words, language, and community. Designed as a versatile hub, it caters to all forms of communication and expression, from language development classes for children to community sessions and events for adults. It encompasses a well-curated library for those hungry for knowledge and a tranquil study space for those seeking solace in the world of words. Over 12,000 books are lovingly hosted within its walls, creating an atmosphere that thrives on collaboration, intellectual discussions, regular workshops, classes, and open mic sessions. It's a space that transcends age barriers, fostering a love for reading and nurturing creative thinking skills.
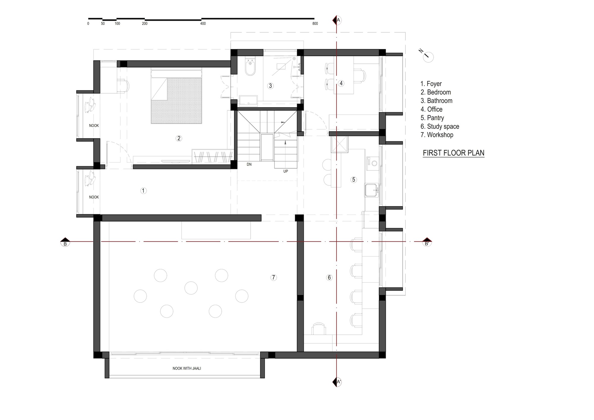
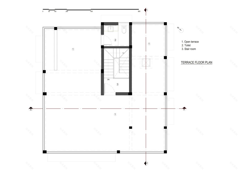
It's a G+1 mixed-use space that seamlessly blends the functions of a library, an event space, and a residence. The design embraced the raw beauty of rustic materials, employing exposed brickwork and raw concrete, which were thoughtfully complemented with accents of green and wood, infusing a touch of nature into the space. The project encompasses a variety of other spaces across its two levels - including sales areas, workstations, an office space, a common wash, a pantry, a study area, an event space, a bedroom with a bathroom, and an open terrace space.
The form and facade narrate a tale of two levels - The base, where the main library resides, is adorned with exposed brickwork, exuding warmth and a strong connection to nature. Above, the concrete block features intricate jaali and boxed windows, offering glimpses into the activity and utility spaces.
The idea was to reimagine the library concept as it transcends the conventional role of being a space to merely showcase books; instead, it becomes a platform that promotes literature, interaction, conversation, collaboration, and connections. The ground floor design introduces a hierarchy of levels, ensuring an unobstructed view from the main entrance to all major spaces. The design seamlessly integrates an open-plan structure with full-height shelves and a continuous seating platform, inviting readers to immerse themselves in literature while becoming one with the space. Thoughtfully placed glass openings create a fluid boundary between the inside and outside, inviting the external environment to be a part of the reading experience.
The office room in the northeast corner epitomizes transparency through large glass doors, opening to a semi-covered patio that doubles as a green pocket. The brick backdrop and the contrasting grey finish of the shelf wall attempt to add depth and character to the space. Connecting the ground floor to the first is a sculptural staircase that interacts harmoniously with the surrounding space, choreographing a symphony of light and shadow.
The versatile event space celebrates light on the first floor while providing adequate privacy. An expansive opening with an intricate brick jaali acts as a dual-purpose element, diffusing the western sun's brightness while ensuring privacy from neighboring structures. This design creates an ambiance that balances natural radiance with discreet seclusion, making it an ideal stage for events that echo with creativity and vibrancy.
Project gallery
Project location
Address:Thiruvananthapuram, Kerala, India
客服
消息
收藏
下载
最近























