查看完整案例

收藏

下载

翻译
Architects:Anupama Kundoo Architects
Area:268m²
Year:2018
Photographs:Javier Callejas
Architect In Charge:Anupama Kundoo
Design Team:Anupama Kundoo Architects
City:Puducherry
Country:India
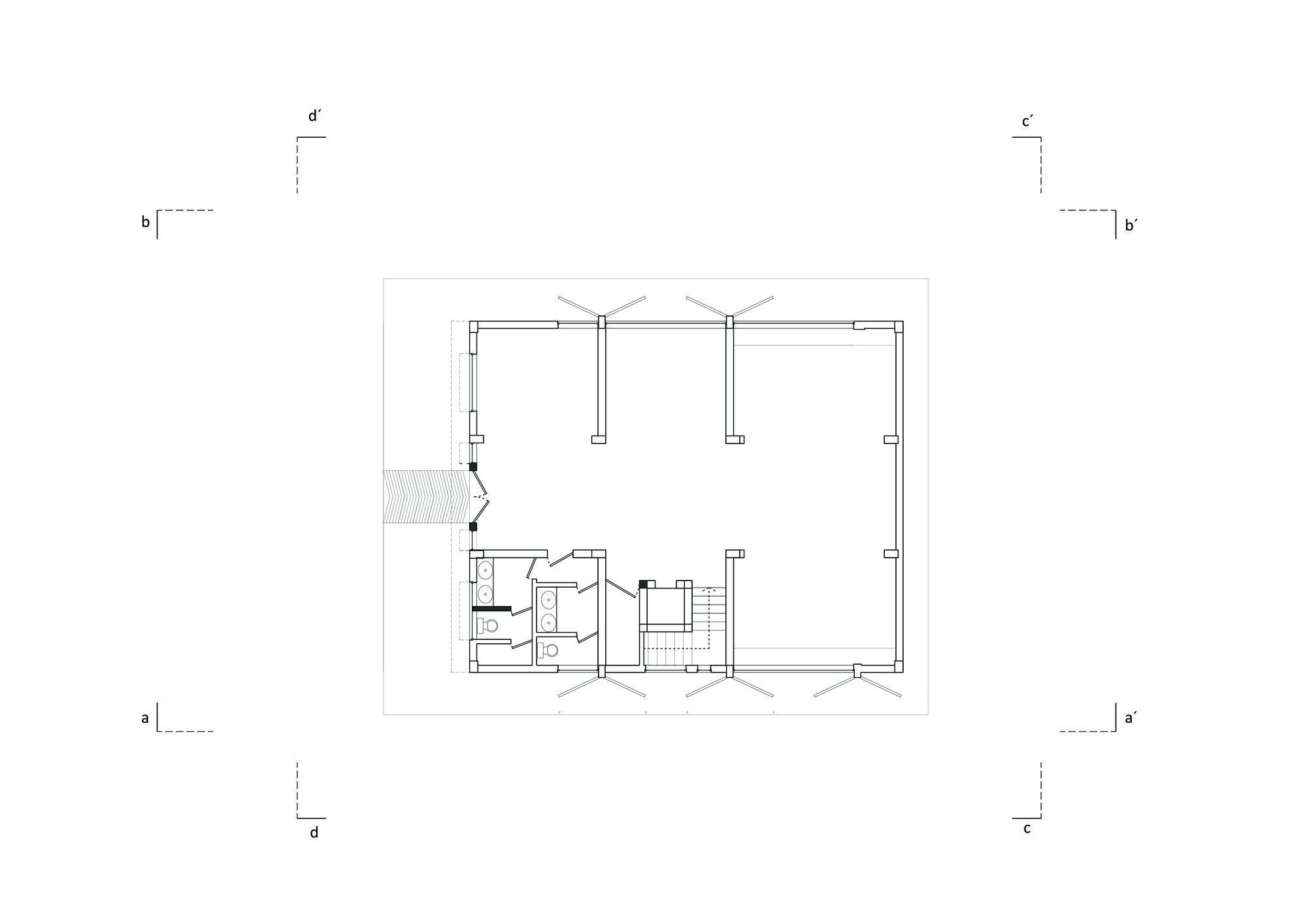
Text description provided by the architects. Set in a residential area of rapidly urbanizing Pondicherry, the new library building is realized as a social infrastructure facilitated through the social organization Nandalal Sewa Samithi.
Affordability being a key consideration, the library is a construction built in locally made, exposed bricks, which would stand out as an institutional building in the context of the plastered and painted masonry construction of the surrounding houses and apartment buildings.
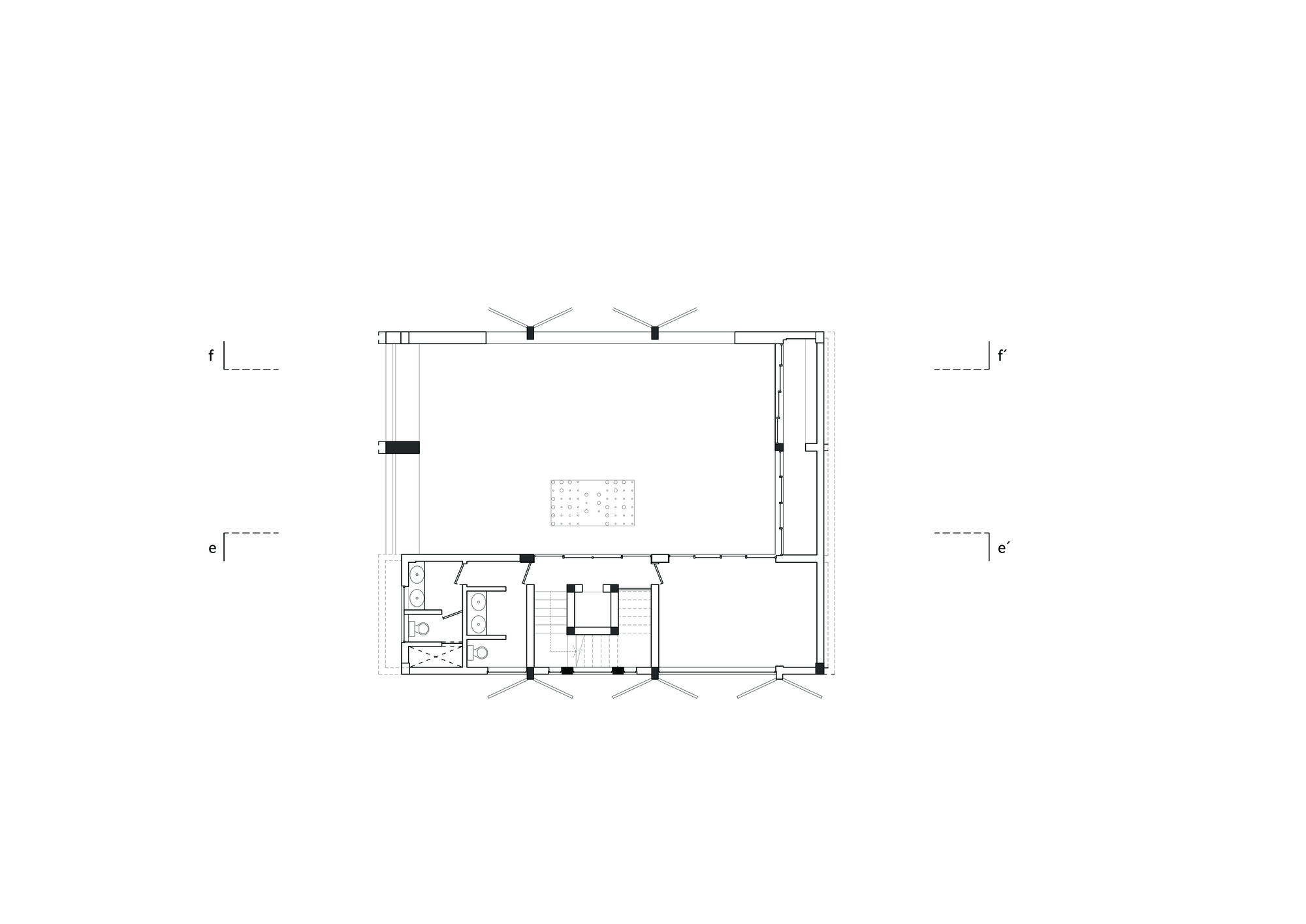
The roof profile represents the ‘open book’, as do the screening elements conceived in ferrocement technology symbolizing constant progress through knowledge. The orthogonal walls on the upper floor lean outwards towards the top like a crown, as the building aims to serve the community and invest in its empowerment by encouraging reading and learning.
As land is limited by the residential plot sizes, the terrace upstairs is designed to compensate for this by providing the necessary open space for contemplation and informal outdoor events. The inclusiveness of this facility is demonstrated by the inclusion of Braille books for the visually impaired. This particular feature is reflected architecturally in the way a Braille typeface is integrated into the building elements to create porous patterns in the brickwork, screens and ceiling.
Light patterns in the form of Braille texts leave their imprint on the interior spaces so that those who can see are visually aware of the language of those who cannot see, and thus increase their sensitivity to the differently abled.
Project gallery
Project location
Address:Puducherry, India
客服
消息
收藏
下载
最近





















