查看完整案例

收藏

下载

翻译
Architects:MS Estudio
Area:42m²
Year:2021
Team:Arturo Aquino, Miguel Angel Baltazar, Erick Pacheco, Alejandro Tapia
Consultant:Manada Architectural
City:Mexico City
Country:Mexico
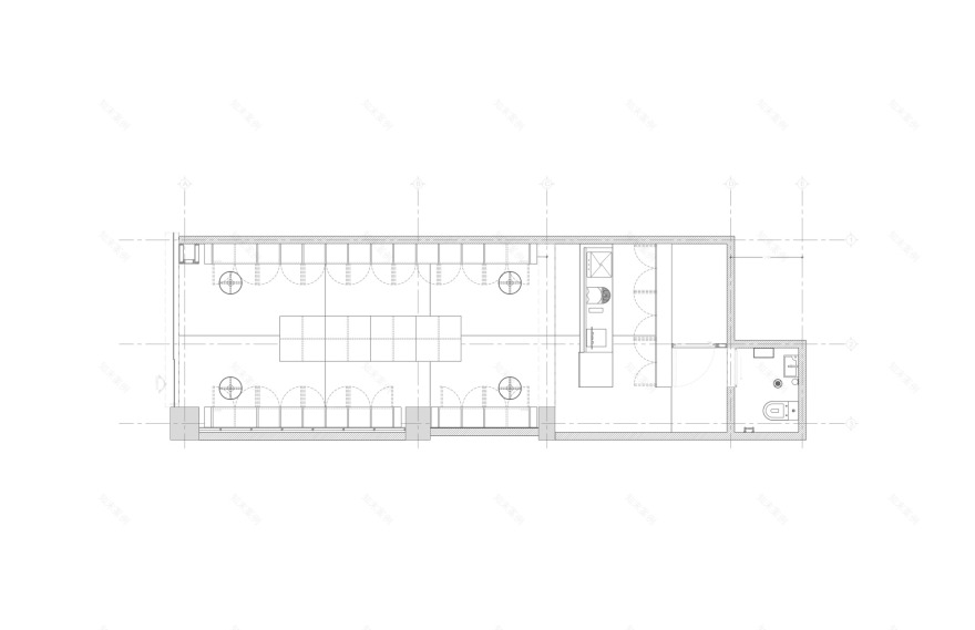
Text description provided by the architects. In a small place in La Condesa neighborhood, in Mexico City, La Increible is born. La Increible is a proposal that speaks through its own formality. A neutral space, with timeless materials, that gives prominence to literature and exhibits.
A prodigious materiality manages to unfold within the space, wrapping the user in a cube that is conveyed under a grid of maple wood elements which orders and systematizes its interior.
The most expressive element of the space, the ceiling, completes the concept and gives the space a playful and contemporary touch through bulb-type luminaires. The central table is developed as a large exhibition piece that exaggerates the depth of the space.
Polished concrete floor adds austerity and tops off by climbing in a simple bar at the backend of the space. Resting spaces within those reticular bookcases invite users to pause within the space and enjoy a delightful reading.
Project gallery
Project location
Address:Amsterdam 264, Hipódromo, Cuauhtémoc, 06100 Mexico City, CDMX, Mexico
客服
消息
收藏
下载
最近

















