查看完整案例

收藏

下载

翻译
Architects:Pascale Guédot Architecte
Area:2000m²
Year:2014
Photographs:Herve Abbadie
Design Team:Pascale Guédot, Loïc Levisalles, Luca Antognoli, Carolina Fois, FORR, Speeg + Michel, BET Structure, ALTO, BET fluides et HQE, AYDA, Forgue, CL Infra, Global, Ateliers 59, signalétique,Batiserf
Entreprise:LBC, gros œuvre, ERTCM, charpente, SMAC, couverture pierre, FIC, façades vitrées, DBPM, façades pierre, Sam+, serrurerie. BONNARDEL, menuiserie bois, DBS, faux-plafonds, TROUVE LECLAIRE, GIACALONE, carrelage, CDI, chape, Balas, CVC-ELEC, ATV, VRD, BOTANICA, VALBOIS
Engineers:Batiserf
City:Bourg-la-Reine
Country:France
Text description provided by the architects. The township chose a strategic location for the media library : in the city center, a few meters away from the city-hall and the church, across the street form the music conservatory built in the 1990s.
A landmark building, the new media library is deliberately visible and identifiable, yet it blends politely with the existing urban fabric.
Respectful of the setbacks, it refrains from overshadowing the neighborhood. Shy of signaling its existence, it calls for a discreet discovery as one comes nearby. Only then, is one struck with the force of the volumes and the architectural identity. This is a building, which is not afraid of stating its bulk.
The façade of the media library presents several folds, each facet responding to a specific context and a particular constraint.
On the Boulevard side, the building opens widely towards a landscaped mall, its transparence lets anticipate an important depth. As it folds along the rue Bouvier, the façade closes itself tightly letting only two openings create an animation: one on the ground floor, similar to a fracture, invites the visitor inside; the other, very large, on the second floor, suggests the presence of a major space. At the rear, in the center of the city block, the facade flips around and loops about its anchoring point, a splendid 100 year old walnut tree.
The roof, faceted as well, details its height following an open variation: at the periphery, it is locked inconspicuously with the surrounding buildings; in the center, it maximizes the PLU regulations to offer the building the most volume it can afford.
The monolithic character of the construction is reinforced by the use of a gray quartzite stone, identical on the walls and roof.
Behind an apparent simplicity, complex technical prowess is hidden. Each side has a specific construction method. For the façade, the stone is set at a thickness of 80mm with varying heights and lengths.
For the main roof part, the stone being used is thinner, clipped to a metal substructure. The slope is steeper on the garden side to make room for the branches of the walnut tree. There the roof is clad with stone masonry on metal brackets, an innovative technology for which an Atex certification had to be obtained.
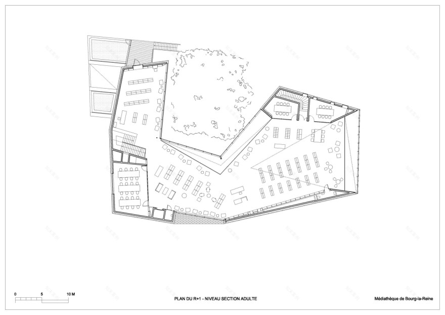
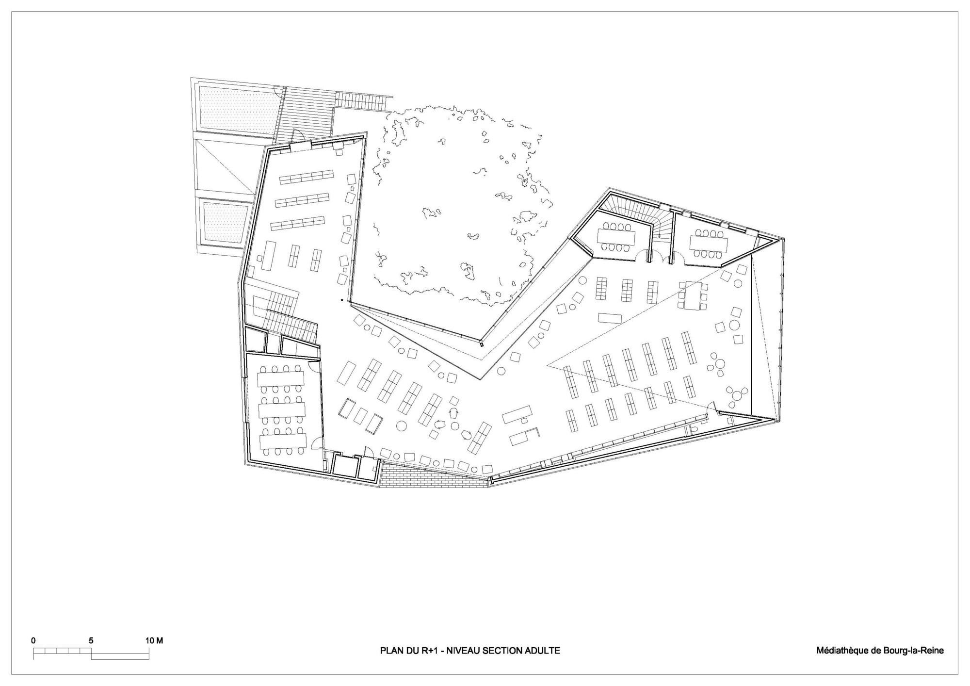
As multiuse meeting places, the new media libraries are always granted a prominent social function. “The Bourg la Reine media library represents a new tendency,” Pascale Guédot, its designer, explains. “Between the beginning of the design phase and the start of construction, the collection volume has decreased by 40%. We were therefore able to emphasize the usability of the space, increase the number of seats.” The check in/check out is automated, which allows more employee time for the public. Needs and constraints tied to the activities of the media library and to the ever-changing modes of delivery have been assessed carefully, which lead to a clear and functional organization of the inventory. A sustained dialogue with the building commissioners allowed for the most rational spatial layout, and for the reading rooms to occupy vast “Open Spaces”
Once inside, visitors discover a generous volume opening widely towards the garden. Interior and exterior blend, one of the exterior stonewalls continues inside, a stone bench lengthens simply, to wind around the walnut tree trunk, defying all notion of borders. Wood terraces, readily utilizable, lean to the adjoining party wall. During the summer, in the shade from the walnut tree, the garden becomes another reading room.
On the ground floor, it is the kids’ corner’s wide-open space, which welcomes the readers. No bearing posts, or partitions come in the way of the expanded volume. It is within the thickness of the exterior walls that small reading rooms are tucked.
A wide staircase, open to the surroundings, sky lit, and clad with the same stone, which gives the media library its unity, is inviting you to the second floor.
There, at the top of the stairs, the main reading room’s space is striking. The ceiling, with its multiple facets, directly following the roof’s, reaches 7m at its highest. To the North, where the building widens, the roof rises up, to let in plenty of natural light.
Originally published on July 2, 2015.
Project gallery
Project location
Address:Bourg-la-Reine, France
客服
消息
收藏
下载
最近




























