查看完整案例

收藏

下载

翻译
Architects:atelier d'architecture King Kong
Area:2858m²
Year:2023
Photographs:Ivan Mathie
Project Manager:Paul Marion
Project Leader:José Llorens
Partner Architects:LLA Architectes
Scenography:Kanju
Landscaping:Freddy Charrier
Engineering Consultants:Artelia
Engineering Consultants For Acoustics:Venathec
City:Venelles
Country:France
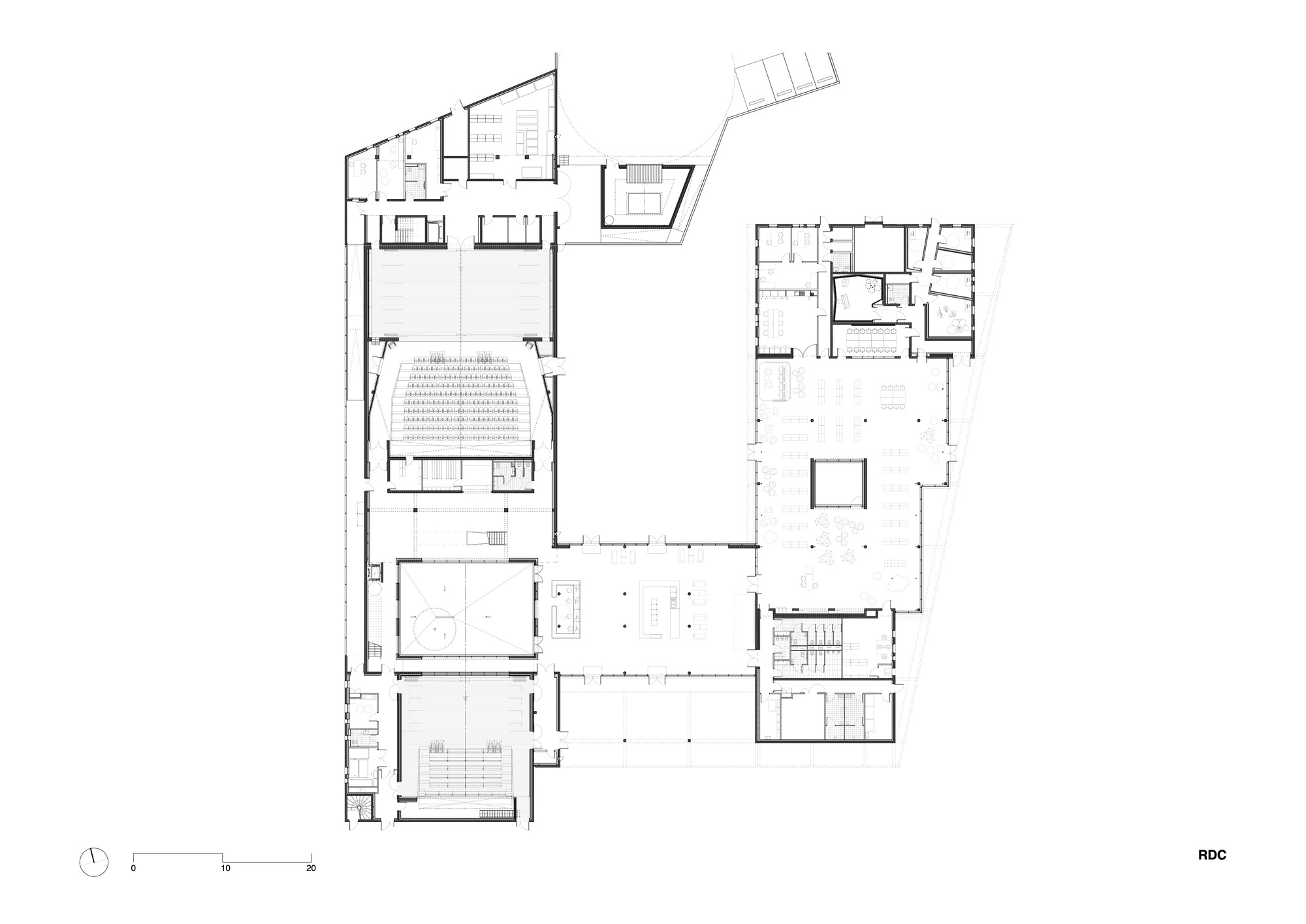
Text description provided by the architects. The cultural center, which includes two theaters and a media library, is located in one of the town's activity zones currently in redevelopment. This new public facility, together with the transformation of the RD 96 road bordering the plot into a boulevard, will create a new urban dynamic in the south of Venelles.
Open onto the town, the project and its external landscaping take advantage of the strong character of the site. Taking into account all the site's components and the needs of residents, the cultural center design provides a comprehensive architectural, urban and landscape response to the scale of the site and its environment, typical of the foothills of the Alps.
Designed as a light-colored concrete “catamaran” around a central garden, the shape, layout and spread of the building preserve unobstructed views over Venelles-le-Haut.
To the west, the high volume of the theater protects the garden from prevailing winds, while masking the approaches to the activities area. These two halls are arranged around a patio at the crossroads of the common hall, which articulates the functions by offering them an open-air extension.
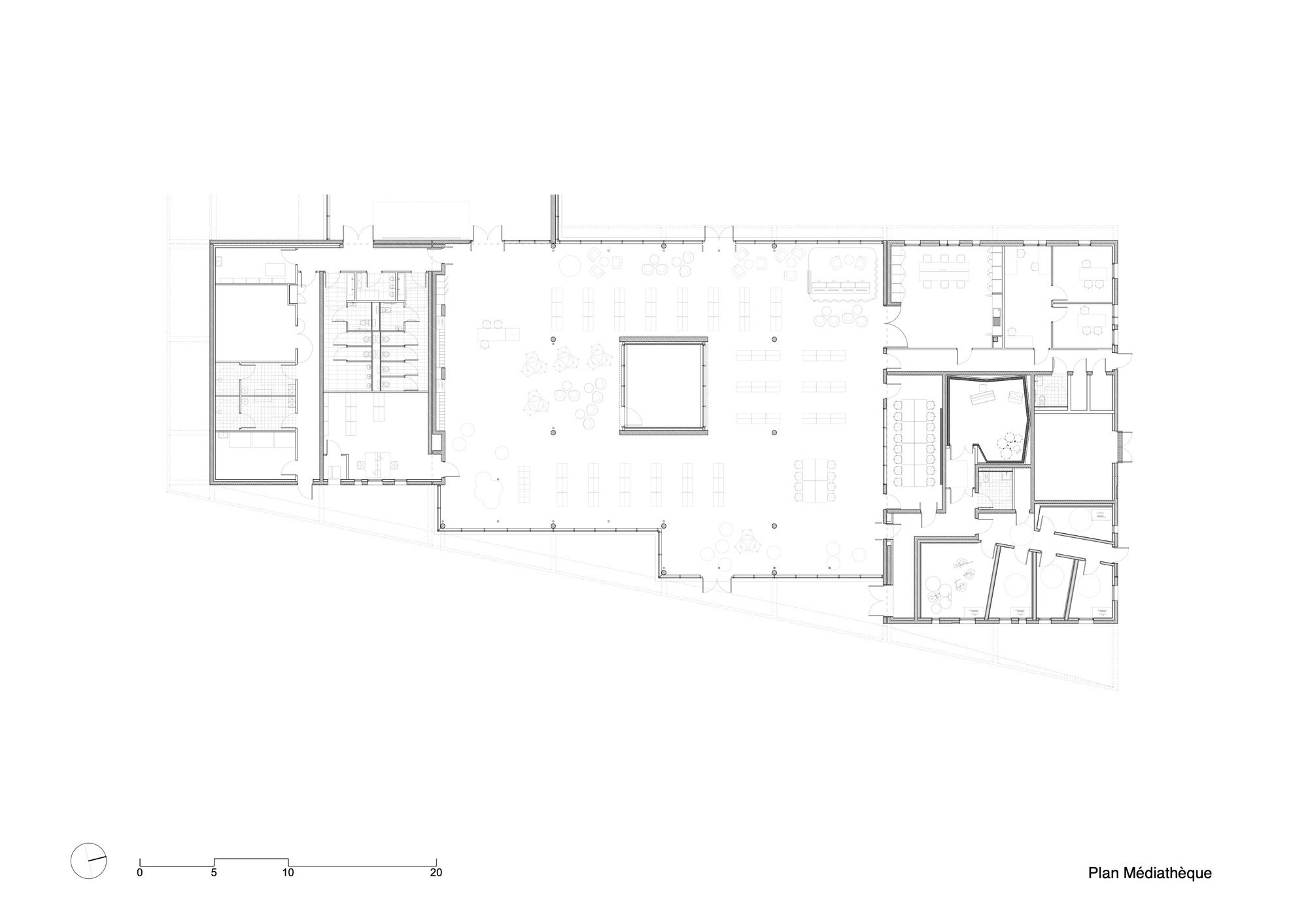
To the east, the media library opens onto the garden and the Rue de la Grande Bégude, which has been completely remodeled for landscaping purposes. Entering Venelles, the presence of the media library, with its large windows overlooking the public space, confirms the importance the town attaches to promoting culture.
The two entities are linked by a general hall at the heart of the project, which brings together all reception and convivial functions: café, checkrooms, sanitary facilities, exhibition room, etc.
The exterior landscaping accompanies pedestrian flows, to the south towards the main entrance and to the north towards a secondary entrance connected to the pedestrian walkways leading down from the heights of Venelles. Composed of local species, shrubs and white limestone, the forecourt, garden and patio echo the codes of the garrigue of Provence.
Project gallery
客服
消息
收藏
下载
最近
























