查看完整案例

收藏

下载

翻译
Architects:Carvalho Araújo
Area:17510m²
Year:2022
Photographs:Felipe Petrovsky
Lead Architect:José Manuel Carvalho Araújo
Project Team:Adriano Peixoto, Alexandre Branco, Ana Carolina Moura, Carolina Vieira, Daniel Carvalho, Gonçalo Fernandes, Hélder Ferreira, João Lago, Joel Moniz, Margarida Araújo, Pedro Mendes, Tatiana Campos, Tiago Almeida, Sandra Ferreira
Construction:Consórcio Moraes Vasconcelos, Lomacon e Marsou
Restoration:Simone Delanoy
HVAC, MEP:Teknika Projetos e Consultoria S/S
Installations:FIP Engenharia
Structure:MD Engenheiros Associados
Waterproofing:Rui Leite Barbosa Jr.
Lighting Design:Beatriz Mapurunga
Landscape Design:Bruno Ary
City:Fortaleza
Country:Brazil
Text description provided by the architects. Estação das Artes is a large cultural complex located in an old railway station in Ceará, Brazil. The proposed set uses the existing structures to accommodate a diversified cultural program, consisting of exhibition and performance areas, auditoriums, studios and spaces for creative residences, collection and document work areas, a library, and a gastronomic market, among many others. The various spaces are divided into five functional and autonomous units, all with distinct and specific characteristics: the square, Pinacoteca, IPHAN, SECULT, and studios.
The old station square - which used to function as a bus station - is reformulated and assumed to be the “green lung” of the complex - a wooded space where the pavement lines emphasize the structure of the warehouses and the railway lines. The buildings that function as an urban complex are located on it, despite assuming themselves as autonomous structures. It is also through the square that the subway line is accessed, through an entrance created from the “deformation” of the pavement.
The Pinacoteca building takes advantage of the former warehouses of the Federal Railway Network R.E.F.E.S.A. and consists of a structure of seven adjacent warehouses, each with a gable roof. The height of each of the warehouses varies between 6 and 9 meters, making them a perfect structure for incorporating this program, which includes exhibition areas, auditoriums, spaces for small performances, and collection and document work areas, among others.
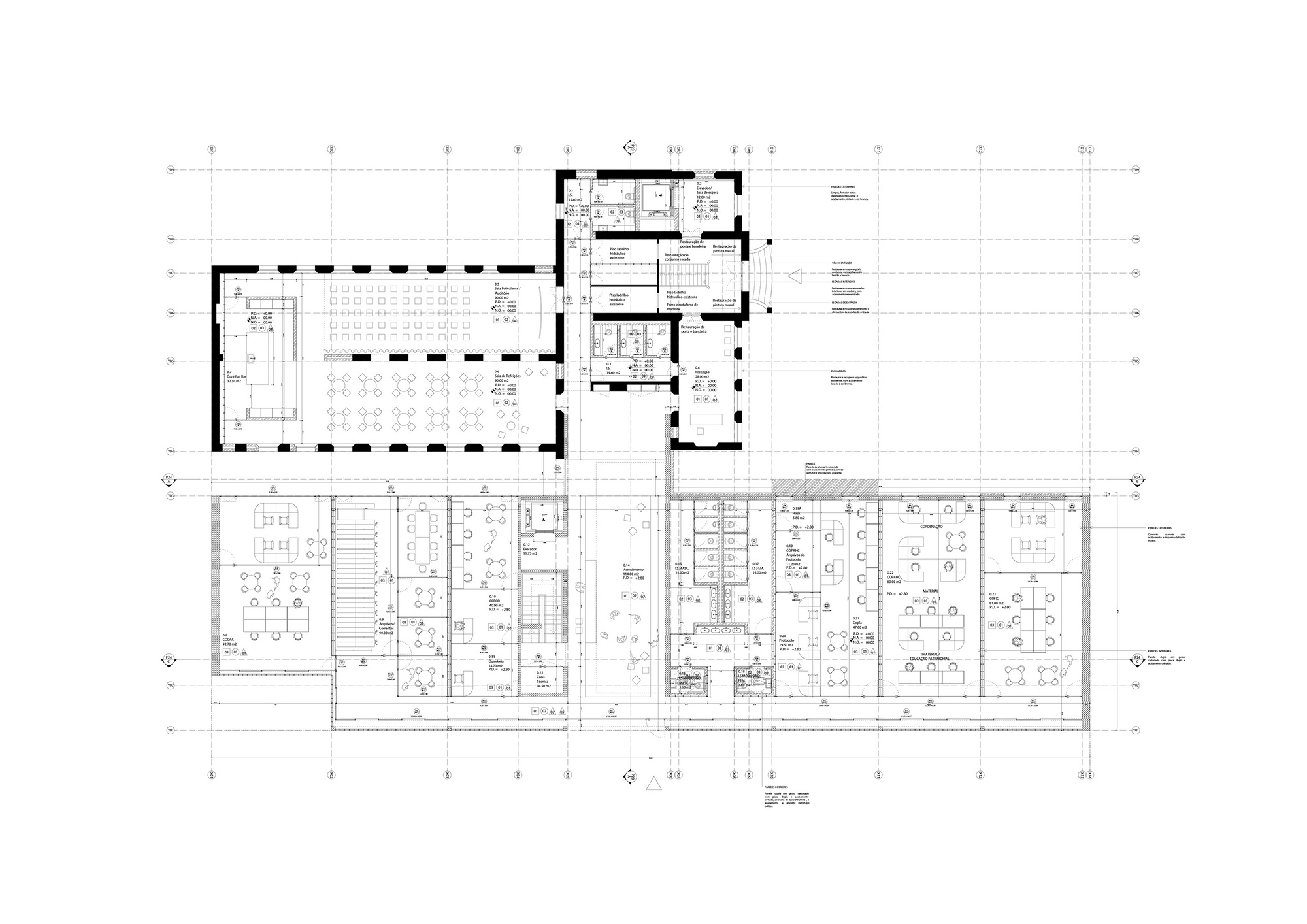
IPHAN results from a set of buildings that formed the João Filipe railway station. It consists of three buildings and a covered platform, with a central courtyard that is “invaded” by the square’s pavement, making the connection with the exterior spaces. This complex houses a small museum, multipurpose exhibition rooms, a library, an archive, an archeology and conservation area, several support rooms, a gastronomic market, and dining areas.
The SECULT building occupies the Casa do Engenheiro facilities, taking advantage of the two-floor existing building. A new complementary building with two floors was also designed, taking advantage of the old location of the Casa do Engenheiro adjacent building. SECULT closes the triangle of the main buildings of the entire complex, creating in the space between them a continuity with the square with a greater level of intimacy that works simultaneously as an antechamber for the entrance of the subway.
Project gallery
Project location
Address:Fortaleza - CE, Brazil
客服
消息
收藏
下载
最近

























