查看完整案例

收藏

下载

翻译
Architects:Avignon Architecte
Area:6115m²
Year:2021
Photographs:Sylvain Bonniol
Manufacturers:ALUMINUM JOINERY,CF TREATMENT,COVER - WATERPROOFING,Cladding,DECONSTRUCTION - ASBESTOS REMOVAL - LEAD REMOVAL,DRYWALLS – LINING – PLASTERBOARD CEILINGS,ELECTRICITY,FOUNDATIONS – MAJOR WORKS,Heating, ventilation,INTERIOR JOINERY,LIFT,LOCKSMITH,METAL FRAME,PAINTING,Plumbing,RESILIENT FLOORING
Lead Architects:Benjamin Avignon
City:Nantes
Country:France
Text description provided by the architects. The prerequisite for any design is the question of pleasure. The pleasure of reinventing and reinvesting a building with atypical dimensions and of giving it a new history. This totem building makes us pass from the safeguard of a collective memory of an industrial past to another form of memory, now digital.
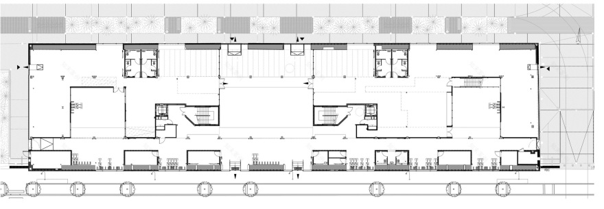
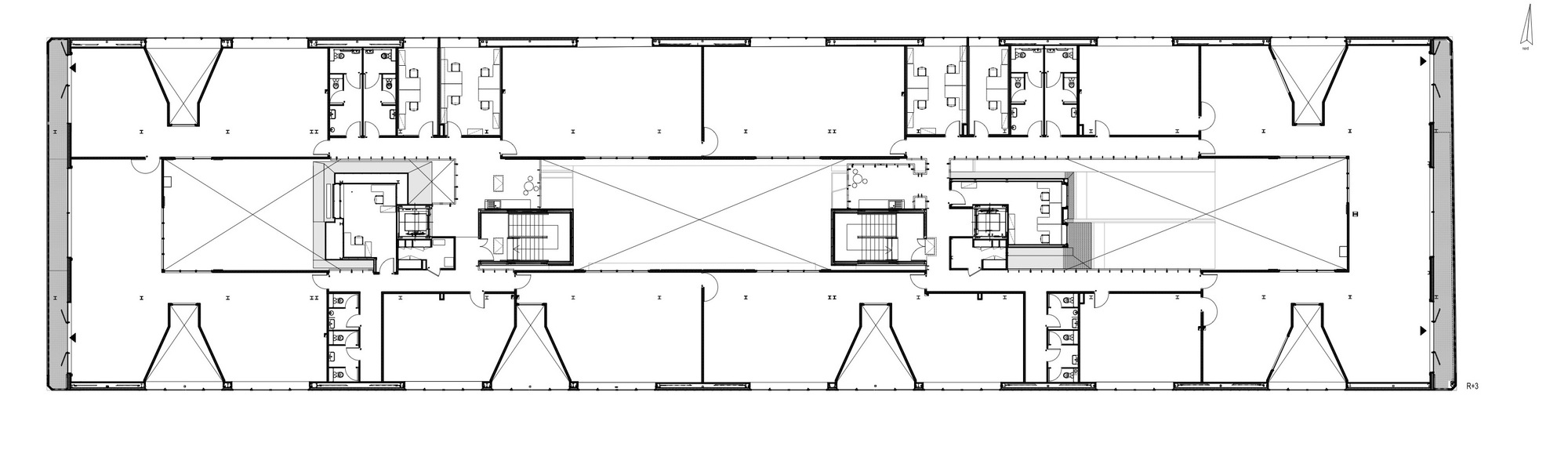
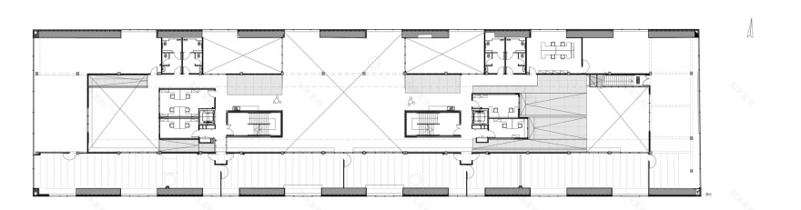
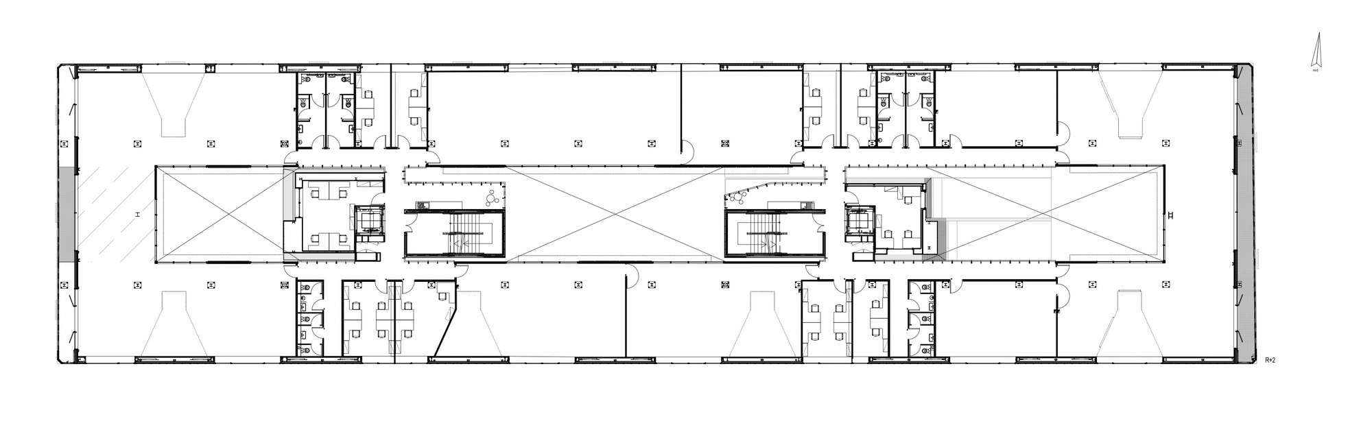
I wanted a building that is educational in the sense that it offers itself to be read and to experience the space in all its dimensions, length, width, height, and thus reveal the architectural and patrimonial singularities. I tried to avoid a reflexive approach that would like a large central atrium lined with offices, but rather to invest the void as an experience of space and to reconnect with the industrial history of this building built in 1847.
The name of the "engines" quickly became the founding element of the project. All the rest is only programmatic declination and materiality. Then come the street, the atriums, the shared spaces, the light funnels... Everything is designed in close relation with the surrounding context, the public space, and its surrounding equipment. I tried to multiply the points of leakage and the perspectives, the visual and crossing escapes.
It is a question of a "district within the district of creation", a strong entity, capturing the light from all sides and proposing a prospective and unique architectural rewriting in the working conditions staged. The raw materials used inside the hall (galvanized steel, concrete, perforated sheet metal...) express the technicality required for the functioning of the place, but in a shifted implementation. The exterior envelope of the building in Tectiva, by its game of calepinage and machining of the plates, let's appear in the spectrum the traces of the past and anticipates the seismic risk of the future.
To complete this narrative architecture, I designed a specific piece of furniture called "Les oubliés de la Halle 6", from a reinterpretation of a so-called industrial vocabulary. Finally, the building is designed as a whole. The signage is one with the project as a single entity, with the presence of its "memory" cards integrated into the architecture.
Project gallery
Project location
Address:Isla de Nantes, 44200 Nantes, France
客服
消息
收藏
下载
最近

































