查看完整案例

收藏

下载

翻译
Architects:PILA
Area:400m²
Year:2021
Photographs:Alina Lefa
Manufacturers:ALUMINCO,EKA Hellas,EL TOP,Ideal Standard,Isomat,Mexil,Orama Minimal Frames,St. Gobain
Project Manager:Christina Papalexandri
Design :Konstantinos Voutoufianakis Petropoulos
Design:Eleni Nikolaou
Curation And Program Manager:Vasilis Batrzokas
City:Athens
Country:Greece
Text description provided by the architects. Metaphor is a hub for creatives working in the areas of art, fashion, and design, based in Athens, Greece. Metaphor aspires to become a platform that promotes young creatives from Greece, developing a community in dialogue with local and international audiences.
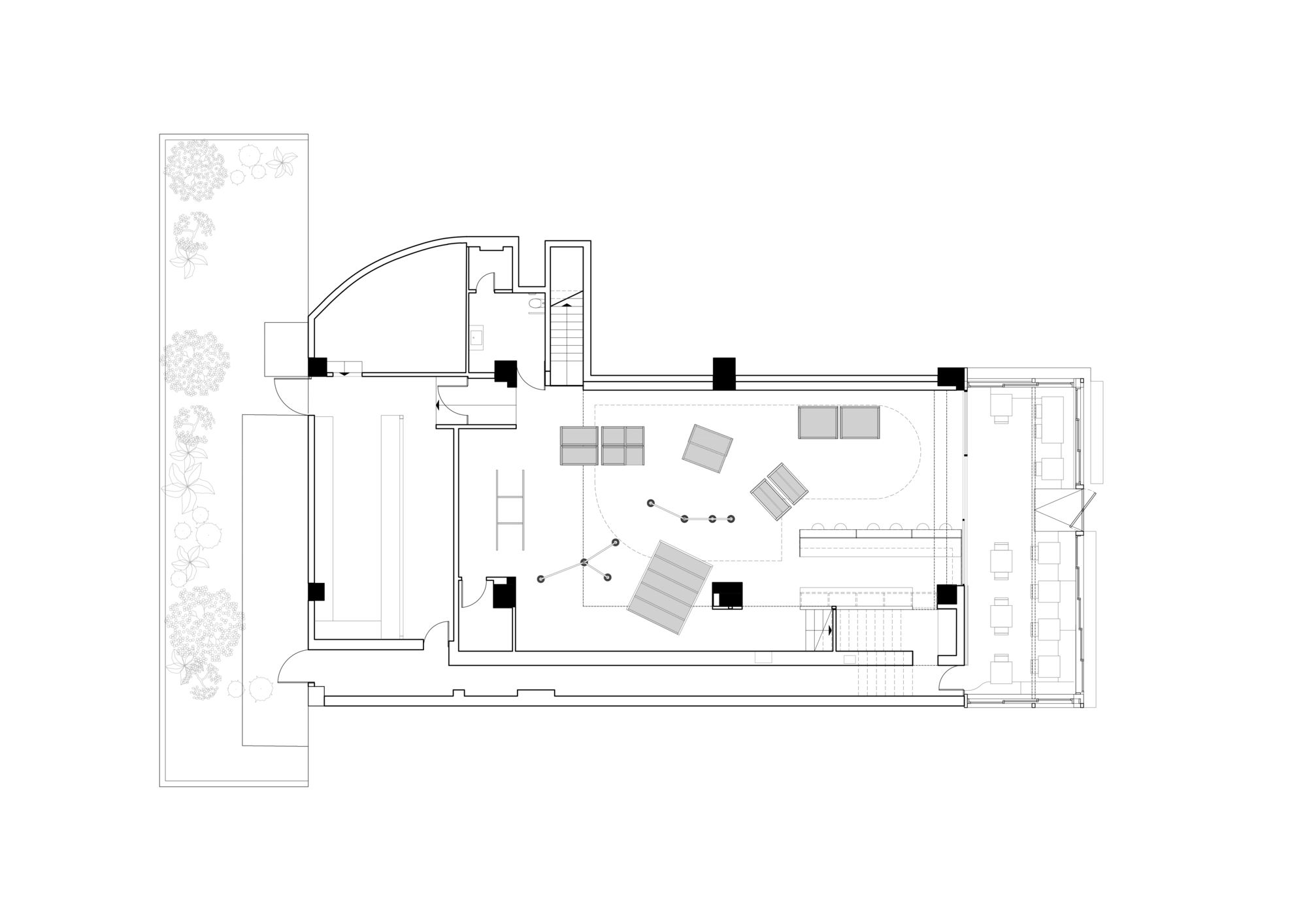
For the design of Metaphor, PILA’s proposal for the space stems from the concept of flexibility, in order to create an agile environment that can swiftly transform from a concept store to a gallery to an event space while at the same time maintaining a unique visual identity that defines it.
The space is developed on two levels, with a cafe-bar restaurant on the ground level, an exhibition and events space on both levels, and office spaces on the first one. The exhibition space can be easily transformed with the use of six metallic moving display installations either to host exhibitions and display works of art, products, or the program of artistic activities that will be programmed at the space by the creative team of Metaphor.
Metaphor offers visitors a unique experience every time they visit the space, depending on the event that is hosted and the space’s configuration, always finding through the same creative atmosphere and energy that the space exudes.
Project gallery
Project location
Address:Athens, Greece
客服
消息
收藏
下载
最近




















