查看完整案例

收藏

下载

翻译
Architects:Intramuros
Area:73m²
Year:2019
Photographs:Balázs Danyi
Manufacturers:MEVACO
Lead Architect:Botond Zsolt Dobos DLA, Olívia Kurucz
Electric Engineers:András Máramarosi
Structure Engineers:CEOS
Mep & Hvac Consultants:Kessel Technik
Road And Traffic Designer:Nagy és Társa
City:Budaörs
Country:Hungary
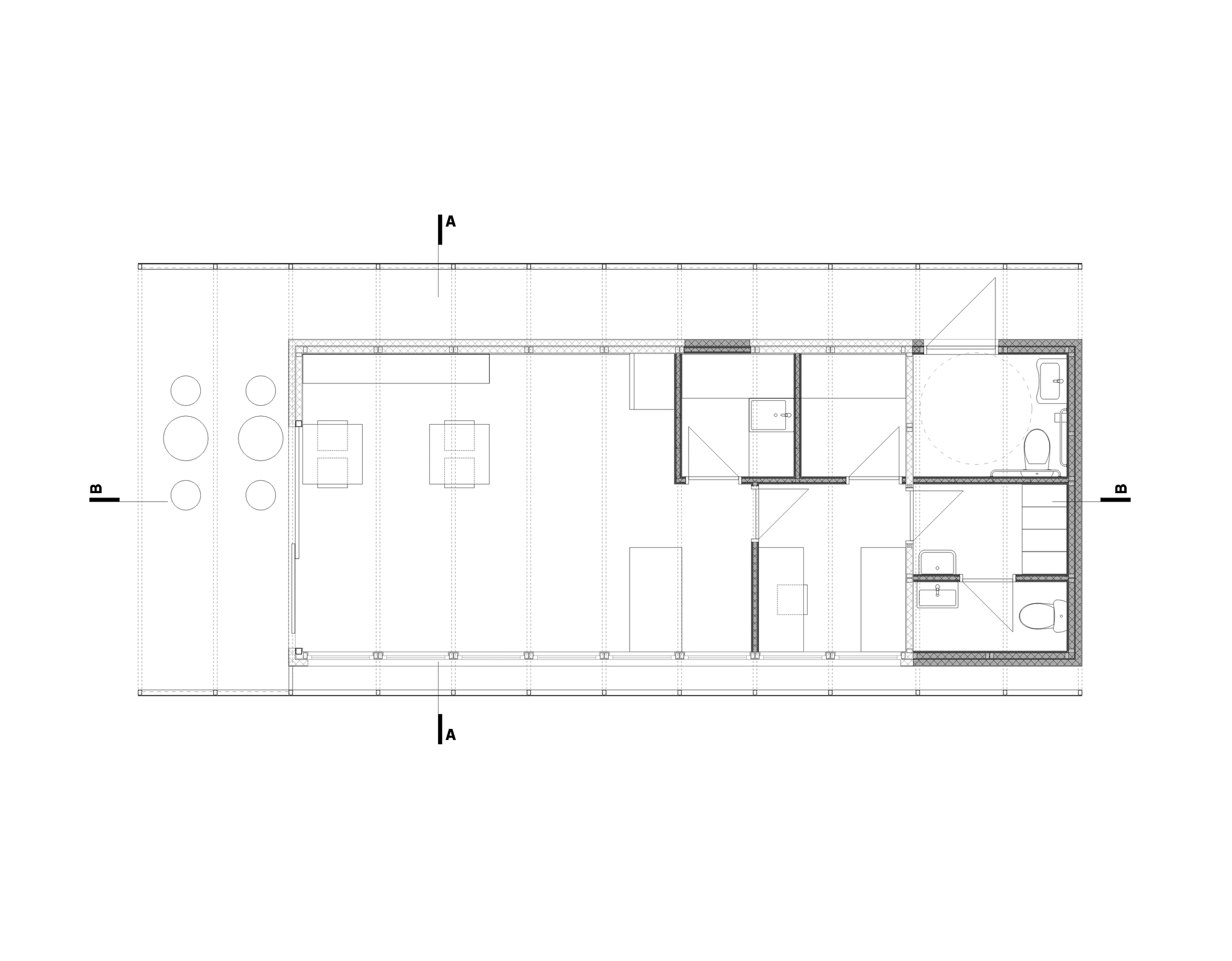
Text description provided by the architects. For decades, a two-position gas station has been operating in the residental sturcture of Budaörs, alongside the main road. The existing control facility basically provided the function, however, its mass formation and appearence did not resemble of a gas station, nor did it fit in the downtown location.
For this reason, the overarching goal of the alteration was to transform this unworthy aesthetic value building complex into a contemporary, local-looking petrol station, that reflects to the small-town environment, while using a restrained toolkit and retaining as many existing items as possible.
A local station, that simultaneously combines the traditions, as well as industrial and technological nature. For this purpose, we „wrapped up” the solid, traditional house mass in expanded steel sheet „rind” of steel construction, thereby retaining its befit to small-town environment in form, while signaling its industrial character in material.
Project gallery
Project location
Address:Budaörs, Szabadság út, 2040 Hungary
客服
消息
收藏
下载
最近































