查看完整案例

收藏

下载

翻译
Architects:Robbrecht & Daem architecten,murmuur architecten
Area:2327m²
Year:2014
Photographs:Filip Dujardin
Manufacturers:Beneens,Cast PMR,Desso,F&T parketvloeren,IBIC,Lagae Hout,Laminated Timber Solutions,Thermowood
Engineering:AIDE, Steven Van Besien
Consultants:HP Engineering
Clients:Pedico
Illustrator:Sabien Clement, Sabien Clement
City:Geel
Country:Belgium
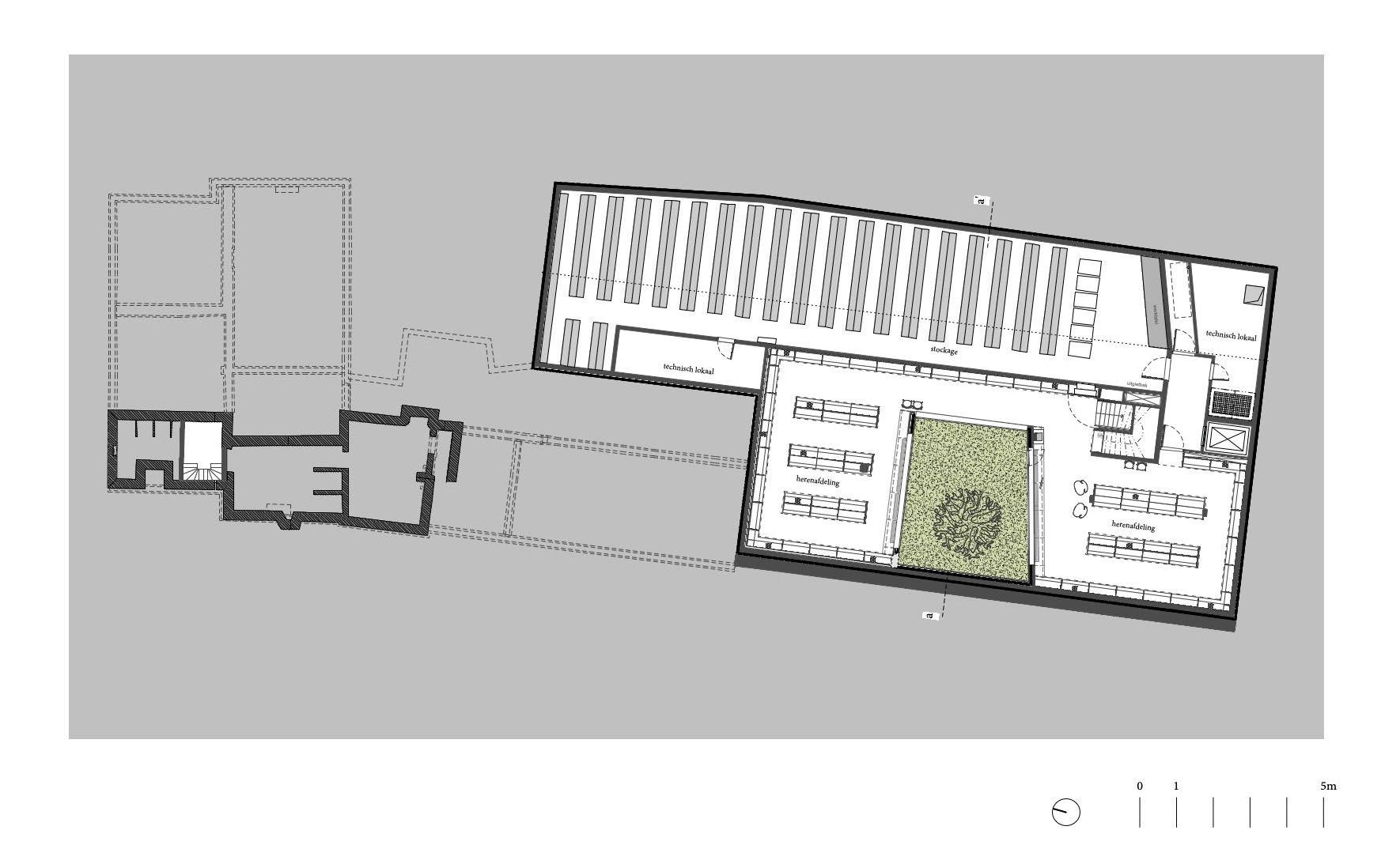
Text description provided by the architects. The old deanery of Geel is conserved and restored, by which the room structure is preserved. At the back a new building is connected to the historically valuable building. A spacious and semi-open inner garden creates distance between the deanery and the new building, which together house a large shoe shop. From that first inner garden you can look at certain points of view through the new 'hall-shaped' volume to the park in the inner area.
The openness up to the ridge of the hall reinforces this. The cut-outs of various types of inner gardens unravel the new building into smaller components. The patios make the building green and open, thus creating a green and open inner area. The roof structure of the new buildings continues on the cascade of sloping roofs of both the deanery and its outbuildings. On the one hand, this profile ensures that the building fits in with the historical heritage and its multi-faceted architecture. On the other hand, the shading of the roof surfaces ensures an integration on scale of the small-town fabric. The roofs of the new building volumes are green roofs on which grasses and flowers grow.
This reinforces the green character and gives a certain friendliness to the buildings. The project thus supports the transition between the densely built-up urban fabric and the greener inner area in its use of materials. All furniture was designed by the architects along with the building. The drawings on the children's furniture are by illustrator Sabien Clement.
Project gallery
Project location
Address:2440 Geel, Belgium
客服
消息
收藏
下载
最近




























