查看完整案例

收藏

下载

翻译
Architects:ODDs&ENDs architects
Area:956m²
Year:2023
Photographs:Roh Kyung
Manufacturers:Unios,Eagon,NanumTech,The metal
Lead Architects:Haejin, Choi
Design And Construction Supervisor:Yeojin Park
Strucutre Engineer:THEKUJO
Mep & Hvac Engineer:Chunglim Eng.
Mep Engineer:Dawoo Tec.
Lighting Consultants:lighting group GORI
Construction:Heungpan Construction
City:Chuncheon
Country:South Korea
Text description provided by the architects. Located on the middle of the road from Gangchon Station to Gugok Falls and Munbae Village along the valley, the site is a quiet place a little away from Gangchon Amusement Park. Hikers and bicycle riders usually pass this place from spring, when cherry blossoms bloom until autumn. Along the way you can see old restaurants, closed accommodations, and locked down parks which have stopped development, only leaving the cutout sites a mess.
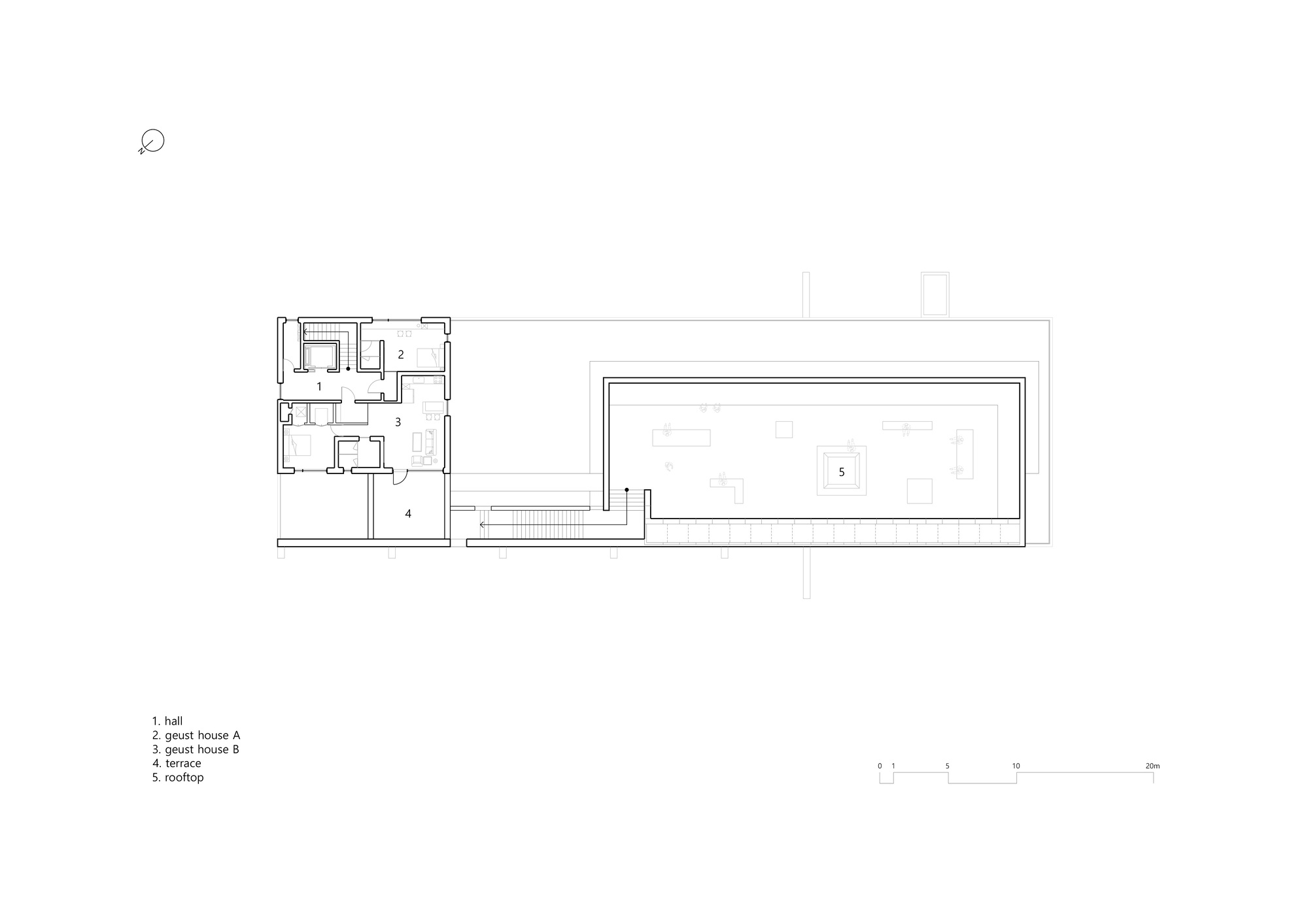
We intended to block the view toward the disordered road and catch the eye on the opposite side aligning the trees with the eye level, giving a spatial experience hovering among the valleys. To make this eye level, we made a virtual site as big as the limited ratio of the land and lifted the level, on top we made the main needed spaces, making the bottom a parking lot and entrance.
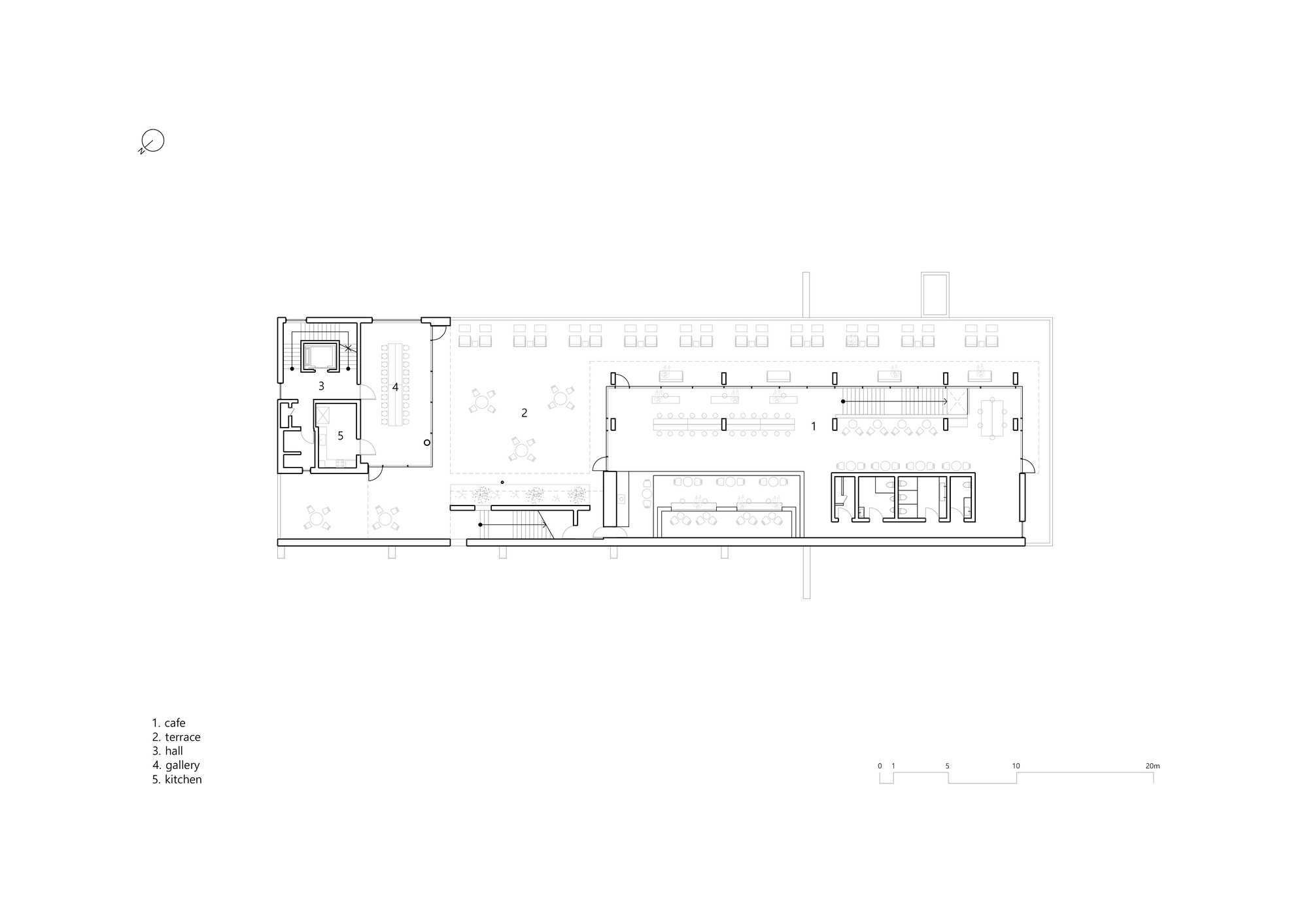
The space was designed with minimum forms, and the building materials were also limited so that people could focus on nature. Nature becomes the background of the building and changes with the seasons. Entering the site stone walls are lined up and the concrete walls have various textures. As you walk along you can come across a wide viewpoint on the east side. Going up the second floor, you enter a valley surrounded by mountains on all sides.
The space creates a rhythm with the skylight changing over time, and repeated columns and beams. The Big curtain walls make you gaze outside. The columns and walls protruded to create a sense of rhythm in the monotonous and long building. The texture of wood and stone was built on concrete so that it could enter nature without a sense of difference.
Project gallery
Project location
Address:171 Gangchongugok-gil, Namsan-myeon, Chuncheon, Gangwon-do, South Korea
客服
消息
收藏
下载
最近






















