查看完整案例

收藏

下载

翻译
Architects:Rare Studio Experimental
Area:20m²
Year:2023
Photographs:Ana Salazar Altamira
Manufacturers:In stone,RARE
Lead Architects :Mateo Unamuno, Ivan Ferrero, Agustin Willnecker, Belén Marinelli.
Graphic Design:Estudio RARE
Construction:Estudio RARE
Program:Coffee Shop
City:Ciudad de Córdoba
Country:Argentina
Text description provided by the architects. The spontaneous, the ephemeral, the meeting point, the corner, the individual expression, the collective gesture, the noise, the cars, the metal sheets, the lights... The street.
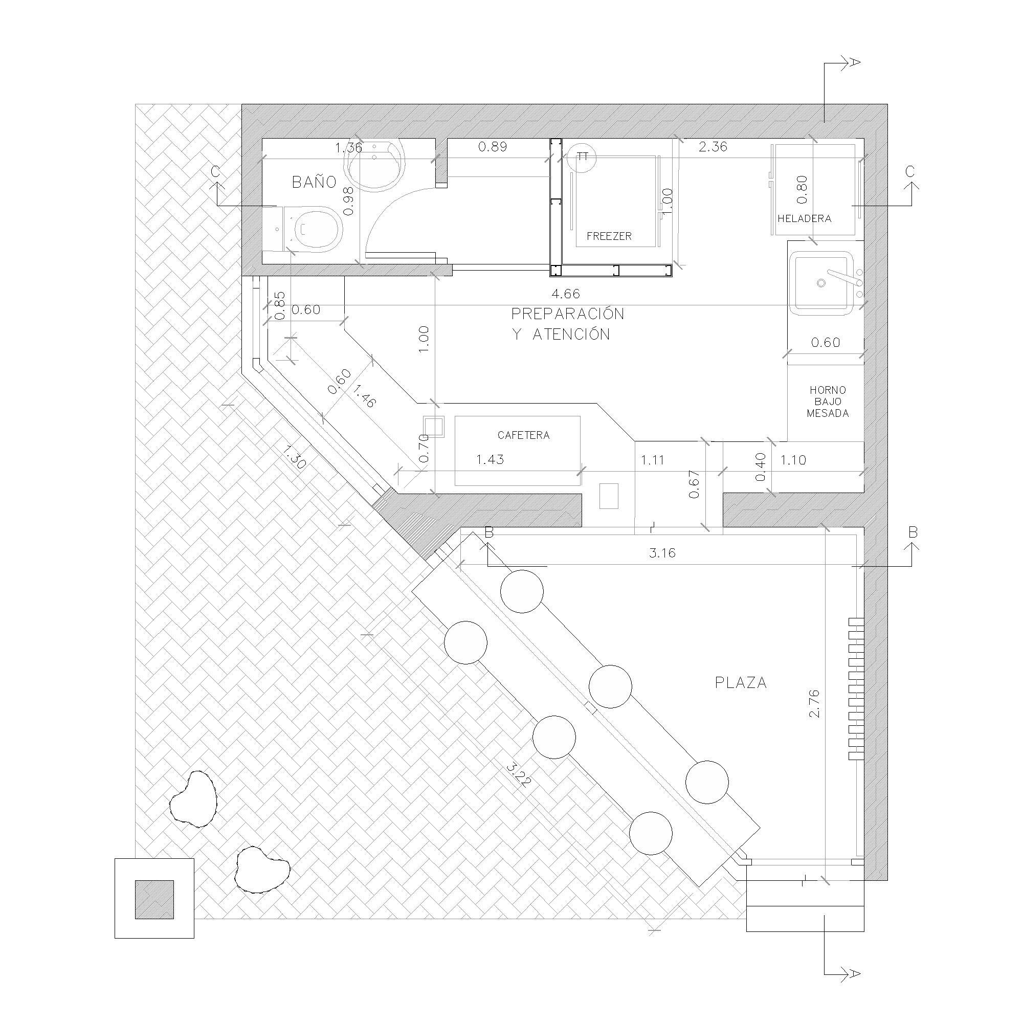
THE FAV is an experimentation from the limits, for which the action of erasing the boundaries between the interior and the exterior was exercised, in this case of a commercial space, specifically a cafeteria. Located in the city of Córdoba, in the neighborhood of Nueva Córdoba, precisely in a somewhat hidden corner in an area of high residential and commercial density.
The strategy of this small experimentation was to think of actions from the inside out, to work on the boundary between a large existing glass that only allowed SEEING through, and to use the boundary to enable DOING through. All existing glass windows were removed, the interior space was opened towards the sidewalk and the street, a plaza was designed and with it the return to using the corner as a meeting point.
This private commission led to an exercise to reflect on public space, it is a manifesto to occupy the sidewalk again, as well as for the street to enter our interiors again.
A series of metal gates open upwards with counterweights, to achieve maximum opening towards the street, the corner remains open during the store's operating hours, the service area groups the services, and the plaza area is a semi-covered space open to the neighborhood. At the old glass/sidewalk boundary, uses such as a service bar and a row of benches and tables that overcome a level difference on the sidewalk are proposed. This last row allows the use of the corner, beyond the commercial operating hours.
The metal as well as the gates, the cement brick used as it comes out of the factory, the graffiti as an expression for the corner, the brand's color, coffee as an urban landmark, the noise, the plaza, the sidewalk, the cars, the street, the spontaneous; the inputs of this exercise.
Project gallery
Project location
Address:Ciudad de Córdoba, Provincia de Córdoba, Argentina
客服
消息
收藏
下载
最近


























