查看完整案例

收藏

下载

翻译
Architects:VAGA
Year:2021
Photographs:Carolina Lacaz
Lead Architects:Fernando O’leary, Pedro Domingues, Pedro Faria
Installations:SERTEC
Kitchen:Estillo Arquitetura - Erlise Tancredi
Project Design Year:2020
Client:Fábrica de Arte Marcos Amaro – FAMA Museu
City:Itu
Country:Brazil
Text description provided by the architects. Located inside the FAMA Museum, in Itu - São Paulo, the project for the São Pedro Kitchen, developed by the VAGA Architecture office, sought to create a welcoming space for a restaurant that could also be used as an event area. The architects had as a starting point the creation of an environment with a contemporary language, adapting the existing structures for a new proposed use, establishing a respectful dialogue with the heritage, and with the works of art scattered throughout the 25,000 m² complex occupied by the FAMA Museum.
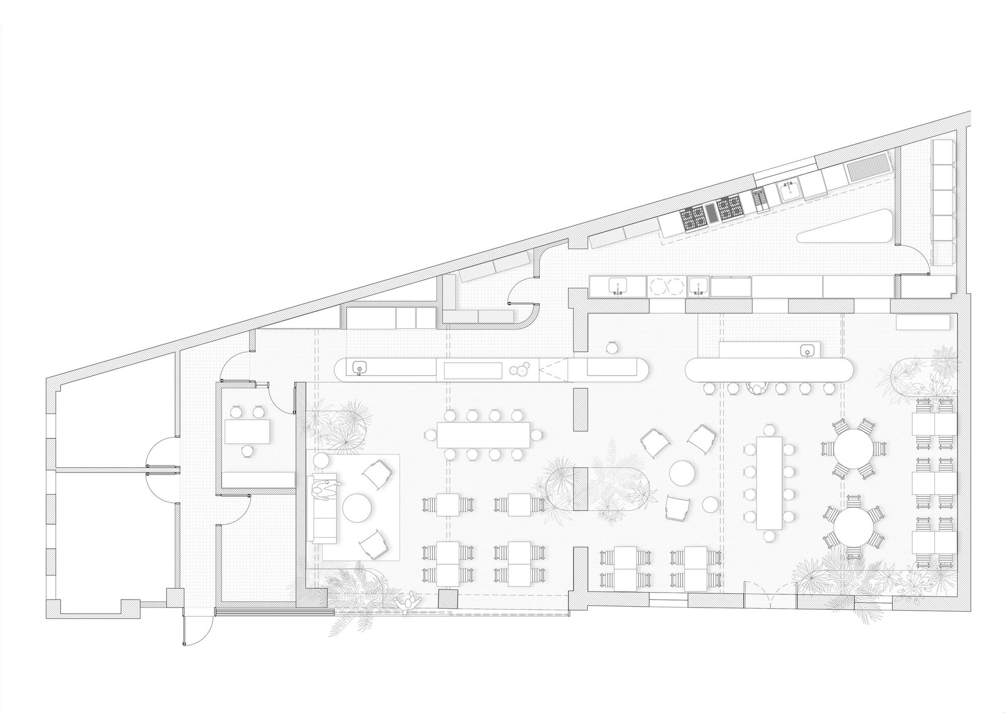
The São Pedro Kitchen is located in two warehouses and houses a bistro and restaurant. The new architecture proposes a unique experience for visitors through a simple and impactful intervention that creates a space conducive to meeting and interacting with visitors, with the historic building as the protagonist. From the original architecture, the structural walls made of exposed clay bricks and the arches in the passages, which were closed due to past renovations, stand out. With their reopening, the physical and visual connection between the warehouses was re-established.
The exposed concrete floor and counter stand out, as well as the new environments, compartmentalized by walls covered in white tiles. With the exception of the monolithic counter that crosses one of the arches, all non-fixed furniture allows for layout flexibility, making the space capable of accommodating uses beyond the restaurant, such as museum events or private events.
In addition to the functional aspect, the lighting was treated as an aerial element associated with the fixed counter that reinforces the connection and integration between spaces. The fixtures, with matte white acrylic pendant spheres, are striking elements in the project.
The architects worked together with the museum's restoration team to understand the relevant elements present in the structures and restore them in a way that enhanced the original architecture, while also allowing for the creation of new uses and spaces. As for landscaping, the idea was to bring the outside gardens inside the space in a punctual way, without compromising layout flexibility.
The main difference of this project is how the new architecture was able to promote a dialogue between eras, using simple yet efficient devices capable of establishing physical and poetic communication between spaces. The project makes it clear this overlapping of times and does not aim to mimic the new architecture to the existing one, making it clear to the viewer what is new and what is old, while also proposing a harmonious coexistence between the elements.
Project gallery
Project location
Address:Itu - Estado de São Paulo, Brazil
客服
消息
收藏
下载
最近

















