查看完整案例

收藏

下载

翻译
Architects:Takanori Ineyama Architects
Area:54m²
Year:2022
Photographs:Koichi Torimura
Manufacturers:LIXIL,Sanwa
Lead Architects:Takanori Ineyama, Haruki Suwa
Builder:Hoshi Jutaku Co., Ltd.
Design Office:Takanori Ineyama Architects
City:Nikko
Country:Japan
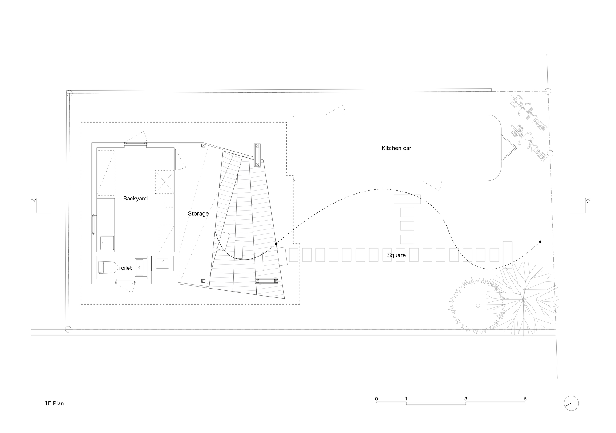
Text description provided by the architects. This project includes an eating and drinking space where visitors can enjoy light meals made from local ingredients by kitchen cars and a designed building that is under a "Kawara" tiled roof, with a backyard and restrooms necessary for operation, and a plaza to welcome people.
The site is located in Nikko City, Tochigi Prefecture. Located along the Nikko Kaido Road connecting “Nikko Toshogu Shrine” and “Nikko Station", where many tourists pass. As a layout of the site, arrange the kitchen car near the street and the building that is Eating and drinking space is on the back of the site to allow the tourists walking along the street to casually stop by.
The architecture was inspired by Nikko's famous "Irohazaka Winding Road" and consists of a meandering staircase. There is a shrine and hot springs in Nikko which is one of the most famous historical cities in Japan. Therefore, Considering the city scenery, volume made of local cedar wood, and a Kawara tiled roof, can imagine the traditional materiality. As the structure, To design an open space, the wall is made of steel brace, and part of the wall structure is made of plywood. The roof is made of a wooden brace and can be seen in the Kawara tiled roof from people seating on the stairs.
Project gallery
Project location
Address:595-5 Gokōmachi, Nikko, Tochigi 321-1404, Japan
客服
消息
收藏
下载
最近























