查看完整案例

收藏

下载

翻译
Architects:Nitsche Arquitetos
Area:330m²
Year:2023
Photographs:Arthur Duarte
Manufacturers:Braston,Carrier,Deca,Docol,Keramika,Lumini,Miaki,O/M Light - Osvaldo Matos,Portobello,Sonex Illtec
Project Team:Vanessa Izidorio, Brigida Garrido, Sérgio Eduardo, Thiago Pontes, Luiza Minassian, Gabriel Lisboa
Construction:Lar Construtora
Consultant:Loudtt
Lighting Design:Lit - Arquitetura de Iluminação
Structural Project:FortioriSP
Installations:FortioriSP
HVAC:FortioriSP
Kitchen:Studio Ino
Landscape Design:Catê Poli
Visual Identity Design:Nitsche PV
Acoustics:Sérgio Passini
Woodwork:Baú Marcenaria
Furniture:Ingecold
Visual Identity:F-Theo
City:São Paulo
Country:Brazil
Text description provided by the architects. The new Olga Ri restaurant is located near Avenida Paulista, in São Paulo, and consists of the renovation of a commercial space in a high-traffic area. Initially, Olga Ri operated exclusively as a virtual delivery service, offering salads and healthy dishes. Now, Nitsche Arquitetos was invited to design the physical space that would convey the company's ideals through a new restaurant concept.
The project aims to create an inviting and vibrant atmosphere, inspired by the brand's ideals. Through the use of striking colors and pleasant spaces, the new restaurant seeks to be not only a dining option to cater to the local employees and neighbors but also a meeting place and a showcase for Olga Ri's principles of healthy, conscious, and relaxed eating.
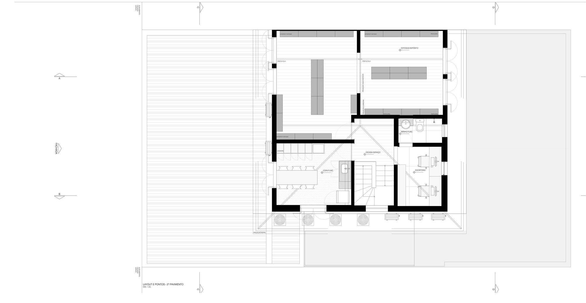
Among the challenges, sustainability was a central concern in the project, aligned with Olga Ri's commitment. The existing structural elements were maximized, avoiding waste and reusing the property's pre-existing features. For example, the exposed brick walls and wooden ceilings were preserved, highlighting the structure's authenticity. The lattice on the facade was also retained, adding personality to the space.
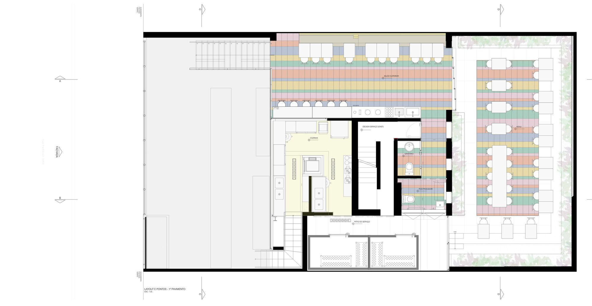
Additionally, it was necessary to adapt the visually vibrant identity filled with colors and geometric shapes to the three-dimensional space. To do so, the colors and typography found in Olga Ri's graphic materials were incorporated into the signage, mosaic flooring, and other architectural elements used. Spaces focused on community and sharing were also designed to convey the brand's essence.
The entrance to the restaurant, located on Haddock Lobo Street, leads into a double-height hall, which was previously the old house front setback. In this environment, a generous stainless-steel counter stands out, where orders are taken and salads are assembled. All the ingredients are displayed, adding color and personality to the space. To the left, a vibrant orange staircase leads to the second-floor tables and the kitchen level. The hall is characterized by its pre-existing wooden ceiling and brick walls. Continuing forward, you reach the outdoor patio, filled with greenery, where a yellow bleacher surrounds the entire space, accompanied by wooden furniture. This configuration provides a flexible and adaptable environment, suitable for different everyday occasions and gatherings.
Project gallery
Project location
Address:São Paulo, SP, Brazil
客服
消息
收藏
下载
最近



















