查看完整案例

收藏

下载

翻译
Architects:ANTI - Architecture
Area:200m²
Year:2022
Photographs:Mansyur Hasan
Manufacturers:Daikin,Fumira,Titanium,Toto
Main Contractor:Hexacons
Project Director:Franciskus Raymond Halim
Architect In Charge:Tahani Bamazroek
City:Surabaya
Country:Indonesia
Text description provided by the architects. Mawu Café is a small café and private office located in the heart of Surabaya, Indonesia. All white metal-clad, the structure introduces itself as a striking new addition to the dense and bustling Ketabang neighborhood.
The project sought to introduce the café building as a new structure that compliments and contrasts the adjacent existing building. The use of contemporary design language and unpredictable form exploration give way to bold and playful compositions between the two structures.
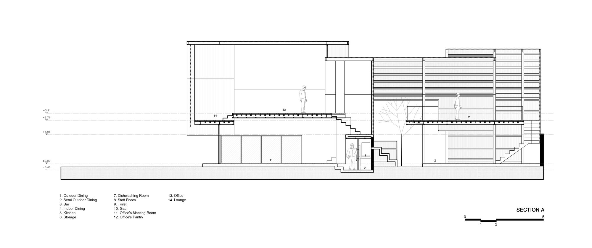
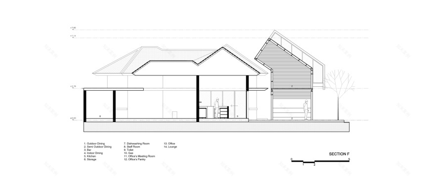
Most of the materials and details present are left exposed to serve as both structural and architectural elements of the café, while the composition of overlapping planes and the respond to the silhouette of the existing building act as the architectural expression to both the interior and exterior of the café. These feats provide ample light that hits and falls differently on each plane and side of the rooms, and the gaps between the walls allow both air and visitors to freely flow into and out of the space.
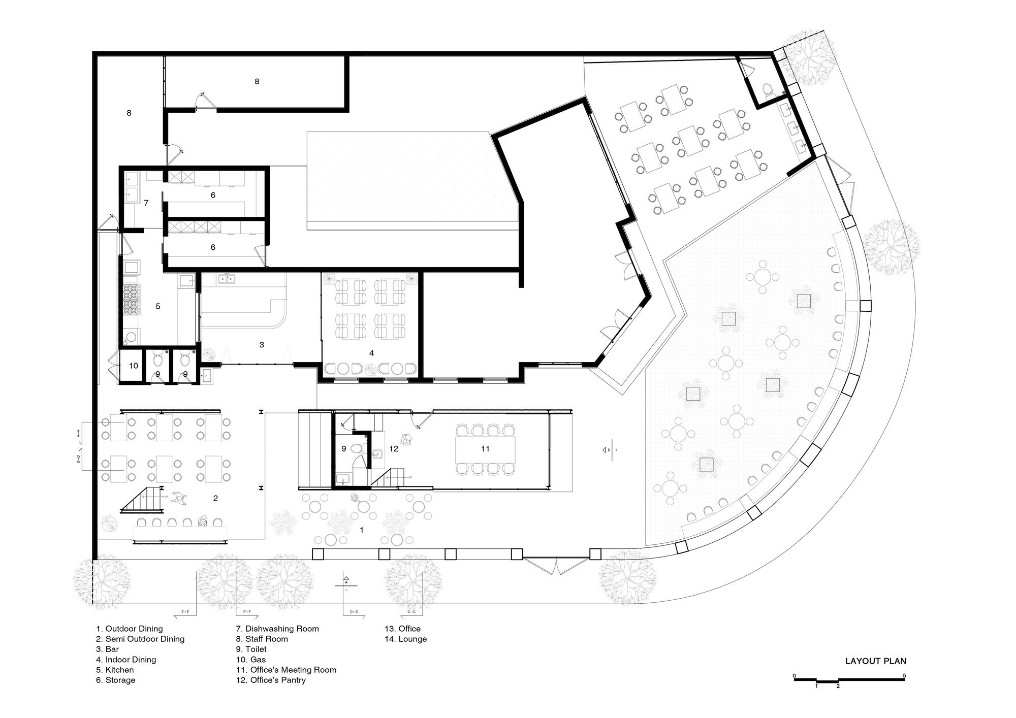
As a small public space, visual connectivity is present in each of the levels through an open plan with openings on the walls. The relationship between the old and new buildings are amplified with the intertwined programs between them. The existing building host the bar, kitchen, and indoor dining area; while the new structure accommodates the office and semi-outdoor dining area.
Project gallery
Project location
Address:Surabaya, Surabaya City, East Java, Indonesia
客服
消息
收藏
下载
最近


































