查看完整案例

收藏

下载

翻译
Architects:ENTRE Arquitetos,byn studio
Area:100m²
Year:2019
Photographs:Manuel Sá
Manufacturers:Boobam,Gail revestimento,Portobello
Lead Architect:Vinícius Capella
Project Team:Vinícius Capella, Daniele Capella, Bittor Monasterio, André Furtado e Gabriela Sthefany
Lighting Design:Studio Iris
City:São Paulo
Country:Brazil
Text description provided by the architects. We Coffee is an oriental-influenced coffee shop, with personalized products and a diverse menu of confident coffees, teas, sweets, and snacks.
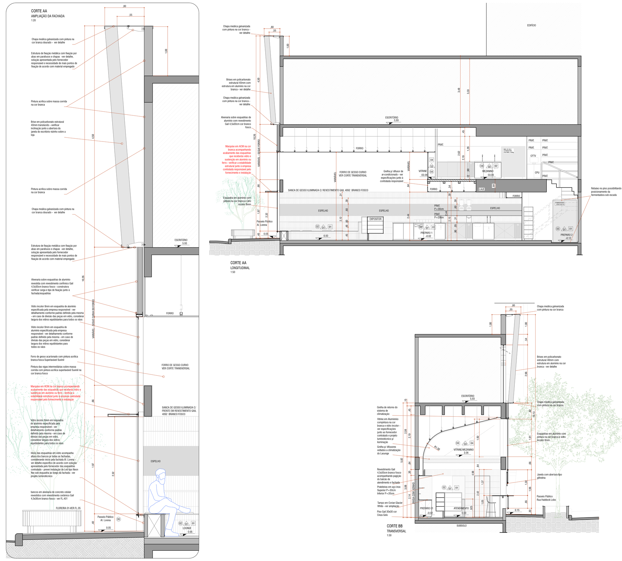
For its second store in Brazil, located in the Jardins Paulista neighborhood in São Paulo, we designed the space based on the same principle as the first store we developed in the Liberdade neighborhood, with an immersive, minimalist, and contemporary space, always using materialities and textures in white tones. In this way, the space makes it possible to highlight foods that are mostly colorful and have unique shapes and flavors.
Curved elements are part of the project's atmosphere, whether in the ceiling or in the layout, as well as in the curved ceramic coating, sensorial expanding the customer's experience.
With tables designed exclusively for the café and chairs by designer Marcelo Caruso, we organized the layout with neutral and sophisticated elements.
We also brought grandeur to the façade by designing vertical sunshades that help in the continuity of the visual language of the ground floor and mezzanine, ensuring greater prominence for the cafeteria on the corner of Alameda Lorena and Haddock Lobo.
Project gallery
Project location
Address:Alameda Lorena, 1682 - Jardim Paulista, São Paulo - SP, 01424-006, Brazil
客服
消息
收藏
下载
最近






















