查看完整案例

收藏

下载

翻译
Architects:Bruno Dias Arquitectura
Area:420ft²
Year:2022
Photographs:Hugo Santos Silva
Manufacturers:Celso Marques,Climapronto,Decorativa 2000,Limocos,Paumarc
Lead Architect:Bruno Lucas Dias
Design Team:Bruno Lucas, Dias Tânia Matias, Cristiana Henriques
City:Ansião
Country:Portugal
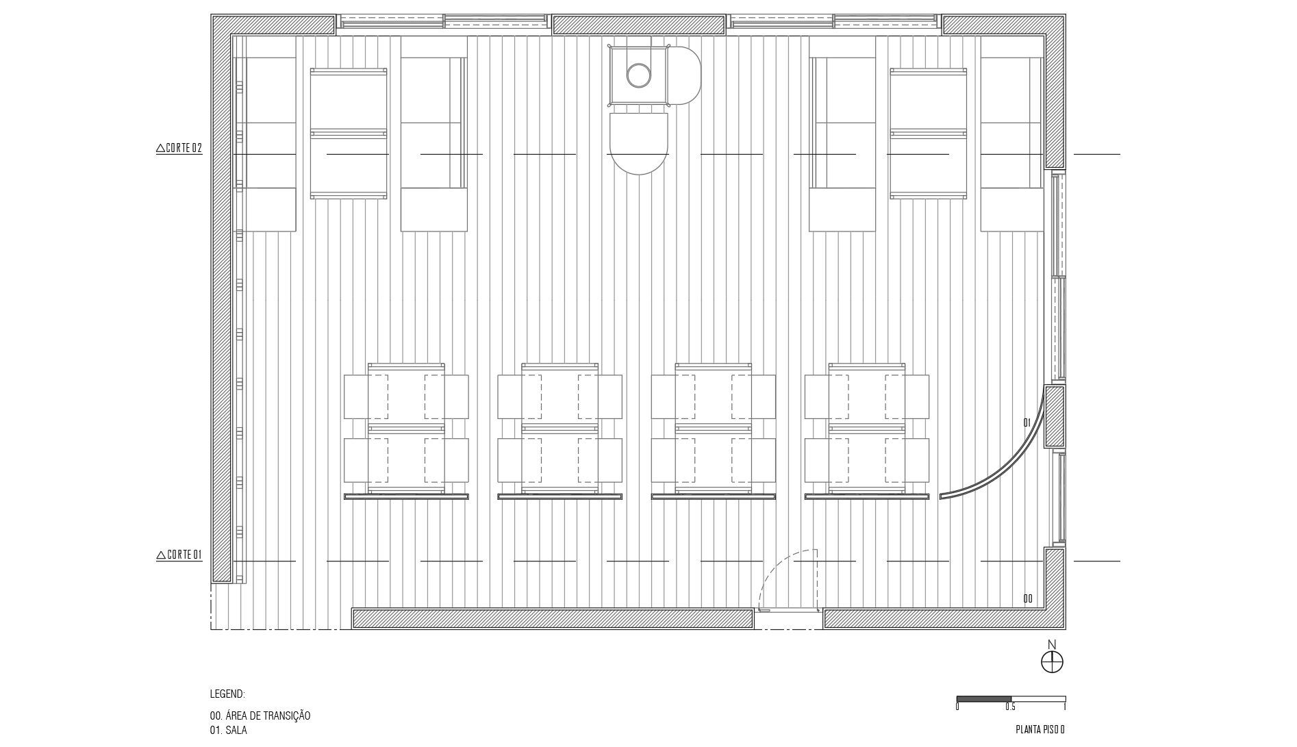
Text description provided by the architects. Set within the heart of the village of Ansião, the focus of this project was the renovation of an old games room, that was part of a restaurant, Tarouca Gastro Bar. In its essence, the project aimed at giving the space a new dynamic that would give it a welcoming ambiance, not only for people going for a meal but also for relaxing and socializing. With this in mind, it was possible to include a space with tables, as well as a central area with sofas and a fire stove.
One of the initial challenges was creating a more secluded area between the dining room and the area designated to reach the technical part of the establishment. Therefore, the choice was to incorporate wooden panels that work as a physical barrier between these two spaces, which allow for more privacy in the dining area.
The key element is the use of wood, which yields an intimate and cozy feel to the room. Besides the wall and floor coverings, all the elements which conclude this project – interior furniture, wine rack, and panels – are designed by our studio and made of pine wood, contrasting with the false ceiling in plywood, plus the suspended lighting elements.
Project gallery
Project location
Address:Av. Dr. Vítor Faveiro, 3240 Ansião, Portugal
客服
消息
收藏
下载
最近


























