查看完整案例

收藏

下载

翻译
Architects:Jo Nagasaka,Schemata Architects
Area:46m²
Year:2022
Photographs:Yurika Kono
Construction:Takamoto Works
Electricity:HATADEN
Signage:TANK
City:Shibuya City
Country:Japan
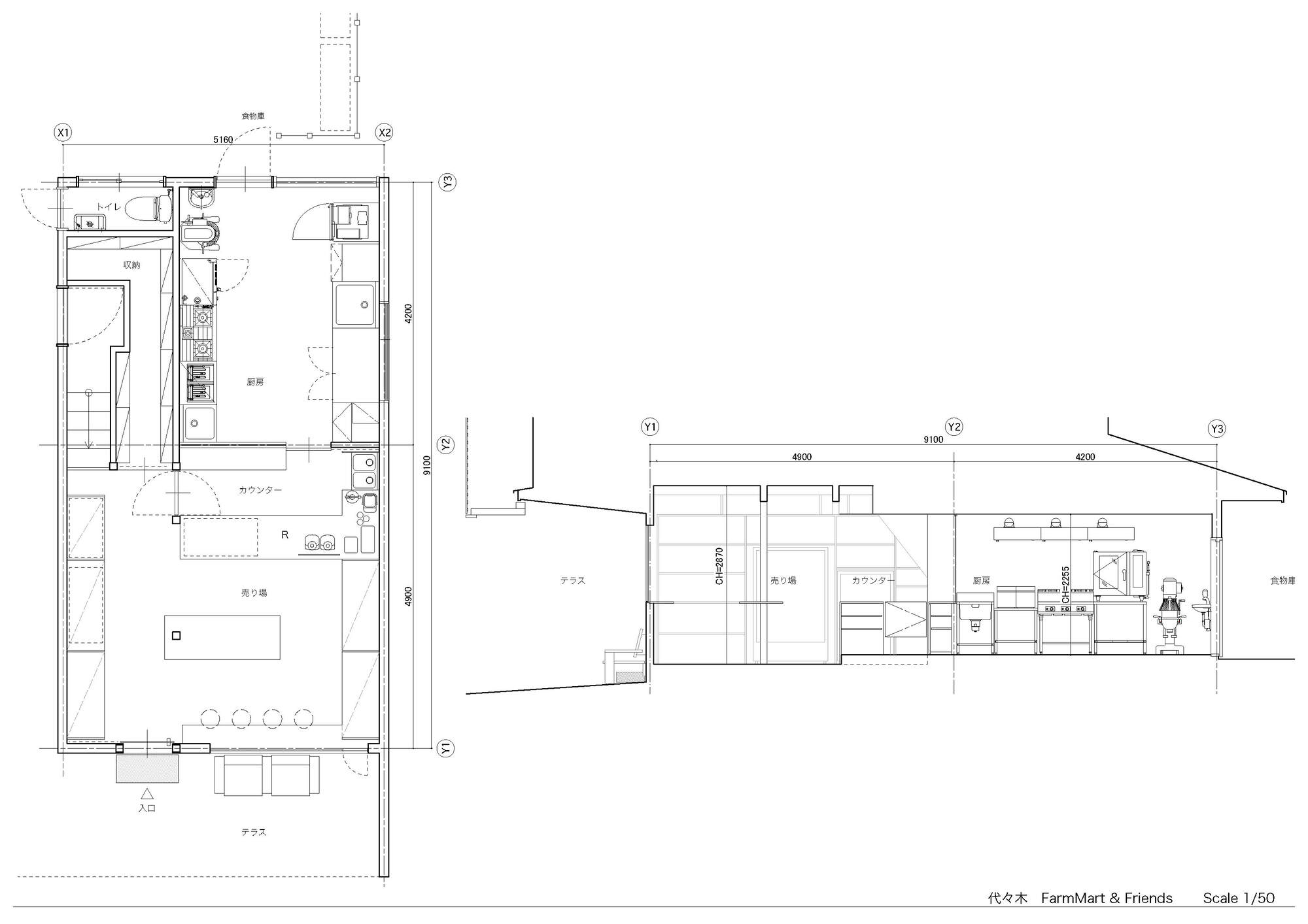
Text description provided by the architects. Projects to create places I would want to patronize are very special to me, and I am willing to work with the clients no matter the budget, as long as we are on the same wavelength. This project is one such example. I often ride my bicycle to work, and this place is right on the way to my office.
It is located in a quiet residential area away from the station. We designed a donut and grocery store there called FarmMart & Friends. Somehow I imagined myself stopping by there on my way home for a glass of wine, even though no one said anything about the project, and decided to get involved.
And indeed, they started serving wine there, and the store became a place to enjoy a moment of happy everyday life on holidays. Given the limited budget, we enlisted help from Takashi Takamoto, our former staff member and a skilled carpenter, to design and construct the store, and we acted as supervisors. We made the best use of the existing structure to create a happy place where people can enjoy fresh food and invite others to join them.
Project gallery
Project location
Address:3-chōme-9-5 Yoyogi, Shibuya City, Tokyo 151-0053, Japan
客服
消息
收藏
下载
最近














