查看完整案例

收藏

下载

翻译
Architects:KARO Architects
Area:2207m²
Year:2021
Photographs:Park Myeongrae
Lead Architects:Kim Kijoong
Design Team:Jo Hyunyong, Park Jaeok, Park Yeongjin, Kim Jihye, Kim Boha, Lee Hyunsoo
Program / Use / Building Function:Bakery Cafe / Neighborhood Living Facilities
City:Ansung
Country:South Korea
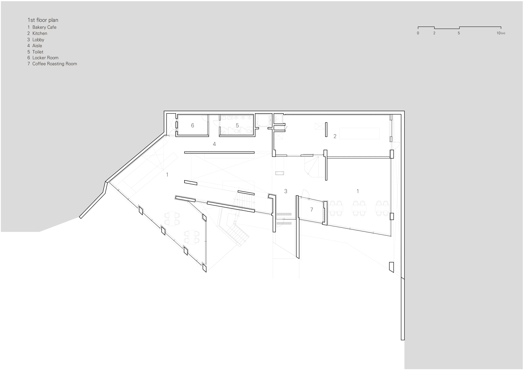
Text description provided by the architects. Cormeum is located at the southern foot of Bibongsan Mountain (229m) in Anseong. As we enter the small road from the main road of Bogaewonsam-ro, we gradually come to see the structure we saw. The first thing you can see is Bonacava, a café run by the client, which is located at the entrance of the site in the form of a long box from north to south, obscuring the "Cormeum". The scene slowly emerges until we reach this building and stay for a while.
Then you start to see the Cormeum. It was designed with the hope that it would reflect the location characteristics of the site, which is gradually revealed and make it an unpredictable architecture. To this end, the space and form were designed in a way that corresponds to the access road with different angles and levels. Of course, the angles and levels should simply reflect the view as an access road, the hierarchy of space, the program, etc.
When you stand on the land, you can see the distant horizontal landscape created by the plains of Anseong on the south side, which shows the stability of the land and agriculture. Since the land is located at the foot of Bibongsan Mountain, you can see this scenery spread out widely. And between the existing café and the main site, there is the "Ginsengju Research Institute", and the layout of the building began by finding a position that does not block the view of this building and setting the line on the west side of the building.
And we tried to capture the landscape on different levels and in different ways. The front yard of this building has a water space designed with the diagonal vocabulary of the building on the side facing the building and a space where you can look at the south scenery from the outside. I told the client that this railing should be the simplest railing to capture the landscape.
While it was important to experience the architecture and sit in a comfortable seat, we thought of a three-dimensional architecture that we could experience while moving. First, two vertical moving lines were set up, one outside and the other inside. These stairs are placed at the front of the building so that users entering and exiting the café can move around and enjoy the building and the surrounding landscape. And the various angled diagonal lines applied to the front show various aspects of the building to moving users.
The client can be said to be a kind of local art supporter who has maintained a friendly relationship with the artists. Therefore, an open space was planned for this building where walls of various sizes and spatial artworks can be exhibited. Of course, the moving movement is linked to these spaces so that you can appreciate them. In addition, tables and chairs are arranged in conjunction with moving circulation so that users can choose according to their tastes.
Project gallery
Project location
Address:Ansung, Gyeonggi, South Korea
客服
消息
收藏
下载
最近































