查看完整案例

收藏

下载

翻译
Architects:INS Studio
Area:20m²
Year:2021
Photographs:Akasa Rana
Manufacturers:Dekson,Ikea,Natura Plywood,Nero Eletric,Solarlite
Contractors:AR Construction
3 D Visualization & Drafting:Rima Pratiwi
City:Kecamatan Panakkukang
Country:Indonesia
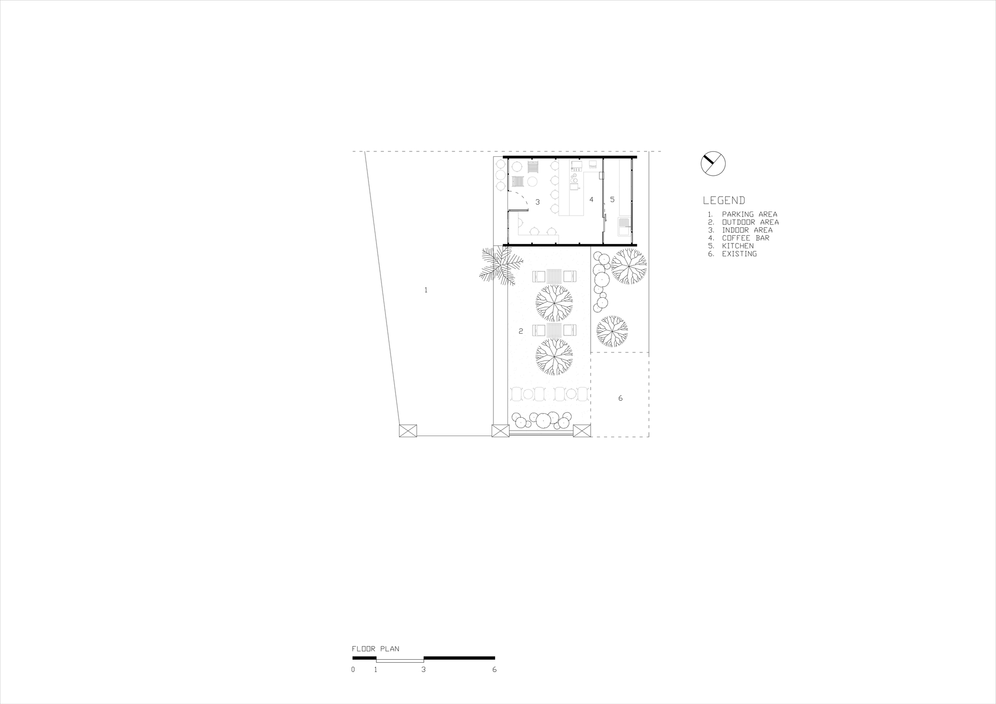
Text description provided by the architects. The Idea came up with the client's desire to have a small coffee shop of 20 square meters in the front yard of his house. One of the particular requests from clients is the use of affordable yet durable primary materials. The architect then chose two main materials for this coffee shop design: polycarbonate and plywood. Plywood and polycarbonate materials are selected with consideration of durability, availability in the market, and affordable prices. As we know, plywood is one of the most eco-friendly materials and polycarbonate is known as a good sustainable material.
The basic form of the design is simplified with a curved shape resembling a greenhouse. In addition to the aesthetic aspect, the curved shape of the greenhouse can also answer the challenges of the climate during the rainy season. The flexibility and strength of the polycarbonate material allow it to form curves in the model. the main structure as the building frame uses HSS (Hollow Structural Section) which is curved and painted white.
The polycarbonate has a thickness of 6mm with the outer side having the latest technology to minimize heat from the outside. The outer and inner layers of polycarbonate are also painted with a white layer of anti-heat paint to reduce the sun's excessive heat during the day. There are also several chairs and tables for customers who prefer the outdoor area in the outdoor section. At certain moments, during the rainy season, the water droplets can form an interesting pattern from the outer texture of polycarbonate that can be an enjoyable yet calming sight from inside the room.
Project gallery
Project location
Address:Jl. DR. Leimena No.37, Tello Baru, Kec. Panakkukang, Kota Makassar, Sulawesi Selatan 90234, Indonesia
客服
消息
收藏
下载
最近


























