查看完整案例

收藏

下载

翻译
Architects:Studio VA
Area:180m²
Year:2021
Photographs:Nick Smith
Lead Architects:Akis Pattihis
City:London
Country:United Kingdom
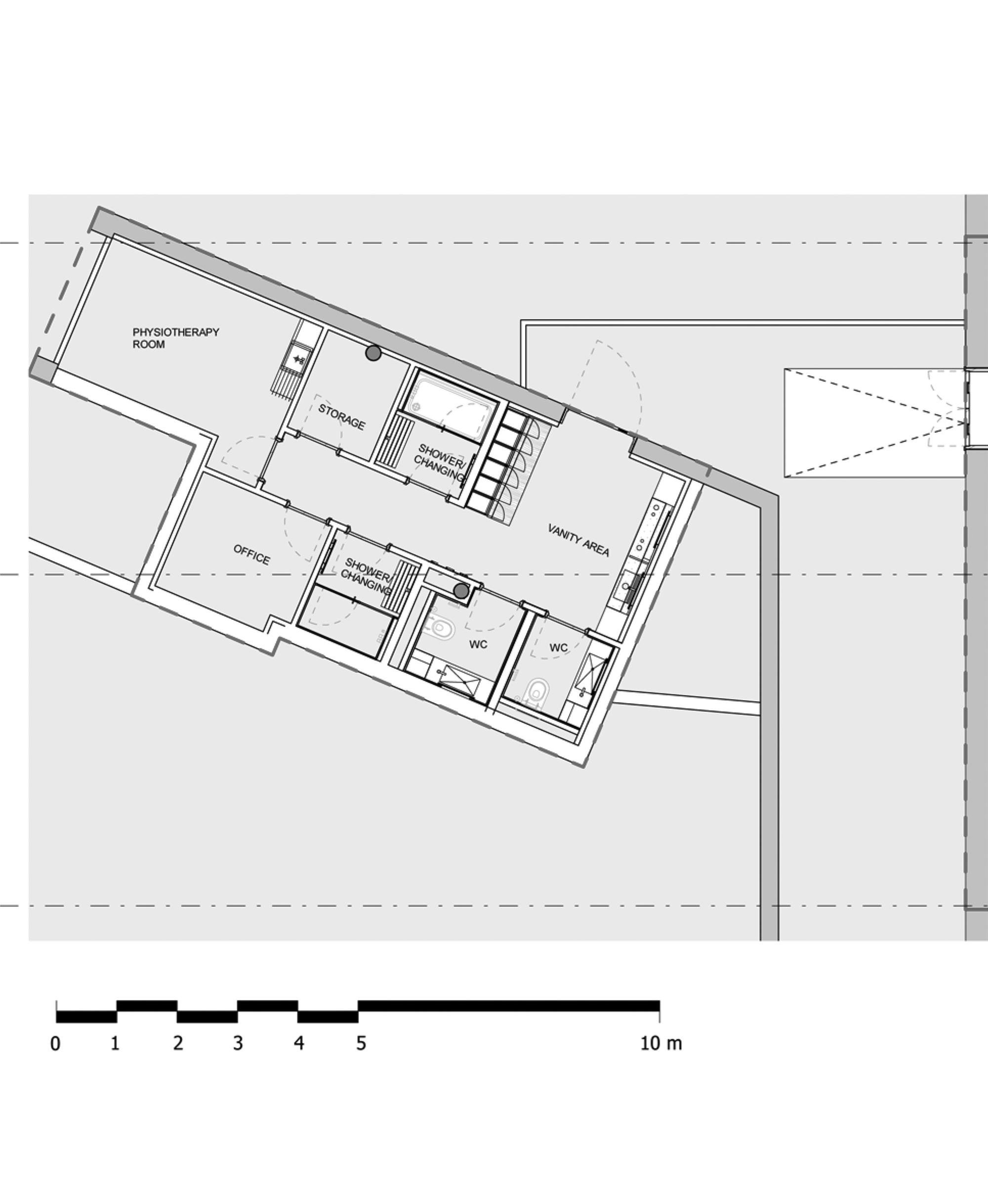
Text description provided by the architects. The project is situated within two retail units in a prominent location along a well-regarded high street in North London. Our client, who is a young and respected personal trainer and owner of the company Athletic Development Club, had approached us to design their first, dedicated personal training gym. The design consists of six bespoke personal training stations, changing rooms, a therapy room, a members’ bar, a merchandise shop, and a takeaway coffee shop.
Being located along a busy high street, it was important to make sure that members did not feel that they were exposed or looked at whilst working out. We needed to strike a fine balance between having a private and functional space for multiple personal training sessions whilst still looking inviting to passers-by who may be interested in becoming a member or ordering a takeaway drink. The glazed units to the main gym area are therefore obscured for privacy.
The ‘Fuel Bar’ (coffee bar) is recessed into the shop creating a protected/ covered entrance where customers can order their take-away coffees and protein shakes. Baristas serve customers through an openable hatch above the main bar countertop. We wanted to create something striking once you walk into this, otherwise unassuming, shop front. Members enter via the Fuel Bar and merchandise area through to the main gym.
The material palette was kept to a minimum; Timber, mirror, LED Lighting Charcoal grey timber slats run up and over each of the six workout stations, cladding the walls and ceilings. These slats have integrated ventilation, speakers and floor-to-ceiling LED strips. The LED Strips help identify the extent of each workout station, also creating a frame of light around each dedicated workout mirror. To the rear of the site, there is access to staff facilities, a physiotherapy room, and also a unisex vanity area with members’ lockers, Shower/changing rooms, and toilets.
Project gallery
Project location
Address:London, United Kingdom
客服
消息
收藏
下载
最近






























