查看完整案例

收藏

下载

翻译
Architects:ForX Design Studio
Area:310m²
Year:2021
Photographs:Panoramic Studio
Manufacturers:COTTO,MDC,TOA
Lead Architect:Atta Pornsumalee
Interior Design:ForX Design Studio
Lighting Design:ForX Design Studio
Landscape:ForX Design Studio,Flora LA
Construction:In Construction
Visualization:Kunyavaree Phitpingkham
Interior Architect:Worawut Eksuwanjaroen, Ladawan Aonsud
City:Bangkok
Country:Thailand
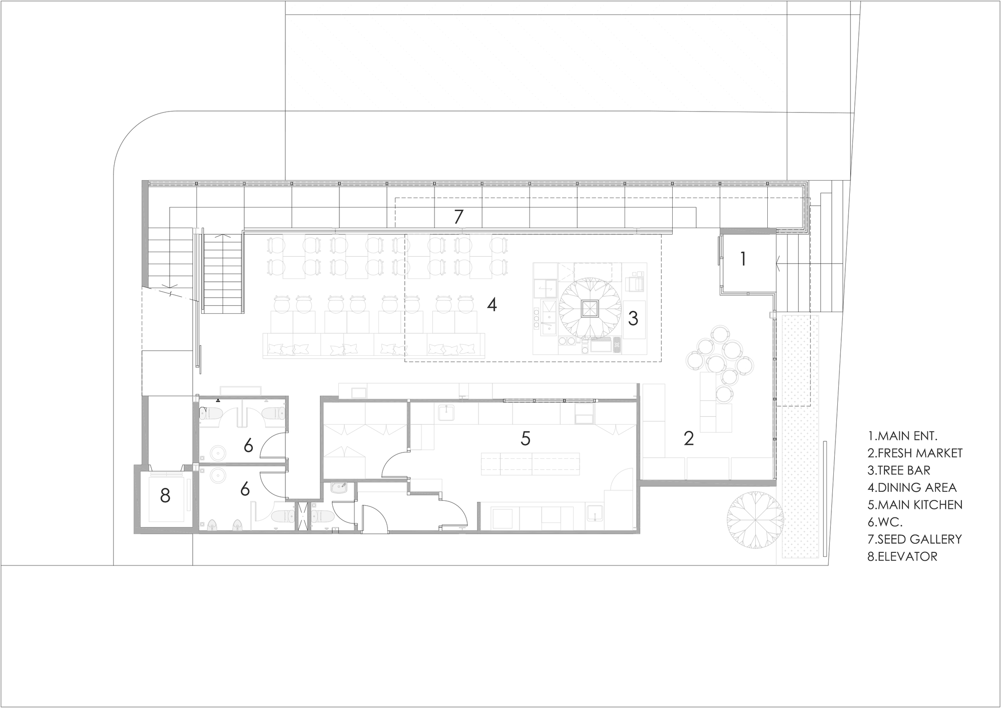
Text description provided by the architects. Chia Tai Farm is a small-scale (310 sq.m.) urban cuisine restaurant that serves the menu by following the concept of farm-to-table. The restaurant space consists of a Fresh Product Market area, a Tree bar, a Dining area, a Dining garden, a Home garden product, a Chef table room, and a Seed gallery. The interior circulation is changed to be a part of the Architectural element as diagonal steps which appear prominently landmark, moreover, the diagonal element creates the relationship between exterior space which is the garden, and interior space which is the dining area.
The diagonal steps space is employed to create the Seed gallery which is not only connected to the 1st floor and 2nd-floor space but also contains the Chia Tai company’s history and reveals the meaning of the company's essence throughout the raisin seed curtain. The seed gallery is contained 4520 pieces of acrylic which insert 250 vegetable and fruit species inside, like a curtain. In addition, the diagonal atrium space is designed to connect all areas not only horizon but also vertical space which are tree bar on the 1st floor and the dining garden on the 2nd floor.
On the second floor, the Home garden products kiosk is combined with the dining area to create a dining experience in the garden, in addition, the Home garden terrace is designed to connect three areas which are the Home garden, dining area, and Chef table room. The farm products are sent to The Chef Table room which is design not only to serve a private dinner from celebrity chefs but also to be a food laboratory and create a new menu to serve in the restaurant.
The Chia Tai fam is located in front of the headquarter building, therefore to preserve a concept of the company identity, the material is designed in the same mood and tone as the main building, yet to create a differentiation the Chia Tai farm is employed material which has a hard and soft texture on the façade not only exterior but also interior materials.
Project gallery
Project location
Address:Bangkok, Thailand
客服
消息
收藏
下载
最近

















































