查看完整案例

收藏

下载

翻译
Architects:mh architects
Area:115m²
Year:2020
Photographs:Ballsmedia
Manufacturers:Javorina,Rendl light studio,mh architects
Architect:Michaela Horáková
Concrete Specialist:Ryneš Design
Laser Engraving/Artwork/Advertisement Sign:Laserdog
City:Praha 3
Country:Czech Republic
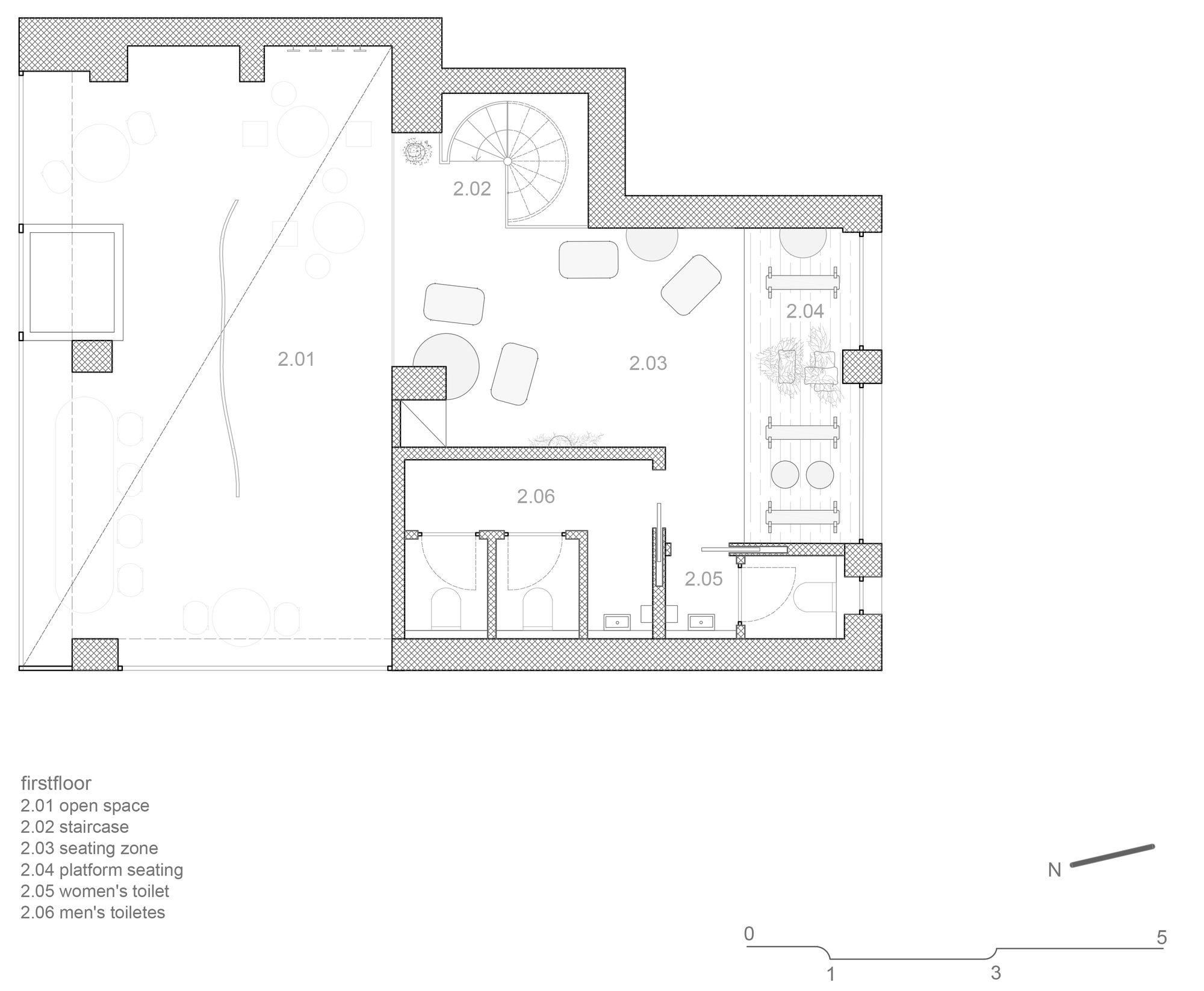
Text description provided by the architects. The company is located on the ground floor of a 90 years old building, currently called Radost, translated as "Joy“. It follows the functionalist roots of the building with its interior design, only adding so many new features to keep the feel of the original building
The interior, based in an open two storey space, mixes together very rough building materials, used in unique ways, together with smooth pastel colors and a little bit of luxury in various gold details. Most of the furniture is made from concrete blocks, usually used to hold up terrains. Here, together with smooth wooden tops, they are used as a bar or tables. These blocks are not just fun to work with: “It is a durable building material that will last for almost an eternity," the architect describes.
There are many more unorthodox features to this place. One of them is the implementation of serrated plaster on walls. "We indulge in experiments and this is one of them - the transformed idea of a classic facade glue.” says the architect.
The walls are not only covered with serrated plaster, but also with Horáková’s installation of ceramic plates. ”We always try to find new ways and here we really did not hold back, "she says, with some more comments about its meaning. “We perceive clay as the soil that gives us the basis for our existence. The organic shape indicates the circle of life. Earthy tones follow shades of the rest of the interior. The exhibition levitates and creates plasticity, therefore playing with light and shadows "describes the author of the design.
Most of the furniture was also designed to fit the Golden Egg vision. The most notable piece is a bench resembling perch, where everybody becomes a bird for a moment. "They really come from perches on which hens sit in a chicken coop. We hesitated for a while whether we would be able to turn the idea into reality, but in the end throughout active participation in the production process we succeeded, "describes Horáková.' In the beginning, nobody believed the perch could hold a person and today even the proper roosters can sit on it."
Golden Egg offers people the option to enjoy their meal in a beautiful adjacent garden. They sit at a big table arching around a full-grown tree. "The furniture is minimalist and represents an abstract concept of how we perceive the dining and sitting elements" explains the architect.
The overall concept of the garden was to work with already existing features. Beside building around grown trees and greenery, a concrete exhaust was completely turned around from an unpleasant old grey cube into the bar table with a nourishing flowerbed in its core. "We wanted to put our true self into the project, but also work with respect towards the historical context. We see the place as a strong identity living its life, intersected by several stories throughout the time. And now, through Golden Egg, we have added another one," describes Horáková.
Project gallery
Project location
Address:Seifertova 1840, 130 00 Praha 3-Žižkov, Czech Republic
客服
消息
收藏
下载
最近



























