查看完整案例

收藏

下载

翻译
Architects:Soeda and associates Architects
Area:272m²
Year:2021
Photographs:Takumi Ota
Structure Engineers:Ryotaro Sakata Structural Engineers
Architect:Takayuki Soeda
Country:Japan
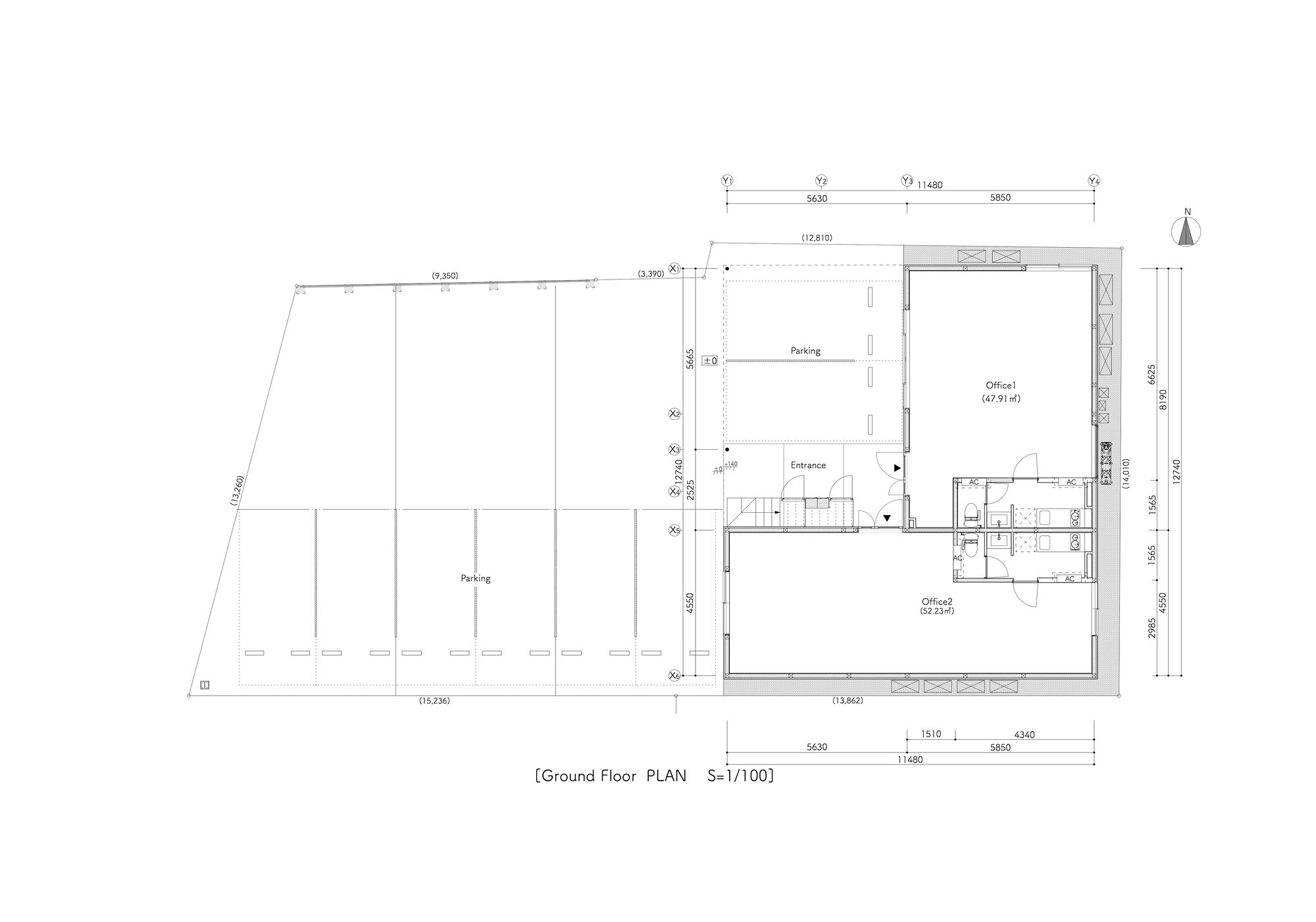
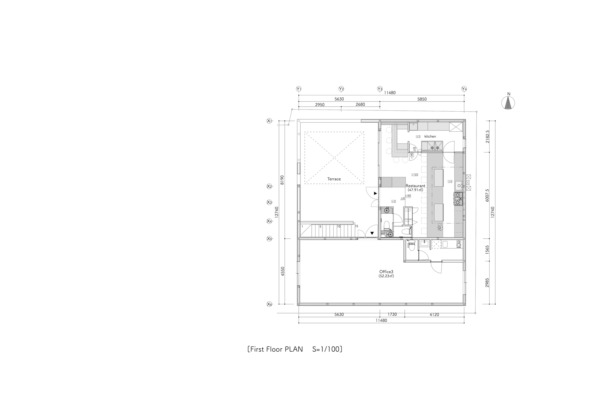
Text description provided by the architects. The site is located along a main road in a provincial city, in an area where houses and low-rise stores coexist, and is surrounded by houses on three sides except for the frontal road. We were asked to design a wooden building that includes 4 tenant spaces of around 50㎡ with eight parking spaces. The tenant spaces were planned for restaurants and offices, and the overall volume was determined by adding a common terrace that also serves as a roof over the two parking spaces.
In planning a building to be used by many people on a site surrounded by houses, our first priority to consider possible impacts on the neighboring houses. In order to be exempted from the sun shadow regulation, we needed to keep the building height below 10m while seeking a form that blends with the surroundings.
As a result, as shown in the figure below, we came up with elevations in the shape of a gable roof house on all four sides by lowering the four vertexes of the upper part of the cuboid. The height of the eaves is aligned with the neighboring houses to reduce impacts on the neighbors.
By making the four sides into the shape of a gable roof house, the roof takes on the shape of a hyperbolic paraboloid (HP) shell. The curved surface of the HP shell was assembled by installing 20mm-thick wood members on 60mm-thick rafters in a twisted manner and fastening curved plywood with nails.
The entire roof is finished with gradually curving standing seam roofing. The roof above the terrace has a large opening, and the terrace is designed as a shared outdoor free space for a variety of uses, while being walled off from the surrounding environment.
Project gallery
Project location
Address:Tochigi, Japan
客服
消息
收藏
下载
最近








































