查看完整案例

收藏

下载

翻译
Architects:Architectkidd
Area:2000m²
Year:2019
Photographs:Jinnawat Borihankijanan
Architect In Charge:Architectkidd
Design Team:Korpong Sanaha, Nopnapa Areevijittrakoon, Waraporn Srikokjareon, Félix Baroux, Jariyawadee Lekawatana, Udomsak Komonvilas, Luke Yeung
City:Bangkok
Country:Thailand
Text description provided by the architects. Architectkidd has completed the design of a horse-riding school in Bangkok. Named The Hay Equestrian Center & Eatery, the design is located on the outskirts of the city. The main intention is to design a place that is friendly for both horses and people. Emphasis is made to create an architectural design that could foster therapy programs, where horses participate in restoring the health of children and patients.
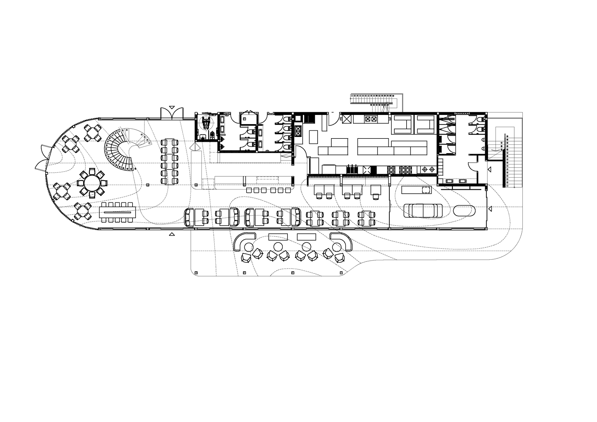
During visits to the site, the Architectkidd team interacted with the horses and were inspired by their movement, anatomy and their convex and concave curvatures. The spaces were laid out according to the ways the horses move through the site, from stables to the public areas. In addition, the architecture of the main building of the equestrian center references these curved forms through the use of wooden materials.
Working with a pre-existing structural grid and column layout that had already been built, Architectkidd designed wood panels that were fabricated in ways that could merge the wall and ceiling surfaces. The resulting curved forms were then layered over the conventional structure and concrete construction.
Architectkidd and the owners chose to preserve the natural finishing of all the building materials used. The Padauk wood (Pterocarpus genus), with its natural variations in color ranging from orange-brown to red (and in time oxidizes to a darker purple-brown), resemble the color of the horses in the equestrian center.
Although the essential elements of this equestrian center are the horses themselves, the design aims to create a comfortable environment for children and families. The interior spaces allow for natural light and plants to grow. From the restaurant, people are able to look outside and constantly interact with the horse riders and riding track. The entire area is conducive to not only horses and people, but also other animals such as ponies, ducks and chickens. For Architectkidd, it was a unique experience to design for such an animal community.
Project gallery
Project location
Address:Bangkok, Thailand
客服
消息
收藏
下载
最近















