查看完整案例

收藏

下载

翻译
Architects:Lukas Imhof Architektur
Area:450m²
Year:2018
Photographs:Lukas Peters,Hannes Heinzer
Engineering:Josef Kolb AG,Romanshorn
Design Team:Lukas Imhof, Carlos Wilkening, Caroline Schillinger
City:Lengwil
Country:Switzerland
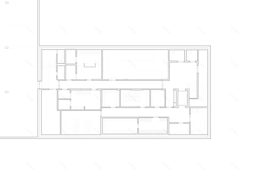
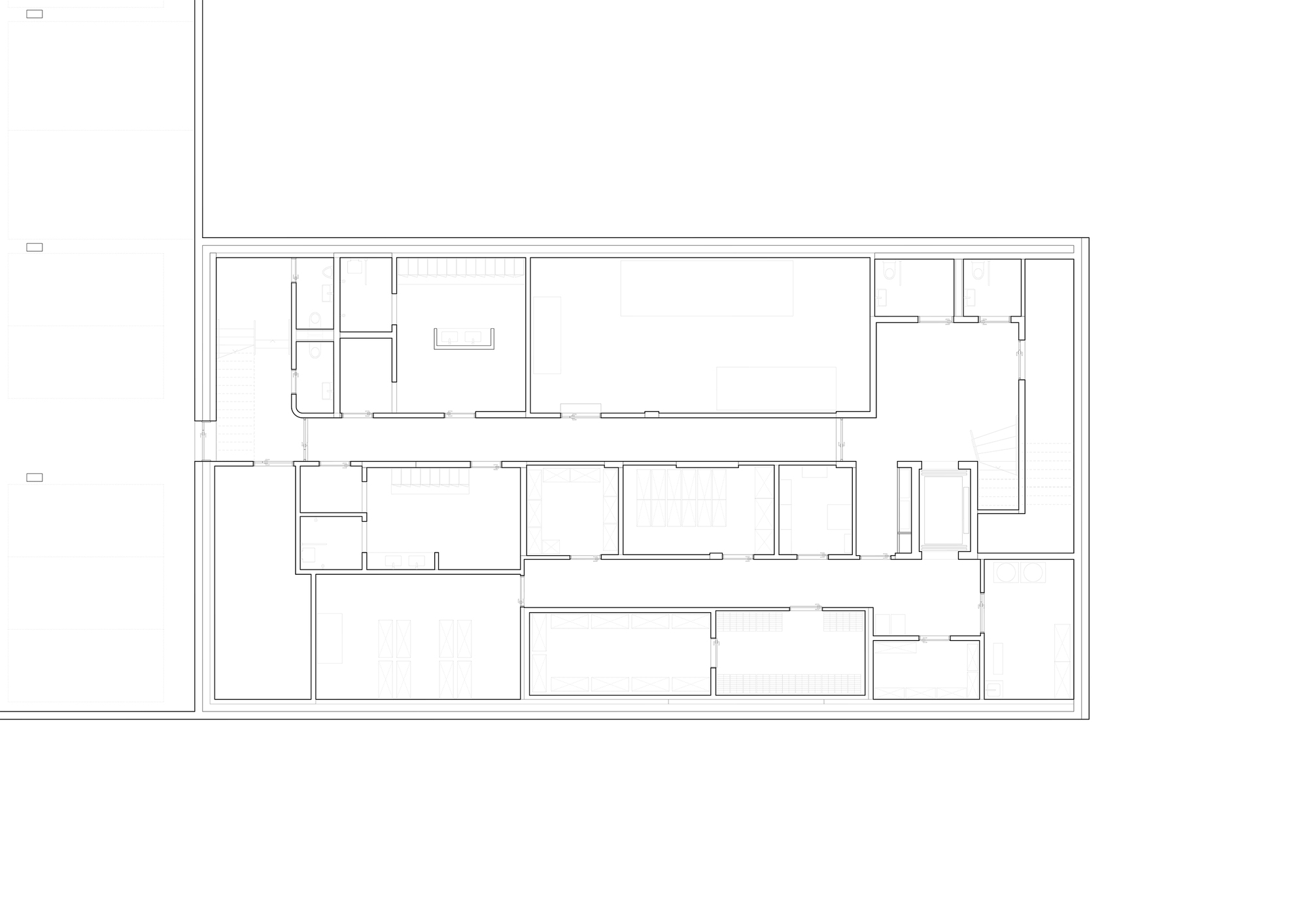
Text description provided by the architects. The living and working place for people in need of care was built in the 1970s as a gesamtkunstwerk in anthroposophical design language in the middle of the landscape around Lake Constance, Thurgau. Now a new restaurant building is to become the centre of social life.
The dining hall stages the landscape: a columned hall made of ash wood, self-bracing, open all around, stands on a concrete base that grows out of the slightly sloping terrain.
The furniture was developed especially for this project. More about it under wimm.ch.
Project gallery
Project location
Address:Lengwil, Switzerland
客服
消息
收藏
下载
最近
































