查看完整案例

收藏

下载

翻译
Architects:Origin Architecture
Area:200m²
Year:2019
Photographs:TIAN QUAN
Architect In Charge:Steven Wang
Design Team:Steven Wang, Chen Lu, Menglu Xiu
Client:Chongming District Culture and Tourism Bureau
City:Shanghai
Country:China
Text description provided by the architects. There are a lot of small villages left from the early cultivation in Chongming Island. Most of them have being quiet for years. Houses are abandoned and warehouses are empty recently. By the renovation of urban development of Shanghai, these nature surrounded and long quiet houses have the new function.
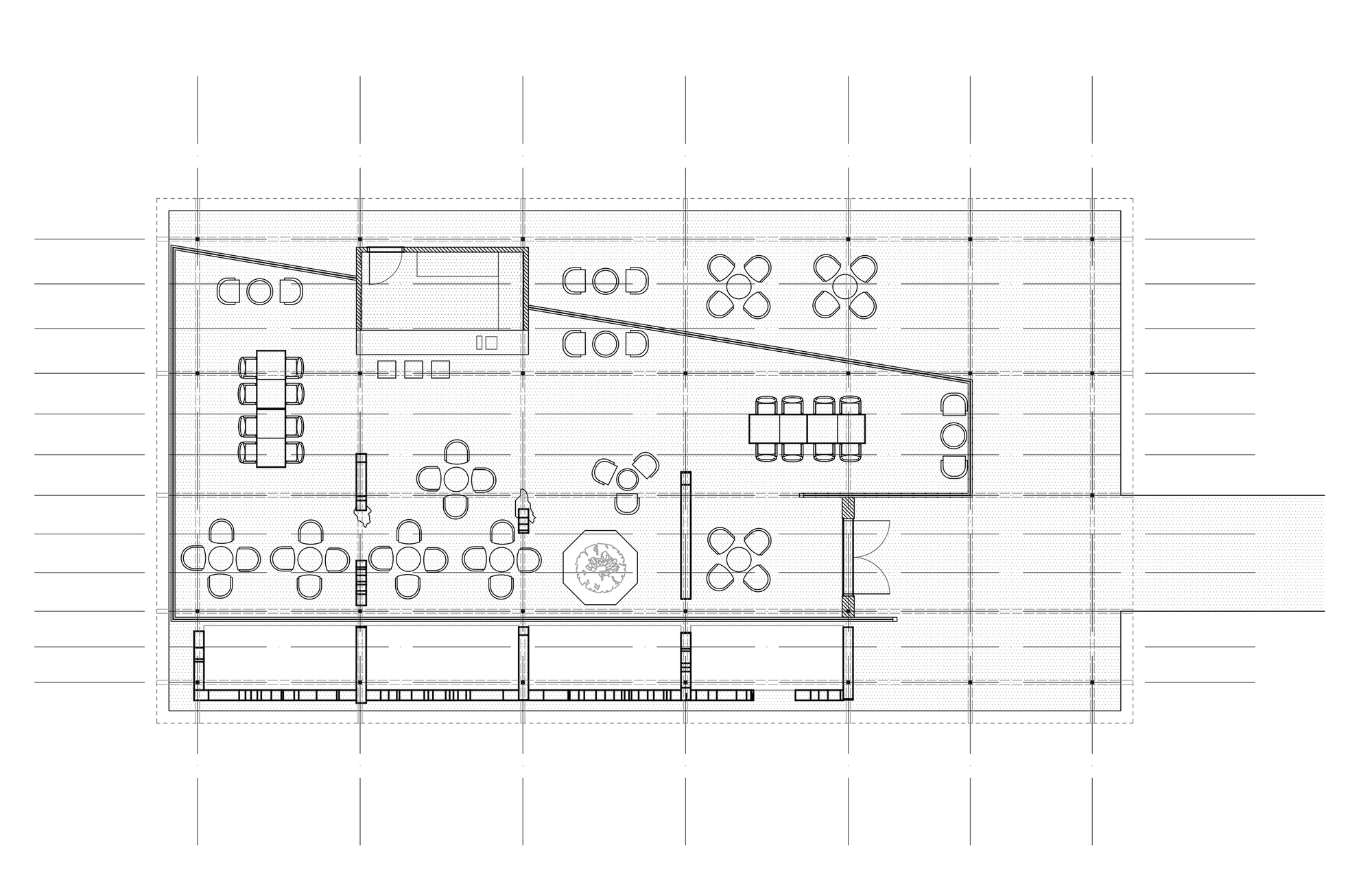
The glass café project is located on the relic of the torn down warehouse, supported by light weight steel structure. The big roof is made of common grey steel roof and easily seen in villages. One way slop of the roof is convenient for the local construction and becomes the middle part of the existing continuous skyline from the high front to the low back on the site.
There are several light wells and green garden in the space to bring the sunshine in. Terrazzo ground is mixed with existing cement base and occasionally opened up by the old warehouse wall relics. The footprint of the old warehouse became the garden of vegetation. The broken bricks from the torn down warehouses are recycled to be the right material for the bar counter. The new café is transplanted into the old warehouse relics and brings some exotic atmosphere which is mixed with rural chaos away from the purity of modernism.
Rounded steel columns locate on the even grid which is from the demolished warehouse and shifted on the entry space. Columns are rounded and sit on the squared plinths for two major considerations. On one hand, squared plinths can be located onsite into the terrazzo ground before the tall rounded column cut and welded onto. On the other hand, there are no floor outlets on the terrazzo ground incase of the rainy days. The squared outlets fit the squared plinths and avoiding unnecessary detailed design.
Two artificial lighting systems are applied on this project: track lighting for interior and decorative ball lights for the exterior. Track lighting can easily changed due to the shifted layout of the café furniture. Decorative ball lights can be illuminated all night to make up the lack of the village night lighting as a beacon.
Project gallery
Project location
Address:Qianshao village, Chongming Island, Shanghai, China
客服
消息
收藏
下载
最近



























